2 500 €

10 € /кв.м.

офис в София, Мусагеница, бул. Д-р Г. М. Димитров

Продажба София Мусагеница Обновена: 15 Апр 2026
250 м²
Лок. отоп.
2 /5 ет.

Обяви за този имот (1)

2 500 €
1
1 Яну 0001  ·  15 Апр 2026

Детайли

Площ
250 м²
Етаж
2 от 5
Отопление
local
Обзавеждане
Не

Особености

parking
elevator
security
wiring
internet
video-surveillance
access-control
renovated

Описание от продавача

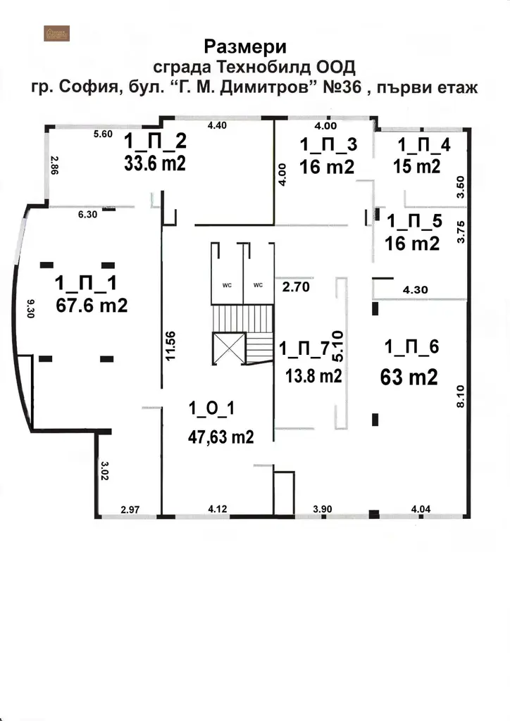
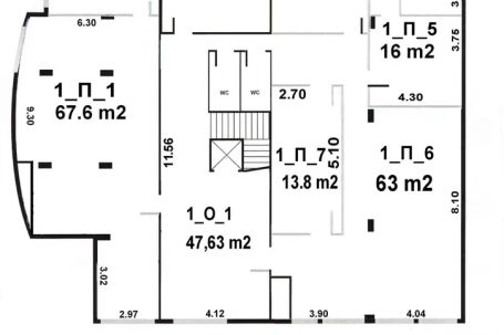
Първи над партер или трети над партер етажи. Всеки с площ от около 250 кв.м. в офис сграда на главен булевард. Пешеходно разстояние до метростанция Г.М. Димитров. Офисната площ е разположена на 4 етажа - партер, първи, трети и четвърти плюс складова площ в сутерена на сградата. На партера са разположени помещение със статут на магазин, зона с отдих с оборудвана кухня, сървърно помещение и гараж. На първия етаж са разположени няколко офисни помещения на обща площ от около 250 кв.м. с възможност за промяна на разпределението. Вторият етаж е зает от друга компания. Третият етаж също разполага с около 250 кв.м. офисна площ с възмножност за избор на разпределението и две тераси. Четвъртият етаж е с площ от около 180 кв.м. отново с възможност за промяна на разпределенията и две големи тераси. В сутерена се ползват две помещения, до които има достъп и с товарен асансьор от улицата. Санитарни възли на всеки етаж. Всеки етаж е с индивидуално отчитане на електрическата енергия. Могат да се наемат и два, три или четири етажа. Възможно е наемане и на цялата сграда с 1,834.82 м2 РЗП. Наемната цена е 10 евро/ кв.м. и 3 евро - управление и поддръжка. Свободна от 01.02.2026г. За повече информация и огледи: Пламен Петров - 0878430485.

Приблизителна локация
Връзка с продавача
имоти за продажба без посредник (11265) имоти под наем без посредник (11265) имоти за продажба (11265) имоти под наем (11265) апартаменти под наем без посредник (6684) апартаменти за продажба (6684) апартаменти за продажба без посредник (6684) апартаменти под наем (6684) имоти за продажба в гр. София, Мусагеница без посредник (3225) имоти за продажба в гр. София, ПЗ Илиянци без посредник (3225) имоти за продажба в гр. София, Свобода без посредник (3225) имоти за продажба в гр. София, Горна баня без посредник (3225) имоти за продажба в гр. София, Изгрев без посредник (3225) имоти за продажба в гр. София, Славовци без посредник (3225) имоти за продажба в гр. София, Света Троица без посредник (3225) имоти за продажба в гр. София, Левски Г без посредник (3225) имоти за продажба в гр. София, Горубляне без посредник (3225) имоти за продажба в гр. София, Овча купел без посредник (3225) имоти за продажба в гр. София, м-т Орехите без посредник (3225) имоти за продажба в гр. София, Люлин 7 без посредник (3225) имоти за продажба в гр. София, Илиянци без посредник (3225) имоти за продажба в гр. София, Младост 1А без посредник (3225) имоти за продажба в гр. София, в.з. Беловодски път без посредник (3225) имоти за продажба в гр. София, Полигона без посредник (3225) имоти за продажба в гр. София, Разсадника без посредник (3225) имоти за продажба в гр. София, Подуяне без посредник (3225) имоти за продажба в гр. София, Красна поляна 3 без посредник (3225) имоти за продажба в гр. София, Младост 2 без посредник (3225) имоти за продажба в гр. София, Надежда 4 без посредник (3225) имоти за продажба в гр. София, в.з. Горна баня без посредник (3225) имоти за продажба в гр. София, Надежда 2 без посредник (3225) имоти за продажба в гр. София, в.з. Врана - Герман без посредник (3225) имоти за продажба в гр. София, НПЗ Хаджи Димитър без посредник (3225) имоти за продажба в гр. София, Павлово без посредник (3225) имоти за продажба в гр. София, в.з. Врана - Лозен без посредник (3225) имоти за продажба в гр. София, Суходол без посредник (3225) имоти за продажба в гр. София, Кубратово без посредник (3225) имоти за продажба в гр. София, Борово без посредник (3225) имоти за продажба в гр. София, Драгалевци без посредник (3225) имоти за продажба в гр. София, Белите брези без посредник (3225) имоти за продажба в гр. София, в.з. Драгалевци лифта без посредник (3225) имоти за продажба в гр. София, Илинден без посредник (3225) имоти за продажба в гр. София, Хиподрума без посредник (3225) имоти за продажба в гр. София, Лагера без посредник (3225) имоти за продажба в гр. София, Модерно предградие без посредник (3225) имоти за продажба в гр. София, Гоце Делчев без посредник (3225) имоти за продажба в гр. София, Красна поляна 1 без посредник (3225) имоти за продажба в гр. София, Център без посредник (3225) имоти за продажба в гр. София, Малинова долина без посредник (3225) имоти за продажба в гр. София, Меден рудник - зона Г без посредник (3225)