217 912 €

2 201 € /кв.м.

офис в Бургас, Хоризонт

Офис За продажба Под наем · Бургас Хоризонт · Обновена: 17 Апр 2026
99 м²
0 /9 ет.
Тухла
2028 г.
Обяви за този имот (1)
217 912 €
1
1 Яну 0001  ·  17 Апр 2026
Детайли
Площ
99 м²
Етаж
0 от 9
Строителство
brick
Год. на строителство
2028 г.
Особености
gated-community
Описание от продавача

ДИРЕКТНО ОТ ИНВЕСТИТОР! БЕЗ КОМИСИОННА!

Изключителна възможност за инвестиция в ново търговско помещение в комплекс Атлантис Ариа 3 , квартал Хоризонт, Бургас

Представяме ви отличен шанс за придобиване на функционално търговско помещение в комплекс Атлантис Ариа 3 , разположен в най-новия и динамично развиващ се жилищен район на Бургас - квартал Хоризонт. Ариа 3 е модерен проект, включващ три девететажни сгради с общо 153 апартамента. Разположен в непосредствена близост до Ариа 2 , този комплекс допринася за създаването на оживена и комуникативна градска улица, която предлага множество възможности за бизнес и услуги.

Основни характеристики:

Местоположение: кв. Хоризонт, комплекс Атлантис Ариа 3
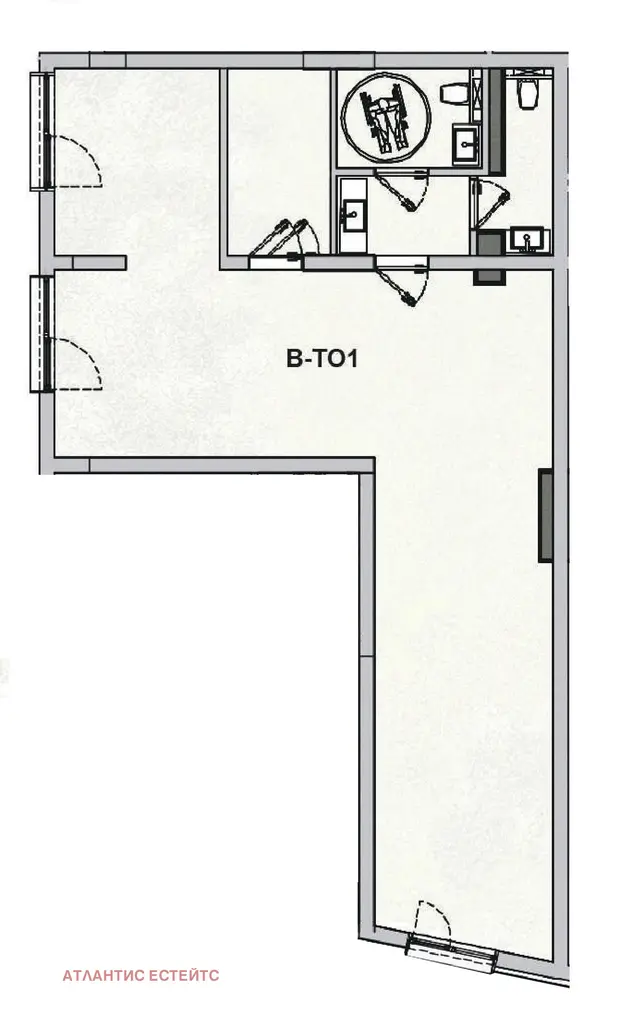
Площ: 99,05 кв.м
Етаж: Партер

Описание на търговското помещение:

Търговското помещение се състои от просторна и светла зала с големи прозорци, които осигуряват естествена светлина през целия ден. Допълнително има склад и тоалетна. Височината на таваните е 3,20 метра, което добавя усещане за простор и комфорт. Възможност за закупуване на паркомясто, разположено непосредствено пред обекта.

Допълнителни характеристики:

- Сграда с енергиен клас А
- Дишаща вентилируема фасада
- PVC дограма REHAU със стъклопакет 4 сезона

Строителството на Ариа 3 започна през февруари 2025 г. и ще продължи 36 месеца. Това е идеалният момент да инвестирате в едно от най-обещаващите места в Бургас, където вашият бизнес ще процъфтява благодарение на стратегическото местоположение и модерната инфраструктура.

Не пропускайте тази уникална възможност! Свържете се с нас за повече информация.

Приблизителна локация
Връзка с продавача
имоти за продажба без посредник (11340) имоти под наем без посредник (11340) имоти за продажба (11340) имоти под наем (11340) апартаменти под наем без посредник (6703) апартаменти за продажба (6703) апартаменти за продажба без посредник (6703) апартаменти под наем (6703) имоти за продажба в гр. София, Мусагеница без посредник (3268) имоти за продажба в гр. София, ПЗ Илиянци без посредник (3268) имоти за продажба в гр. София, Свобода без посредник (3268) имоти за продажба в гр. София, Горна баня без посредник (3268) имоти за продажба в гр. София, Изгрев без посредник (3268) имоти за продажба в гр. София, Славовци без посредник (3268) имоти за продажба в гр. София, Света Троица без посредник (3268) имоти за продажба в гр. София, Левски Г без посредник (3268) имоти за продажба в гр. София, Горубляне без посредник (3268) имоти за продажба в гр. София, Овча купел без посредник (3268) имоти за продажба в гр. София, м-т Орехите без посредник (3268) имоти за продажба в гр. София, Люлин 7 без посредник (3268) имоти за продажба в гр. София, Илиянци без посредник (3268) имоти за продажба в гр. София, Младост 1А без посредник (3268) имоти за продажба в гр. София, в.з. Беловодски път без посредник (3268) имоти за продажба в гр. София, Полигона без посредник (3268) имоти за продажба в гр. София, Разсадника без посредник (3268) имоти за продажба в гр. София, Подуяне без посредник (3268) имоти за продажба в гр. София, Красна поляна 3 без посредник (3268) имоти за продажба в гр. София, Младост 2 без посредник (3268) имоти за продажба в гр. София, Надежда 4 без посредник (3268) имоти за продажба в гр. София, в.з. Горна баня без посредник (3268) имоти за продажба в гр. София, Надежда 2 без посредник (3268) имоти за продажба в гр. София, в.з. Врана - Герман без посредник (3268) имоти за продажба в гр. София, НПЗ Хаджи Димитър без посредник (3268) имоти за продажба в гр. София, Павлово без посредник (3268) имоти за продажба в гр. София, в.з. Врана - Лозен без посредник (3268) имоти за продажба в гр. София, Суходол без посредник (3268) имоти за продажба в гр. София, Кубратово без посредник (3268) имоти за продажба в гр. София, Борово без посредник (3268) имоти за продажба в гр. София, Драгалевци без посредник (3268) имоти за продажба в гр. София, Белите брези без посредник (3268) имоти за продажба в гр. София, в.з. Драгалевци лифта без посредник (3268) имоти за продажба в гр. София, Илинден без посредник (3268) имоти за продажба в гр. София, Хиподрума без посредник (3268) имоти за продажба в гр. София, Лагера без посредник (3268) имоти за продажба в гр. София, Модерно предградие без посредник (3268) имоти за продажба в гр. София, Гоце Делчев без посредник (3268) имоти за продажба в гр. София, Красна поляна 1 без посредник (3268) имоти за продажба в гр. София, Център без посредник (3268) имоти за продажба в гр. София, Малинова долина без посредник (3268) имоти за продажба в гр. София, Меден рудник - зона Г без посредник (3268)