320 000 €

1 616 € /кв.м.

къща във Варна, м-т Зеленика

Продажба Варна м-т Зеленика Обновена: 14 Апр 2026
198 м²
Тухла
2026 г.

Обяви за този имот (1)

320 000 €
1
1 Яну 0001  ·  14 Апр 2026

Детайли

Площ
198 м²
Строителство
brick
Год. на строителство
2026 г.

Описание от продавача

HOLDING GROUP REAL ESTATE представя:
Нова еднофамилна къща със собствен двор. АКТ 14! ПОДХОДЯЩА ЗА КРЕДИТИРАНЕ!

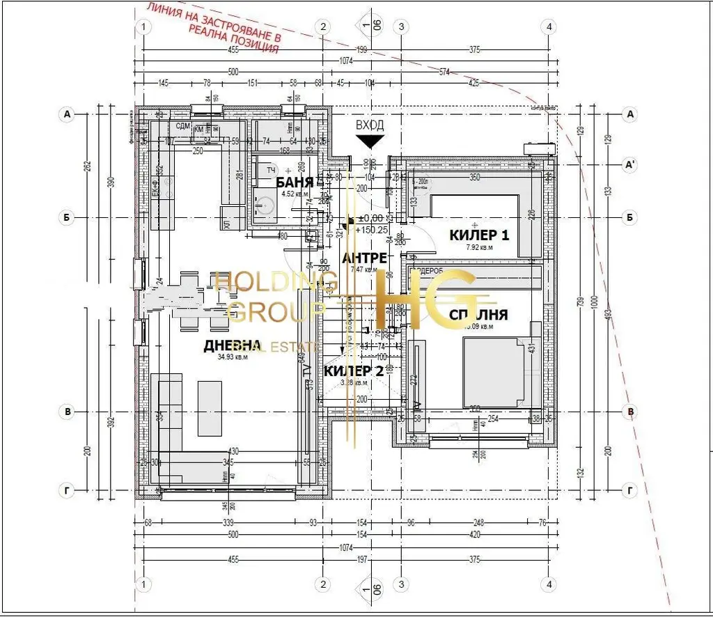
Жилищна площ: 198 кв.м

Двор: 451 кв.м самостоятелен, ограден.

Паркоместа: Да

Строителство започва: юни 2025

Строител: доказан и реномиран изпълнител

Проект със съвременно разпределение и качествено строителство.
Конструкция и материали: Монолитна, стоманобетонова конструкция.
Зидария: тухли Ортоблок с вертикални кухини.
Покрив: стоманобетонна плоча с керемиди.
Топлоизолация: 10 см външна система + силикатна мазилка.
Самостоятелен двор с ограда и възможност за озеленяване.

Разпределение на къщата:
Първи етаж: входно антре, просторна дневна с кухненски бокс с излаз към външна тераса и двор, баня с тоалетна, два килера, стълбище към втори етаж.
Втори етаж: централен коридор, спалня 1 със собствена баня и дрешник, спалня 2 с отделна баня с тоалетна, перално помещение.

Двураменна интериорна стълба осигурява комуникацията между етажите

Предимства на имота:
Ново строителство от доверен строител.
Самостоятелна къща с двор и паркоместа.
Функционално разпределение и модерна архитектура.
Тиха и удобна локация, само на 10 минути от центъра на Варна.
Възможност за избор на довършителни материали по време на строителството.

Ако желаете да закупите Вашият бъдещ дом с банково финансиране на най-добри условия, може да разчитате на нас за пълно съдействие и организация през целия процес.

Ние ще бъдем до Вас през цялото време и до самото финализиране на сделката

За повече информация и огледи се обадете на посочения телефон и цитирайте кода на офертата: Код 7022.

Приблизителна локация
Връзка с продавача
имоти за продажба без посредник (11230) имоти под наем без посредник (11230) имоти за продажба (11230) имоти под наем (11230) апартаменти под наем без посредник (6669) апартаменти за продажба (6669) апартаменти за продажба без посредник (6669) апартаменти под наем (6669) имоти за продажба в гр. София, Мусагеница без посредник (3217) имоти за продажба в гр. София, ПЗ Илиянци без посредник (3217) имоти за продажба в гр. София, Свобода без посредник (3217) имоти за продажба в гр. София, Горна баня без посредник (3217) имоти за продажба в гр. София, Изгрев без посредник (3217) имоти за продажба в гр. София, Славовци без посредник (3217) имоти за продажба в гр. София, Света Троица без посредник (3217) имоти за продажба в гр. София, Левски Г без посредник (3217) имоти за продажба в гр. София, Горубляне без посредник (3217) имоти за продажба в гр. София, Овча купел без посредник (3217) имоти за продажба в гр. София, м-т Орехите без посредник (3217) имоти за продажба в гр. София, Люлин 7 без посредник (3217) имоти за продажба в гр. София, Илиянци без посредник (3217) имоти за продажба в гр. София, Младост 1А без посредник (3217) имоти за продажба в гр. София, в.з. Беловодски път без посредник (3217) имоти за продажба в гр. София, Полигона без посредник (3217) имоти за продажба в гр. София, Разсадника без посредник (3217) имоти за продажба в гр. София, Подуяне без посредник (3217) имоти за продажба в гр. София, Красна поляна 3 без посредник (3217) имоти за продажба в гр. София, Младост 2 без посредник (3217) имоти за продажба в гр. София, Надежда 4 без посредник (3217) имоти за продажба в гр. София, в.з. Горна баня без посредник (3217) имоти за продажба в гр. София, Надежда 2 без посредник (3217) имоти за продажба в гр. София, в.з. Врана - Герман без посредник (3217) имоти за продажба в гр. София, НПЗ Хаджи Димитър без посредник (3217) имоти за продажба в гр. София, Павлово без посредник (3217) имоти за продажба в гр. София, в.з. Врана - Лозен без посредник (3217) имоти за продажба в гр. София, Суходол без посредник (3217) имоти за продажба в гр. София, Кубратово без посредник (3217) имоти за продажба в гр. София, Борово без посредник (3217) имоти за продажба в гр. София, Драгалевци без посредник (3217) имоти за продажба в гр. София, Белите брези без посредник (3217) имоти за продажба в гр. София, в.з. Драгалевци лифта без посредник (3217) имоти за продажба в гр. София, Илинден без посредник (3217) имоти за продажба в гр. София, Хиподрума без посредник (3217) имоти за продажба в гр. София, Лагера без посредник (3217) имоти за продажба в гр. София, Модерно предградие без посредник (3217) имоти за продажба в гр. София, Гоце Делчев без посредник (3217) имоти за продажба в гр. София, Красна поляна 1 без посредник (3217) имоти за продажба в гр. София, Център без посредник (3217) имоти за продажба в гр. София, Малинова долина без посредник (3217) имоти за продажба в гр. София, Меден рудник - зона Г без посредник (3217)