389 000 €

1 792 € /кв.м.

къща във Варна, м-т Горна Трака

Продажба Варна м-т Горна Трака Обновена: 10 Апр 2026
217 м²
365 м²
Тухла

Детайли

Площ
217 м²
Строителство
brick
Площ на земята
365 м²

Особености

under-construction
parking

Описание от продавача

Компания `ЕКС НВД` представя на Вашето внимание страхотна къща в един от най - спокойните райони на морската столицата - м-т Горна Трака.

МЕСТОПОЛОЖЕНИЕ: В близост до спирки на градски транспорт, магазини от всякакъв тип.

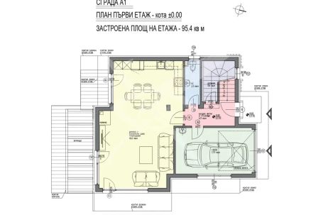
РАЗПРЕДЕЛЕНИЕ: Къщата разполага с площ от 217кв.м., разпределени в.

- Първи етаж - входно антре, дневна с трапезария и кухненски бокс, баня с тоалетна и веранда.

- Втори етаж - три спални, дрешмик, две бани с тоалетни и две тераси.

СЪСТОЯНИЕ: В строеж.

ОСОБЕНОСТИ: Към къщата има подземен гараж.

Заповядайте да Ви го покажем. Използвайки нашите услуги Вие ще превърнете закупуването на новия си дом в едно приятно изживяване, ще получите персонален консултант, съдействие при кандидатстване за кредит от всички банки в България, интериорни дизайнери и екип, който да се погрижи за нужните документи по Вашата сделка. На Ваше разположение сме всеки ден, от понеделник до неделя от 09:00 до 20:00ч. Възползвайте се от безплатна консултация в наш офис, където ще ви спестим време и ще ви запознаем с всички актуални имоти в България, отговарящи на Вашето търсене. Свържете се с нас на 0887779990 /на цената на един градски разговор/ или на 0884204511 и цитирайте кода към имота:613-19754.

Приблизителна локация
Връзка с продавача