290 000 €

1 550 € /кв.м.

къща в Бургас, Ветрен

Продажба Бургас Ветрен Обновена: 26 Март 2026
187 м²
400 м²
Тухла
2027 г.

Детайли

Площ
187 м²
Строителство
brick
Год. на строителство
2027 г.
Площ на земята
400 м²

Описание от продавача

🏡 НОВА ДВУЕТАЖНА КЪЩА В КВ. ВЕТРЕН МИНЕРАЛНИ БАНИ.
Ем Джи Естейт предлага за продажба модерна двуетажна къща, разположена в един от най-предпочитаните и спокойни райони на Бургас кв. Ветрен Минерални бани, съчетаващ природа, чист въздух и бърз достъп до града.
Имотът е част от ново строителство със съвременна архитектура, функционално разпределение и отлични параметри за целогодишно живеене.

📐 Разпределение:
🔹 Първи етаж 80.13 кв.м:
входно антре
просторна дневна с кухня и трапезария 33.74 кв.м
спалня / кабинет 14.68 кв.м
баня с тоалетна 3.43 кв.м
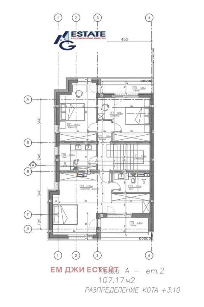
🔹 Втори етаж 107.17 кв.м:
спалня 1 13.59 кв.м с излаз към обща тераса
спалня 2 13.79 кв.м
спалня 3 27.05 кв.м, със самостоятелен дрешник и баня с тоалетна 4.61 кв.м
обща тераса 5.81 кв.м
обща баня с тоалетна 6.55 кв.м

Допълнителни предимства:
✔️ Самостоятелен двор 400 кв.м.
✔️ Две паркоместа, включени в цената.
✔️ Без такса поддръжка.
✔️ Възможност за индивидуални схеми на плащане.
✔️ Тих и зелен район, близо до минерални извори и СПА зони.

🏗️ Строителство:
Начало на строителството: 2025 г.
Срок за завършване: 12 месеца

🌿 За Бургаски минерални бани
Бургаски минерални бани е спа район на около 15 км от град Бургас, разположен в подножието на Източна Стара планина. Основният продукт тук е минералната вода с температура около ~41 C, позната от древността и използвана за терапевтични и рехабилитационни цели.
Тук природата, спа традициите и близостта до морския курорти правят района предпочитано място за постоянно живеене и отдих.
Идеален имот за семейно жилище, инвестиция или дом близо до природата, без компромис с удобствата на града.

📞 Свържете се с Ем Джи Естейт за повече информация и оглед и цитирайте този код: ДП-1746609.

Приблизителна локация
Връзка с продавача