225 000 €

1 000 € /кв.м.

Къща в Бургас, Долно Езерово

Продажба Бургас Долно Езерово Обновена: 12 Март 2026
225 м²
500 м²
Тухла
2027 г.

Детайли

Площ
225 м²
Строителство
brick
Год. на строителство
2027 г.
Площ на земята
500 м²

Особености

parking

Описание от продавача

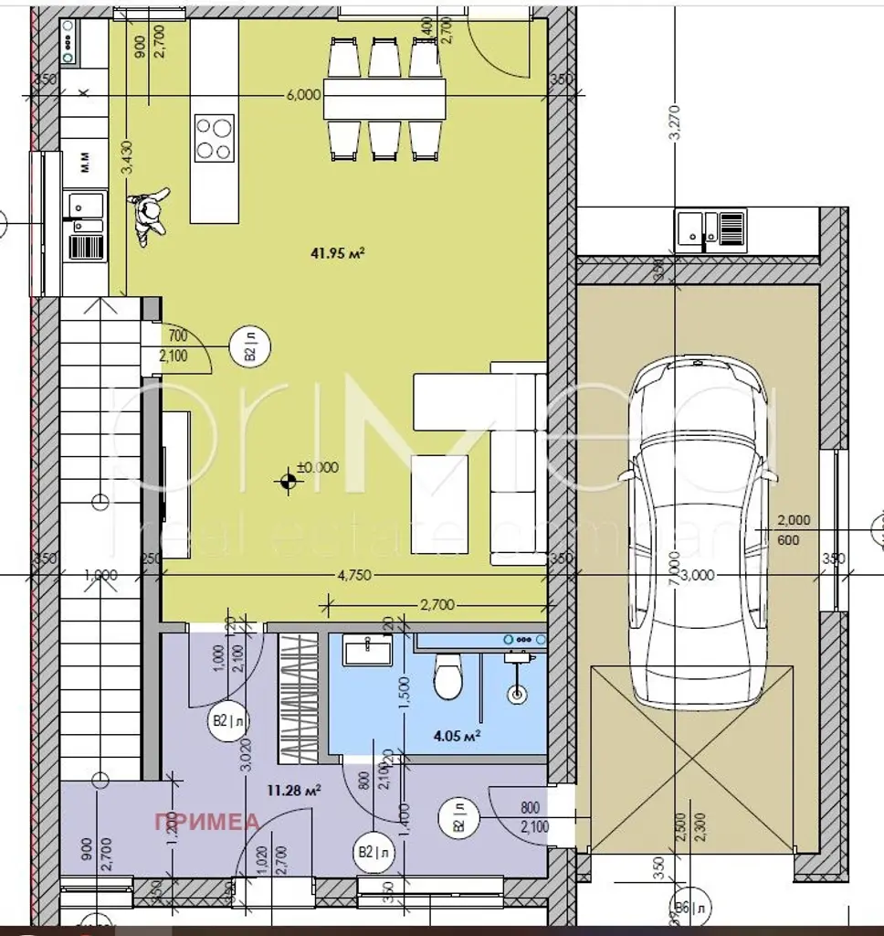
ПРИМЕА недвижими имоти продава стилна двуетажна къща в начален етап на строителство в кв. Долно езерово, гр. Бургас. Разположена е в самостоятелен парцел, с РЗП 225 кв.м. и двор 500 кв.м. На първия етаж е предвидена просторна всекидневна с кухня, баня и тоалетна, коридор и стълбище, гараж. Вторият етаж се състои от три големи спални, едната от които с баня и тоалетна, както и още една баня с тоалетна на етажа. Всяка от спалните има излаз към прилежащата й тераса.

За удобство на жителите кварталът разполага с училище, детска градина,магазини,спортни игрища и редовен градски транспорт. Само на 10 минути с автомобил от Бургас, този дом би бил идеалното място за всеки, който търси баланс между градския комфорт и близостта с природата.

Свържете се с нас за повече информация.

Приблизителна локация
Връзка с продавача