2 476 800 €

1 290 € /кв.м.

промишлена сграда в Пловдив, Индустриална зона - Юг

Продажба Пловдив Индустриална зона - Юг Обновена: 16 Апр 2026
1 920 м²
Сглобяема конструкция
2026 г.

Обяви за този имот (1)

2 476 800 €
1
1 Яну 0001  ·  16 Апр 2026

Детайли

Площ
1 920 м²
Строителство
modular
Год. на строителство
2026 г.

Описание от продавача

✅ЕКСКЛУЗИВНО ПРЕДЛОЖЕНИЕ!

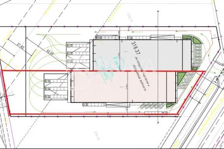
➡️БРАВА ЕСТЕЙТ ви представя многофункционална сграда, разположена в парцел с директен достъп от Околовръстния път на град Пловдив. Обектът е промишлено‐търговска база, включваща складово хале, шоурум зона, както и офисни помещения, разположени над шоурума. Минималната височина на тавана на халето е 7.5м.

➡️РЗП на имота 1920 кв.м.

➡️Обектът е проектиран като съвременна логистично‐търговска сграда, подходяща за:

складова и дистрибуционна дейност,
търговско представителство,
изложбена/демонстрационна зона,
офисна администрация.

➡️Архитектурното решение е оптимизирано за висока функционалност, бърза логистика и удобство за клиенти и служители.

➡️Сградата има наличен паркинг за леки автомобили пред шоурумите, за тежкотоварния превоз е предвидена зона за паркинг, товарна и разтоварна дейност. Входовете и изходите са организирани така, че да позволяват еднопосочно движение на трафика. Обособени са 2 рампи, които осигуряват лесен достъп до всички части на помещението

➡️Локацията е изключително атрактивна, разположена директно на Околовръстния път на Пловдив, с отлична видимост, лесен достъп и бърза връзка към ключови направления АМ Тракия , Южната индустриална зона и основните входове към града. Зоната е развита и предпочитана за бизнес, логистика и търговия.

➡️Цената е за халето, което е ограденото с червени линии

➡️Обявената цена е без ДДС

➡️Срок за завършване от 6 до 8 месеца

📞За повече информация ни се обадете директно!

Приблизителна локация
Връзка с продавача
имоти за продажба без посредник (11265) имоти под наем без посредник (11265) имоти за продажба (11265) имоти под наем (11265) апартаменти под наем без посредник (6684) апартаменти за продажба (6684) апартаменти за продажба без посредник (6684) апартаменти под наем (6684) имоти за продажба в гр. София, Мусагеница без посредник (3225) имоти за продажба в гр. София, ПЗ Илиянци без посредник (3225) имоти за продажба в гр. София, Свобода без посредник (3225) имоти за продажба в гр. София, Горна баня без посредник (3225) имоти за продажба в гр. София, Изгрев без посредник (3225) имоти за продажба в гр. София, Славовци без посредник (3225) имоти за продажба в гр. София, Света Троица без посредник (3225) имоти за продажба в гр. София, Левски Г без посредник (3225) имоти за продажба в гр. София, Горубляне без посредник (3225) имоти за продажба в гр. София, Овча купел без посредник (3225) имоти за продажба в гр. София, м-т Орехите без посредник (3225) имоти за продажба в гр. София, Люлин 7 без посредник (3225) имоти за продажба в гр. София, Илиянци без посредник (3225) имоти за продажба в гр. София, Младост 1А без посредник (3225) имоти за продажба в гр. София, в.з. Беловодски път без посредник (3225) имоти за продажба в гр. София, Полигона без посредник (3225) имоти за продажба в гр. София, Разсадника без посредник (3225) имоти за продажба в гр. София, Подуяне без посредник (3225) имоти за продажба в гр. София, Красна поляна 3 без посредник (3225) имоти за продажба в гр. София, Младост 2 без посредник (3225) имоти за продажба в гр. София, Надежда 4 без посредник (3225) имоти за продажба в гр. София, в.з. Горна баня без посредник (3225) имоти за продажба в гр. София, Надежда 2 без посредник (3225) имоти за продажба в гр. София, в.з. Врана - Герман без посредник (3225) имоти за продажба в гр. София, НПЗ Хаджи Димитър без посредник (3225) имоти за продажба в гр. София, Павлово без посредник (3225) имоти за продажба в гр. София, в.з. Врана - Лозен без посредник (3225) имоти за продажба в гр. София, Суходол без посредник (3225) имоти за продажба в гр. София, Кубратово без посредник (3225) имоти за продажба в гр. София, Борово без посредник (3225) имоти за продажба в гр. София, Драгалевци без посредник (3225) имоти за продажба в гр. София, Белите брези без посредник (3225) имоти за продажба в гр. София, в.з. Драгалевци лифта без посредник (3225) имоти за продажба в гр. София, Илинден без посредник (3225) имоти за продажба в гр. София, Хиподрума без посредник (3225) имоти за продажба в гр. София, Лагера без посредник (3225) имоти за продажба в гр. София, Модерно предградие без посредник (3225) имоти за продажба в гр. София, Гоце Делчев без посредник (3225) имоти за продажба в гр. София, Красна поляна 1 без посредник (3225) имоти за продажба в гр. София, Център без посредник (3225) имоти за продажба в гр. София, Малинова долина без посредник (3225) имоти за продажба в гр. София, Меден рудник - зона Г без посредник (3225)