0 €

0 € /кв.м.

промишлена сграда в Пловдив, Индустриална зона - Марица

Продажба Пловдив Индустриална зона - Марица Обновена: 15 Апр 2026
314 м²
Сглобяема конструкция
2027 г.

Обяви за този имот (1)

0 €
1
1 Яну 0001  ·  15 Апр 2026

Детайли

Площ
314 м²
Строителство
modular
Год. на строителство
2027 г.

Особености

parking
internet
video-surveillance
access-control
security

Описание от продавача

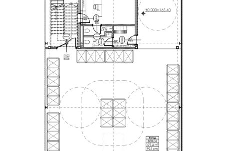
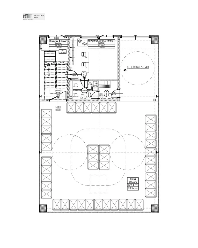
Индустриално скалдово помещение с практично разпределние

ID:Base Plus 6

Продава се индустриално помещение с оптимална офисна зона в Industrial Hub Plovdiv Ring West I. Идеално решение за логистика, дейности в сферата на услугите, търговията и дистрибуцията.

Площи:
-Застроена площ (ЗП): 157 m²
-Разгъната застроена площ (РЗП): 314 m²
-Склад: 129 m²
-Офис: 107,7 m²
-Битови помещения: 11,7 m²

Паркоместа и зони за индивиуално ползване:
-Зона за паркиране и зареждане: 89 m²
-Паркоместа: 2 бр.

Технически параметри
-Височина склад 9m до ЛТ ламарина
-Височина шоурум/офис 4m до ЛТ ламарина
-Размери на товарем вход: Ш 3м. х В 3,5м.
-Осветеност: 566 lux
-Инсталирана мощност: 50 kW
-Максимална мощност: 30 kW
-Трифазно електрическо табло

Имотът е самостоятелен с индивидуален кадастрален идентификатор и отделни партиди за ток и вода. Разполага с удобен достъп за товарни автомобили и възможност за комбиниране на склад, офис и търговска дейност на едно място.

Инвеститорът осигурява професионална поддръжка на обекта:
-FTP интернет инфраструктура
-24/7 видеонаблюдение
-Зарядни станции за електромобили
-Пълна ВиК система
-Дренаж и локална пречиствателна станция
-Дизелов агрегат

Първият индустриален парк в България за малкия и среден бизнес - Industrial Hub Plovdiv Ring West I.

www.industrialhub.bg

Точен адрес

Връзка с продавача
имоти за продажба без посредник (11265) имоти под наем без посредник (11265) имоти за продажба (11265) имоти под наем (11265) апартаменти под наем без посредник (6684) апартаменти за продажба (6684) апартаменти за продажба без посредник (6684) апартаменти под наем (6684) имоти за продажба в гр. София, Мусагеница без посредник (3225) имоти за продажба в гр. София, ПЗ Илиянци без посредник (3225) имоти за продажба в гр. София, Свобода без посредник (3225) имоти за продажба в гр. София, Горна баня без посредник (3225) имоти за продажба в гр. София, Изгрев без посредник (3225) имоти за продажба в гр. София, Славовци без посредник (3225) имоти за продажба в гр. София, Света Троица без посредник (3225) имоти за продажба в гр. София, Левски Г без посредник (3225) имоти за продажба в гр. София, Горубляне без посредник (3225) имоти за продажба в гр. София, Овча купел без посредник (3225) имоти за продажба в гр. София, м-т Орехите без посредник (3225) имоти за продажба в гр. София, Люлин 7 без посредник (3225) имоти за продажба в гр. София, Илиянци без посредник (3225) имоти за продажба в гр. София, Младост 1А без посредник (3225) имоти за продажба в гр. София, в.з. Беловодски път без посредник (3225) имоти за продажба в гр. София, Полигона без посредник (3225) имоти за продажба в гр. София, Разсадника без посредник (3225) имоти за продажба в гр. София, Подуяне без посредник (3225) имоти за продажба в гр. София, Красна поляна 3 без посредник (3225) имоти за продажба в гр. София, Младост 2 без посредник (3225) имоти за продажба в гр. София, Надежда 4 без посредник (3225) имоти за продажба в гр. София, в.з. Горна баня без посредник (3225) имоти за продажба в гр. София, Надежда 2 без посредник (3225) имоти за продажба в гр. София, в.з. Врана - Герман без посредник (3225) имоти за продажба в гр. София, НПЗ Хаджи Димитър без посредник (3225) имоти за продажба в гр. София, Павлово без посредник (3225) имоти за продажба в гр. София, в.з. Врана - Лозен без посредник (3225) имоти за продажба в гр. София, Суходол без посредник (3225) имоти за продажба в гр. София, Кубратово без посредник (3225) имоти за продажба в гр. София, Борово без посредник (3225) имоти за продажба в гр. София, Драгалевци без посредник (3225) имоти за продажба в гр. София, Белите брези без посредник (3225) имоти за продажба в гр. София, в.з. Драгалевци лифта без посредник (3225) имоти за продажба в гр. София, Илинден без посредник (3225) имоти за продажба в гр. София, Хиподрума без посредник (3225) имоти за продажба в гр. София, Лагера без посредник (3225) имоти за продажба в гр. София, Модерно предградие без посредник (3225) имоти за продажба в гр. София, Гоце Делчев без посредник (3225) имоти за продажба в гр. София, Красна поляна 1 без посредник (3225) имоти за продажба в гр. София, Център без посредник (3225) имоти за продажба в гр. София, Малинова долина без посредник (3225) имоти за продажба в гр. София, Меден рудник - зона Г без посредник (3225)