-15% под пазара

спрямо ≈ 2 072 € /кв.м

138 000 €

1 769 € /кв.м.

Тристаен апартамент с двор в Трошево, Варна

Продажба Варна Трошево Обновена: 9 Апр 2026
78 м²
Тухла
3 стаи
2027 г.

Доходност от наем: 5.4% /год. Средна инвестиционна оценка

Обяви за този имот (1)

138 000 €
1
1 Яну 0001  ·  9 Апр 2026
-15% под пазара (1 769 €/кв.м спрямо 2 072 €/кв.м)
Потенциална годишна доходност: 5.4% (база: ~625 €/мес)
Инвестиционен клас: Средна

Коментар от imotesa

AI обобщение

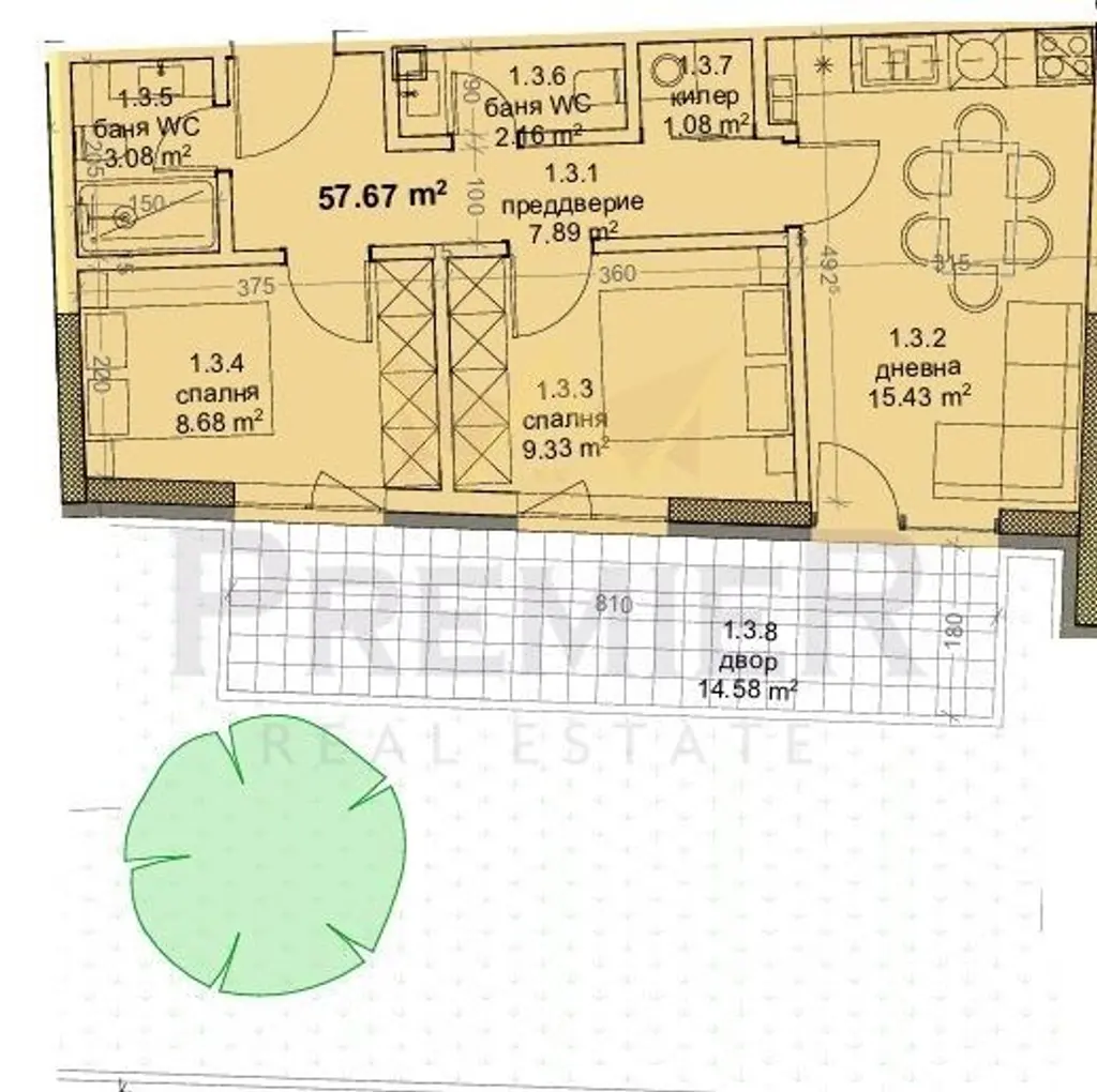
Апартамент с 3 стаи в град Варна, квартал Трошево, част от нова сграда с тухлено строителство от 2027 г. Имотът разполага със собствен двор от 14.58 кв.м. и е на партерен етаж.

Разпределението е функционално, без излишни площи, което позволява ефективно използване на общо 78 кв.м. жилищна площ.

Сградата е нова, с асансьор, видеонаблюдение и контролиран достъп, което осигурява допълнителна сигурност и удобство.

Локацията е в близост до Delta Mall и основни транспортни връзки, както и училища и търговски центрове, което прави района удобен за живеене и инвестиция.

Имотът е подходящ за семейства, търсещи жилище с двор в градска среда, както и за инвестиция с цел отдаване под наем или препродажба.

Разпределение

  • спалня
  • спалня
  • спалня

Предимства

функционално разпределение

ново строителство

асансьор

видеонаблюдение

Недостатъци

партер

Детайли

Площ
78 м²
Стаи
3
Строителство
brick
Год. на строителство
2027 г.

Особености

elevator
video-surveillance
access-control
renovated

Описание от продавача

💰 ТРИСТАЕН апартамент с ДВОР идеална ПЪРВА инвестиция! 🏡
✨ Имоти ПРЕМИЕР Ви представя компактен и функционален тристаен апартамент с площ от 78кв.м2 и собствен двор 14.58 кв.м, разположен в чисто нова сграда до Delta Mall кв. Младост!

👉 НАЙ-ДОСТЪПНАТА ЦЕНА за тристаен апартамент в района перфектна възможност за първа инвестиция с цел препродажба или отдаване под наем!

👉 Партерен имот със самостоятелен двор чудесен вариант за млади семейства или за наематели, които търсят уют и зеленина.

👉 Функционално разпределение без излишни площи всеки квадрат е оползотворен максимално.

👉 Гъвкави схеми на плащане и възможност за ниско самоучастие при първа вноска.

📍 Локация: кв. Младост, непосредствено до Delta Mall Варна район с отлична инфраструктура, бърз достъп до търговски центрове, училища и транспорт.

🏗️ Сграда с разрешение за строеж, изграждана от доказан строител с опит и стабилно портфолио.

🚗 Опция за външни и подземни паркоместа.

🔥 Перфектна възможност за първа инвестиция на атрактивна цена!

Имот с висок потенциал за бърза препродажба или стабилна месечна доходност от наем.

🔥 Ограничен брой свободни апартаменти възползвайте се навреме! ⚡️

Код на обявата:374972
📞 Свържете се с мен за повече информация и индивидуална оферта:
Калоян Атанасов Имоти Премиер

Приблизителна локация
Връзка с продавача
имоти за продажба без посредник (11265) имоти под наем без посредник (11265) имоти за продажба (11265) имоти под наем (11265) апартаменти под наем без посредник (6684) апартаменти за продажба (6684) апартаменти за продажба без посредник (6684) апартаменти под наем (6684) имоти за продажба в гр. София, Мусагеница без посредник (3225) имоти за продажба в гр. София, ПЗ Илиянци без посредник (3225) имоти за продажба в гр. София, Свобода без посредник (3225) имоти за продажба в гр. София, Горна баня без посредник (3225) имоти за продажба в гр. София, Изгрев без посредник (3225) имоти за продажба в гр. София, Славовци без посредник (3225) имоти за продажба в гр. София, Света Троица без посредник (3225) имоти за продажба в гр. София, Левски Г без посредник (3225) имоти за продажба в гр. София, Горубляне без посредник (3225) имоти за продажба в гр. София, Овча купел без посредник (3225) имоти за продажба в гр. София, м-т Орехите без посредник (3225) имоти за продажба в гр. София, Люлин 7 без посредник (3225) имоти за продажба в гр. София, Илиянци без посредник (3225) имоти за продажба в гр. София, Младост 1А без посредник (3225) имоти за продажба в гр. София, в.з. Беловодски път без посредник (3225) имоти за продажба в гр. София, Полигона без посредник (3225) имоти за продажба в гр. София, Разсадника без посредник (3225) имоти за продажба в гр. София, Подуяне без посредник (3225) имоти за продажба в гр. София, Красна поляна 3 без посредник (3225) имоти за продажба в гр. София, Младост 2 без посредник (3225) имоти за продажба в гр. София, Надежда 4 без посредник (3225) имоти за продажба в гр. София, в.з. Горна баня без посредник (3225) имоти за продажба в гр. София, Надежда 2 без посредник (3225) имоти за продажба в гр. София, в.з. Врана - Герман без посредник (3225) имоти за продажба в гр. София, НПЗ Хаджи Димитър без посредник (3225) имоти за продажба в гр. София, Павлово без посредник (3225) имоти за продажба в гр. София, в.з. Врана - Лозен без посредник (3225) имоти за продажба в гр. София, Суходол без посредник (3225) имоти за продажба в гр. София, Кубратово без посредник (3225) имоти за продажба в гр. София, Борово без посредник (3225) имоти за продажба в гр. София, Драгалевци без посредник (3225) имоти за продажба в гр. София, Белите брези без посредник (3225) имоти за продажба в гр. София, в.з. Драгалевци лифта без посредник (3225) имоти за продажба в гр. София, Илинден без посредник (3225) имоти за продажба в гр. София, Хиподрума без посредник (3225) имоти за продажба в гр. София, Лагера без посредник (3225) имоти за продажба в гр. София, Модерно предградие без посредник (3225) имоти за продажба в гр. София, Гоце Делчев без посредник (3225) имоти за продажба в гр. София, Красна поляна 1 без посредник (3225) имоти за продажба в гр. София, Център без посредник (3225) имоти за продажба в гр. София, Малинова долина без посредник (3225) имоти за продажба в гр. София, Меден рудник - зона Г без посредник (3225)