123 800 €

1 650 € /кв.м.

Двустаен апартамент с балкон в Младост 1, Варна

Продажба Варна Младост 1 Обновена: 14 Апр 2026
75 м²
Тухла
1 бани
12 /18 ет.
2027 г.

Коментар от imotesa

AI обобщение

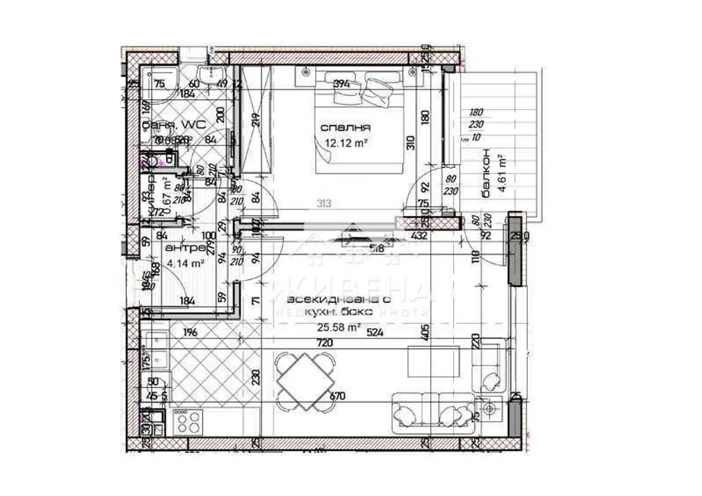
Апартамент с площ 75 кв.м, разположен на 12-ти етаж в нова сграда в кв. Младост 1, Варна.

Разпределението включва антре, дневна с трапезария, спалня, баня с WC, килер и балкон с излаз от двете стаи. Изложението е източно.

Сградата е тухлена, строителството е в процес с очакван завършек през 2027 г., с асансьор и контролиран достъп. Апартаментът ще се предава на шпакловка, мазилка и замазка.

Локацията е комуникативна, с близост до здравни заведения, училища, магазини и транспорт, в спокоен район с озеленен парк.

Имотът е подходящ за градски живот с удобства и функционално разпределение.

Разпределение

  • антре (4.14 кв.м)
  • дневна с трапезария (25.58 кв.м)
  • спалня (12.12 кв.м)
  • баня с WC (3.68 кв.м)
  • килер (0.63 кв.м)
  • балкон (4.61 кв.м)

Предимства

функционално разпределение

източно изложение

ново строителство

асансьор

Недостатъци

Няма налични данни за недостатъци.

Изложение

N S E W
E
Изложение на имота

Детайли

Площ
75 м²
Бани
1
Етаж
12 от 18
Строителство
brick
Год. на строителство
2027 г.

Особености

elevator
access-control
renovated
parking

Описание от продавача

Агенция Живена продава двустаен апартамент с обща площ: 75.16 кв.м, на 12-ти етаж в нова сграда в строеж, кв. Младост 1. Разпределението на имота е следното: антре (4.14 кв.м), дневна с трапезария (25.58 кв.м), спалня (12.12 кв.м), баня с WC (3.68 кв.м), килер (0.63 кв.м) и балкон (4.61 кв.м) с излаз от двете стаи. Изложението му е ориентирано изцяло на изток. Апартаментите ще се издават в степен на завършеност по БДС - на шпакловка, мазилка и замазка; с висок клас блиндирана врата, монтирани изводи за климатици във всички стаи. Сградата ще бъде завършена с модерен дизайн, луксозно завършени общи части и асансьори. Има възможност да изберете други двустайни или тристайни апартаменти. Може да бъде закупено паркомясто на цени от 20 000 евро до 25 000 евро. Предлагат се гъвкави схеми на плащане. Стартирало е строителството, в момента е пред Акт 14 (очаква през лятото на 2026 г.). Срокът за построяване и въвеждане в експлоатация е 36 месеца - края на 2027 г.. Комплексът се простира на терен от 10 декара, с 2 внушителни жилищни сгради с 18 надземни етажи и ще разполага с озеленен парк за отдих и разходка, хранителен магазин, просторни търговски площи, 386 броя паркоместа - в открит и покрит паркинг, както и гаражни клетки. Намира се в много комуникативен район на града, в близост до здравни заведения, спортни центрове, училища, супермаркети, молове и забавления, основни пътни артерии, хипермаркети, автобусни спирки и др., което осигурява всичко необходимо за съвременен градски живот, с отличен достъп, в тих и спокоен район. Агенция Живена извършва необходимите проверки на имота, който сте избрали, организира всички етапи на сделката до нейното финализиране. Оказваме съдействие за отпускане на банков кредит. Оферта 7766

Приблизителна локация
Връзка с продавача