5% на пазара

спрямо ≈ 1 777 € /кв.м

163 000 €

1 680 € /кв.м.

Тристаен апартамент с южно изложение във Възраждане 2, Варна

Продажба Варна Възраждане 2 Обновена: 10 Апр 2026
97 м²
Тухла
2 бани
2 /13 ет.
2027 г.

Доходност от наем: 3.2% /год. Ниска инвестиционна оценка

5% на пазара (1 680 €/кв.м спрямо 1 777 €/кв.м)
Потенциална годишна доходност: 3.2% (база: ~438 €/мес)
Инвестиционен клас: Ниска

Коментар от imotesa

AI обобщение

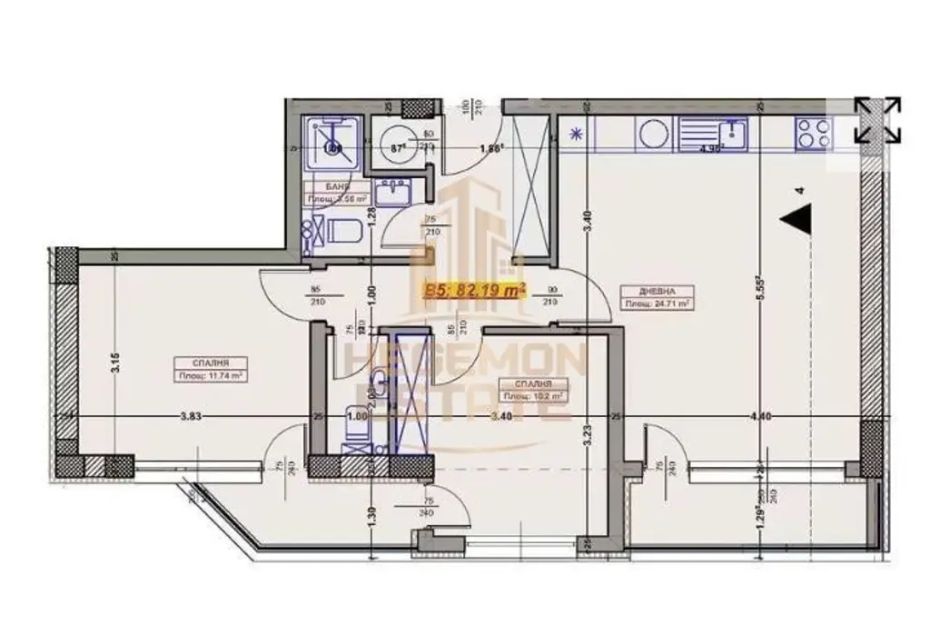
Предлаганият тристаен апартамент е част от новострояща се тухлена сграда с акт 14, разположена в квартал Възраждане 2, Варна. Жилището се намира на втори етаж от 13 с асансьор и предлага функционално разпределение: коридор, кухня с хол и трапезария, две спални, баня с тоалетна, отделна тоалетна, килер и тераса. Южното изложение осигурява естествена светлина през по-голямата част от деня. Локацията е удобна, с близост до магазини, детски градини, училища, Парк Възраждане и автобусни спирки, което допринася за комфортен градски начин на живот. Строителството е тухлено, с очаквана година на завършване 2027 г.

Разпределение

  • коридор
  • кухня с хол и трапезария
  • две спални
  • баня с тоалетна
  • отделна тоалетна
  • килер
  • тераса

Предимства

южно изложение

функционално разпределение

близо до парк

добра инфраструктура

Недостатъци

Няма налични данни за недостатъци.

Изложение

N S E W
S
Изложение на имота

Детайли

Площ
97 м²
Стаи
3
Бани
2
Етаж
2 от 13
Строителство
brick
Год. на строителство
2027 г.

Описание от продавача

Агенция за недвижими имоти HEGEMON ESTATE Ви предлага тристаен апартамент в кв. Възраждане . Жилището се намира в новострояща се модерна жилищна сграда с акт 14 на етаж 2 от 13 с асансьор

Разпределение: коридор, кухня с хол и трапезария, две спални, баня с тоалетна, отделна тоалетна, килер и тераса.

Изложението на апартамента е южно.

Мястото, на което е разположена сградата е в близост до магазини, детски градини, училища, Парк Възраждане и автобусни спирки.

Агенция HEGEMON ESTATE съдейства с професионална консултация, подготовка на нужните документи за закупуване на желаният от вас дом, както и съдействие за отпускане на банков кредит при най-добри условия. За повече информация, заповядайте в нашият офис, който се намира на Бул .Владислав Варненчик 109, или се обадете на посоченият телефон. Код на офертата: 15347

Приблизителна локация
Връзка с продавача