+10% над пазара

Тристаен апартамент на първи етаж в нова сграда във Виница, Варна

Варна Виница
Публикувано: 13 Яну 2026 · Обновено: 9 Апр 2026
Продажба
Продажба 92 500 € 1 380 €/кв.м
Очакван наем 687 €/мес
Площ
67 м²
Етаж
1 / 4
Строителство
Тухла
Година
2027
AI Анализ на доходността 8.9% / г.
Силна инвестиционна оценка · ~687 €/мес наем при пазарни условия

Предимства и недостатъци

Предимства
ново строителство
функционално разпределение
тих район
възможност за гараж
Недостатъци
първи етаж

Детайли

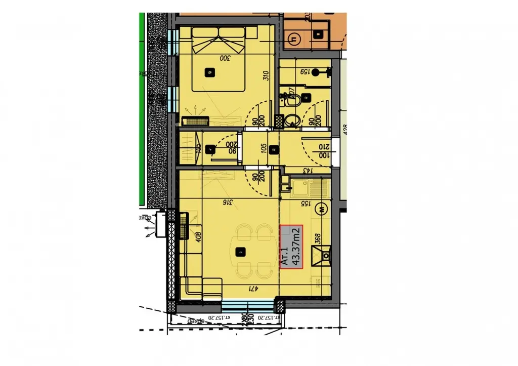
Площ67 м²
Стаи3
Етаж1 от 4
СтроителствоТухла
Год. на строителство2027 г.

Коментар от imotesa

AI обобщение

Тристаен апартамент с площ 67 кв.м в град Варна, квартал Виница.

Жилището е разположено на първи етаж от четириетажна тухлена сграда, строителство 2027 г.

Сградата е ново строителство с качествени материали и предлага възможност за паркомясто или гараж.

Кварталът е тих и спокоен, с асфалтиран път и бърз достъп до центъра на града.

Подходящ за хора, търсещи ново жилище с удобна локация и функционално разпределение.

Описание от продавача

САМО ЗА КЛИЕНТИ НА БУЛИМОТ!Започнат строеж! Нова бутикова четириетажна сграда с 14 жилища, паркоместа и гаражи в кв.Виница от доказан строител!Гъвкави схеми на разсрочено плащане!
Много добра локация, в тих и спокоен район, с бърз достъп до центъра на града,
асфалтов път.
Възможност за закупуване на гараж или външно паркомясто.
за информация: Ивелина Йорданова,реф. 13496

Приблизителна локация