0% на пазара

спрямо ≈ 1 602 € /кв.м

141 000 €

1 602 € /кв.м.

Тристаен апартамент във Варна, Възраждане 3, М т Пчелина

Продажба Варна Възраждане 3 Обновена: 15 Апр 2026
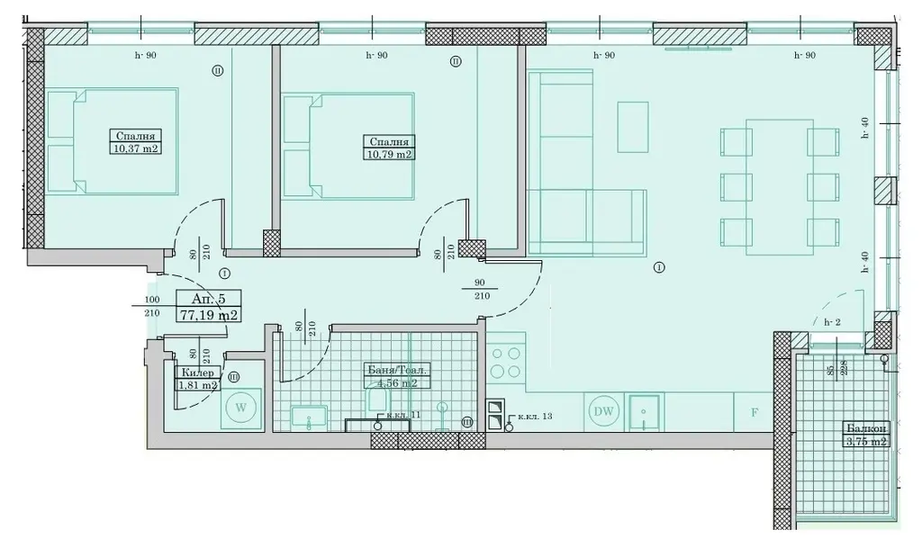
88 м²
Тухла
3 стаи
2 /4 ет.
2026 г.

Доходност от наем: 4.7% /год. Средна инвестиционна оценка

Обяви за този имот (1)

141 000 €
1
1 Яну 0001  ·  15 Апр 2026
0% на пазара (1 602 €/кв.м спрямо 1 602 €/кв.м)
Потенциална годишна доходност: 4.7% (база: ~550 €/мес)
Инвестиционен клас: Средна

Детайли

Площ
88 м²
Стаи
3
Етаж
2 от 4
Строителство
brick
Год. на строителство
2026 г.

Особености

elevator
parking
leasing
access-control
renovated

Описание от продавача

АКТ 14,НОВА СГРАДА,РАЗСРОЧЕНО ПЛАЩАНЕ,ВЪЗМОЖНОСТ ЗА ЗАКУПУВАНЕ НА ПАРКОМЯСТО.
Нова Хоум предлага на Вашето внимание просторен тристаен апартамент с югоизточно изложение в м-т Пчелина, състоящ се от:

✅Слънчева дневна с кухненски кът и прилежаща тераса
✅Две спални
✅Баня с тоалетна
✅Килер/дрешник
✅Голям коридор
Жилището ще бъде завършено по БДС.
Предимства:
✅Разсрочено плащане по време на строителството
✅ Просторни и светли апартаменти
✅ Възможност за закупуване на паркомясто
✅ Спокойна локация и бърз достъп до града

Нова Хоум съдейства на своите клиенти до нотариалното изповядване на сделката, за отпускане на кредит с преференциални условия към всички водещи банки на пазара, както и за ремонтни и довършителни дейности /завършване до ключ/ на преференциални цени.

За повече информация и огледи: Никол Стойкова +359896916006

Приблизителна локация
Връзка с продавача
имоти за продажба без посредник (11265) имоти под наем без посредник (11265) имоти за продажба (11265) имоти под наем (11265) апартаменти под наем без посредник (6684) апартаменти за продажба (6684) апартаменти за продажба без посредник (6684) апартаменти под наем (6684) имоти за продажба в гр. София, Мусагеница без посредник (3225) имоти за продажба в гр. София, ПЗ Илиянци без посредник (3225) имоти за продажба в гр. София, Свобода без посредник (3225) имоти за продажба в гр. София, Горна баня без посредник (3225) имоти за продажба в гр. София, Изгрев без посредник (3225) имоти за продажба в гр. София, Славовци без посредник (3225) имоти за продажба в гр. София, Света Троица без посредник (3225) имоти за продажба в гр. София, Левски Г без посредник (3225) имоти за продажба в гр. София, Горубляне без посредник (3225) имоти за продажба в гр. София, Овча купел без посредник (3225) имоти за продажба в гр. София, м-т Орехите без посредник (3225) имоти за продажба в гр. София, Люлин 7 без посредник (3225) имоти за продажба в гр. София, Илиянци без посредник (3225) имоти за продажба в гр. София, Младост 1А без посредник (3225) имоти за продажба в гр. София, в.з. Беловодски път без посредник (3225) имоти за продажба в гр. София, Полигона без посредник (3225) имоти за продажба в гр. София, Разсадника без посредник (3225) имоти за продажба в гр. София, Подуяне без посредник (3225) имоти за продажба в гр. София, Красна поляна 3 без посредник (3225) имоти за продажба в гр. София, Младост 2 без посредник (3225) имоти за продажба в гр. София, Надежда 4 без посредник (3225) имоти за продажба в гр. София, в.з. Горна баня без посредник (3225) имоти за продажба в гр. София, Надежда 2 без посредник (3225) имоти за продажба в гр. София, в.з. Врана - Герман без посредник (3225) имоти за продажба в гр. София, НПЗ Хаджи Димитър без посредник (3225) имоти за продажба в гр. София, Павлово без посредник (3225) имоти за продажба в гр. София, в.з. Врана - Лозен без посредник (3225) имоти за продажба в гр. София, Суходол без посредник (3225) имоти за продажба в гр. София, Кубратово без посредник (3225) имоти за продажба в гр. София, Борово без посредник (3225) имоти за продажба в гр. София, Драгалевци без посредник (3225) имоти за продажба в гр. София, Белите брези без посредник (3225) имоти за продажба в гр. София, в.з. Драгалевци лифта без посредник (3225) имоти за продажба в гр. София, Илинден без посредник (3225) имоти за продажба в гр. София, Хиподрума без посредник (3225) имоти за продажба в гр. София, Лагера без посредник (3225) имоти за продажба в гр. София, Модерно предградие без посредник (3225) имоти за продажба в гр. София, Гоце Делчев без посредник (3225) имоти за продажба в гр. София, Красна поляна 1 без посредник (3225) имоти за продажба в гр. София, Център без посредник (3225) имоти за продажба в гр. София, Малинова долина без посредник (3225) имоти за продажба в гр. София, Меден рудник - зона Г без посредник (3225)