124 500 €

1 447 € /кв.м.

Тристаен апартамент във Варна, Възраждане 3

Продажба Варна Възраждане 3 Обновена: 15 Апр 2026
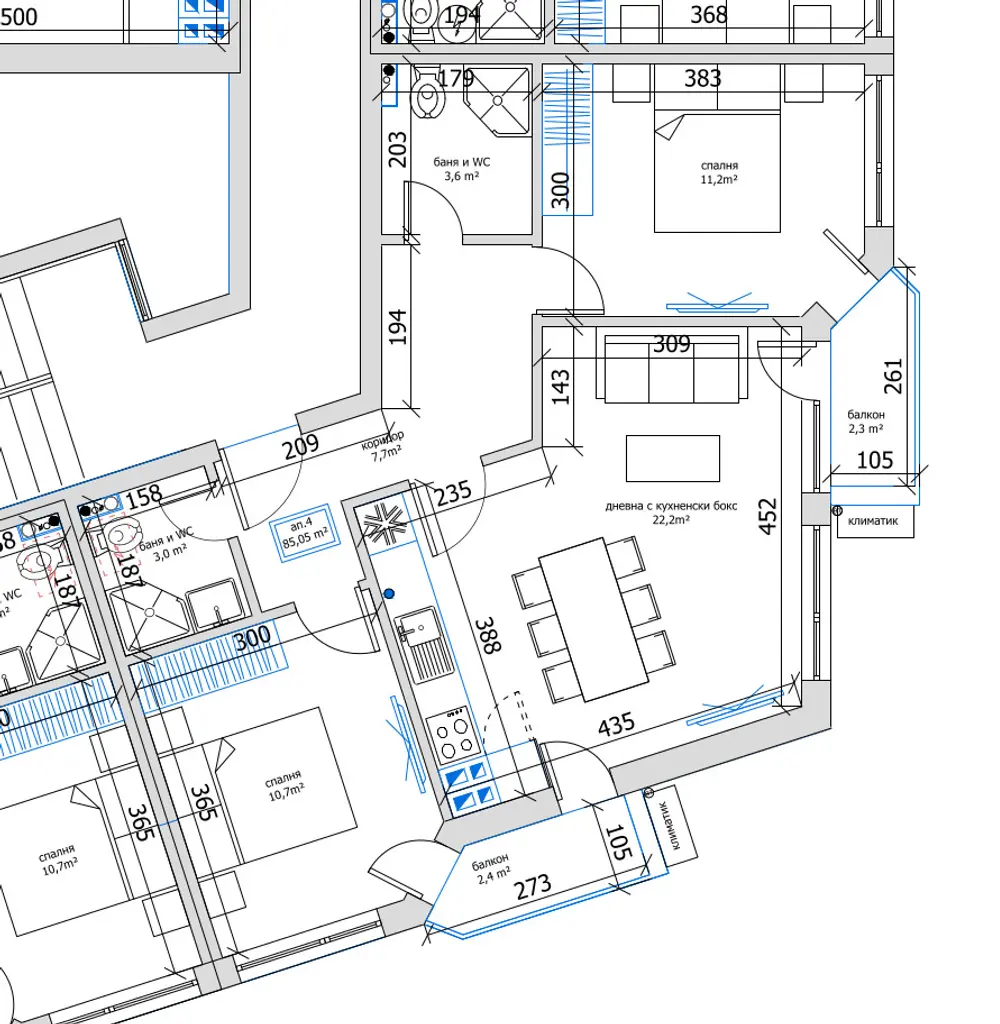
86 м²
Тухла
3 стаи
1 /4 ет.
2026 г.

Обяви за този имот (1)

124 500 €
1
1 Яну 0001  ·  15 Апр 2026

Детайли

Площ
86 м²
Стаи
3
Етаж
1 от 4
Строителство
brick
Год. на строителство
2026 г.

Особености

parking

Описание от продавача

НОВА СГРАДА!

ВЪЗМОЖНОСТ ЗА ЗАКУПУВАНЕ НА ПАРКОМЯСТО!

ПОДХОДЯЩ ЗА ЖИВЕЕНЕ И ИНВЕСТИЦИЯ!

ИМОТИ ПРЕМИЕР Ви предлага тристайно жилище в района на ж.к. Възраждане 3 , в новострояща се жилищна сграда. Имота е с обща площ от 86 кв. м., разпределени както следва: дневна стая с кухненски бокс, две спални, баня с тоалет, входно антре и балкон. Жилището е разположено на първи етаж в нова сграда с асансьор. При желание на клиента има ВЪЗМОЖНОСТ ЗА ЗАКУПУВАНЕ НА ПАРКОМЯСТО.

СГРАДАТА е с планирано висококачествено ново строителство изпълнено с най-висок клас Австрийски керамични блокове на фирмата Wienerberger Porotherm 25 N+F Light . Висок клас ПВЦ шесткамерен немски профил с троен стъклопакет. Топлоизолационна система BAUMIT ESP-60mm. Силикат-силиконова фасадна мазилка на фирмата BAUMIT с висока паропропускливост и самопочистващ се ефект. Монтирана топлоизолация на всички открити участъци с оглед предотвратяване образуването на конденз.

Ние от екипа на Имоти Премиер ще Ви помогнем в търсенето на мечтаното от Вас жилище като се ангажираме да получите професионални съвети, както и изрядни документи след пълна проверка на имота. При желание на клиента съдействаме за отпускане на банков кредит при най-изгодни условия. Разчитайте на нашата подкрепа до самото финализиране на сделката! За повече информация и оглед, позвънете на посочения телефон. Код на обявата 354445

Приблизителна локация
Връзка с продавача
имоти за продажба без посредник (11265) имоти под наем без посредник (11265) имоти за продажба (11265) имоти под наем (11265) апартаменти под наем без посредник (6684) апартаменти за продажба (6684) апартаменти за продажба без посредник (6684) апартаменти под наем (6684) имоти за продажба в гр. София, Мусагеница без посредник (3225) имоти за продажба в гр. София, ПЗ Илиянци без посредник (3225) имоти за продажба в гр. София, Свобода без посредник (3225) имоти за продажба в гр. София, Горна баня без посредник (3225) имоти за продажба в гр. София, Изгрев без посредник (3225) имоти за продажба в гр. София, Славовци без посредник (3225) имоти за продажба в гр. София, Света Троица без посредник (3225) имоти за продажба в гр. София, Левски Г без посредник (3225) имоти за продажба в гр. София, Горубляне без посредник (3225) имоти за продажба в гр. София, Овча купел без посредник (3225) имоти за продажба в гр. София, м-т Орехите без посредник (3225) имоти за продажба в гр. София, Люлин 7 без посредник (3225) имоти за продажба в гр. София, Илиянци без посредник (3225) имоти за продажба в гр. София, Младост 1А без посредник (3225) имоти за продажба в гр. София, в.з. Беловодски път без посредник (3225) имоти за продажба в гр. София, Полигона без посредник (3225) имоти за продажба в гр. София, Разсадника без посредник (3225) имоти за продажба в гр. София, Подуяне без посредник (3225) имоти за продажба в гр. София, Красна поляна 3 без посредник (3225) имоти за продажба в гр. София, Младост 2 без посредник (3225) имоти за продажба в гр. София, Надежда 4 без посредник (3225) имоти за продажба в гр. София, в.з. Горна баня без посредник (3225) имоти за продажба в гр. София, Надежда 2 без посредник (3225) имоти за продажба в гр. София, в.з. Врана - Герман без посредник (3225) имоти за продажба в гр. София, НПЗ Хаджи Димитър без посредник (3225) имоти за продажба в гр. София, Павлово без посредник (3225) имоти за продажба в гр. София, в.з. Врана - Лозен без посредник (3225) имоти за продажба в гр. София, Суходол без посредник (3225) имоти за продажба в гр. София, Кубратово без посредник (3225) имоти за продажба в гр. София, Борово без посредник (3225) имоти за продажба в гр. София, Драгалевци без посредник (3225) имоти за продажба в гр. София, Белите брези без посредник (3225) имоти за продажба в гр. София, в.з. Драгалевци лифта без посредник (3225) имоти за продажба в гр. София, Илинден без посредник (3225) имоти за продажба в гр. София, Хиподрума без посредник (3225) имоти за продажба в гр. София, Лагера без посредник (3225) имоти за продажба в гр. София, Модерно предградие без посредник (3225) имоти за продажба в гр. София, Гоце Делчев без посредник (3225) имоти за продажба в гр. София, Красна поляна 1 без посредник (3225) имоти за продажба в гр. София, Център без посредник (3225) имоти за продажба в гр. София, Малинова долина без посредник (3225) имоти за продажба в гр. София, Меден рудник - зона Г без посредник (3225)