2% на пазара

спрямо ≈ 2 412 € /кв.м

241 000 €

2 362 € /кв.м.

Тристаен апартамент във Варна, Операта

Продажба Варна Операта Обновена: 14 Апр 2026
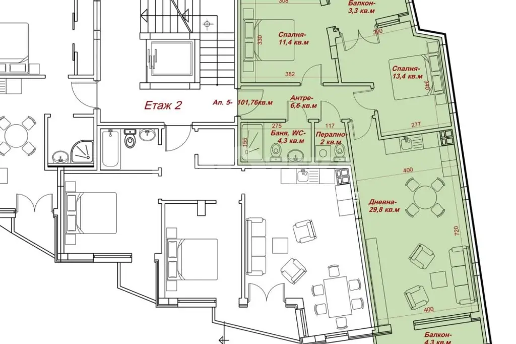
102 м²
Тухла
2 /7 ет.
2025 г.

Доходност от наем: 3.3% /год. Ниска инвестиционна оценка

Обяви за този имот (1)

241 000 €
1
1 Яну 0001  ·  14 Апр 2026
2% на пазара (2 362 €/кв.м спрямо 2 412 €/кв.м)
Потенциална годишна доходност: 3.3% (база: ~658 €/мес)
Инвестиционен клас: Ниска

Детайли

Площ
102 м²
Стаи
3
Етаж
2 от 7
Строителство
brick
Год. на строителство
2025 г.

Особености

elevator

Описание от продавача

Тристаен апартамент в новострояща се модерна сграда в централната част на Варна!

Представяме Ви просторен тристаен апартамент с отлично разпределение, разположен в новострояща се бутикова сграда с модерна визия и перфектна локация в сърцето на града.

Разпределение:


Просторна всекидневна с кухненска зона и излаз на тераса


Две спални, всяка с достъп до тераса


Баня с тоалетна


Допълнително WC


Централна, удобна и комуникативна локация близо до магазини, спирки, училища и заведения


Качествено строителство с висок клас материали
Доказан инвеститор с успешно реализирани проекти
Гъвкави схеми на плащане
Модерна фасада и завършени общи части по дизайнерски проект


Централната част на Варна с лесен достъп до морската градина, главни булеварди, търговски обекти, спирки и училища.

Подходящ както за личен дом, така и за инвестиция с висок потенциал за отдаване под наем.
Нова сграда, изпълнена с висококачествени материали с модерна визия и архитектура.
Качество на строителство. Локация. Правилни форми на стаите. Морска панорама
Обади се сега и цитирай този код 664591

Приблизителна локация
Връзка с продавача
имоти за продажба без посредник (11230) имоти под наем без посредник (11230) имоти за продажба (11230) имоти под наем (11230) апартаменти под наем без посредник (6669) апартаменти за продажба (6669) апартаменти за продажба без посредник (6669) апартаменти под наем (6669) имоти за продажба в гр. София, Мусагеница без посредник (3217) имоти за продажба в гр. София, ПЗ Илиянци без посредник (3217) имоти за продажба в гр. София, Свобода без посредник (3217) имоти за продажба в гр. София, Горна баня без посредник (3217) имоти за продажба в гр. София, Изгрев без посредник (3217) имоти за продажба в гр. София, Славовци без посредник (3217) имоти за продажба в гр. София, Света Троица без посредник (3217) имоти за продажба в гр. София, Левски Г без посредник (3217) имоти за продажба в гр. София, Горубляне без посредник (3217) имоти за продажба в гр. София, Овча купел без посредник (3217) имоти за продажба в гр. София, м-т Орехите без посредник (3217) имоти за продажба в гр. София, Люлин 7 без посредник (3217) имоти за продажба в гр. София, Илиянци без посредник (3217) имоти за продажба в гр. София, Младост 1А без посредник (3217) имоти за продажба в гр. София, в.з. Беловодски път без посредник (3217) имоти за продажба в гр. София, Полигона без посредник (3217) имоти за продажба в гр. София, Разсадника без посредник (3217) имоти за продажба в гр. София, Подуяне без посредник (3217) имоти за продажба в гр. София, Красна поляна 3 без посредник (3217) имоти за продажба в гр. София, Младост 2 без посредник (3217) имоти за продажба в гр. София, Надежда 4 без посредник (3217) имоти за продажба в гр. София, в.з. Горна баня без посредник (3217) имоти за продажба в гр. София, Надежда 2 без посредник (3217) имоти за продажба в гр. София, в.з. Врана - Герман без посредник (3217) имоти за продажба в гр. София, НПЗ Хаджи Димитър без посредник (3217) имоти за продажба в гр. София, Павлово без посредник (3217) имоти за продажба в гр. София, в.з. Врана - Лозен без посредник (3217) имоти за продажба в гр. София, Суходол без посредник (3217) имоти за продажба в гр. София, Кубратово без посредник (3217) имоти за продажба в гр. София, Борово без посредник (3217) имоти за продажба в гр. София, Драгалевци без посредник (3217) имоти за продажба в гр. София, Белите брези без посредник (3217) имоти за продажба в гр. София, в.з. Драгалевци лифта без посредник (3217) имоти за продажба в гр. София, Илинден без посредник (3217) имоти за продажба в гр. София, Хиподрума без посредник (3217) имоти за продажба в гр. София, Лагера без посредник (3217) имоти за продажба в гр. София, Модерно предградие без посредник (3217) имоти за продажба в гр. София, Гоце Делчев без посредник (3217) имоти за продажба в гр. София, Красна поляна 1 без посредник (3217) имоти за продажба в гр. София, Център без посредник (3217) имоти за продажба в гр. София, Малинова долина без посредник (3217) имоти за продажба в гр. София, Меден рудник - зона Г без посредник (3217)