4% на пазара

спрямо ≈ 1 652 € /кв.м

184 900 €

1 580 € /кв.м.

Тристаен апартамент с панорамна гледка в Младост 1, Варна

Продажба Варна Младост 1 Обновена: 14 Апр 2026
117 м²
Тухла
2 бани
18 /18 ет.
2027 г.

Доходност от наем: 3.5% /год. Ниска инвестиционна оценка

4% на пазара (1 580 €/кв.м спрямо 1 652 €/кв.м)
Потенциална годишна доходност: 3.5% (база: ~543 €/мес)
Инвестиционен клас: Ниска

Коментар от imotesa

AI обобщение

Предлаганият тристаен апартамент е част от новострояща се тухлена сграда в квартал Младост 1, Варна, с очаквана завършеност през 2027 г. Имотът е разположен на последния 18-ти етаж, което осигурява западно изложение и възможност за панорамна гледка. Общата площ от 117 кв.м включва функционално разпределение с всекидневна с кухненски бокс, две спални, две бани с тоалетни, килер и два балкона. Сградата е с модерна конструкция, а отоплението е на електричество. Районът предлага удобства като хипермаркет, търговски центрове, училища, детски градини и развита транспортна инфраструктура. Към имота има възможност за закупуване на гараж или паркомясто. Апартаментът се продава в степен на завършеност "до ключ" без санитарно обзавеждане и с готови електро и ВиК инсталации.

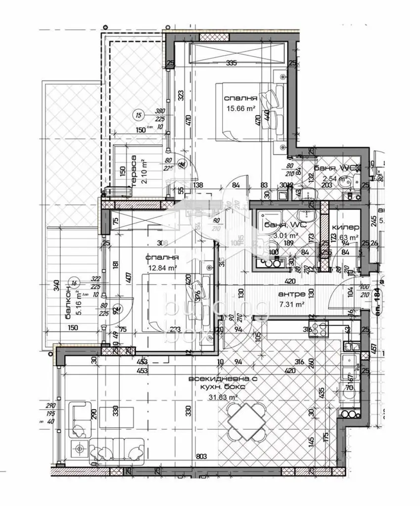
Разпределение

  • Всекидневна с кухненски бокс - 31,83 кв.м.
  • спалня - 12,84 кв.м.
  • спалня - 15,66 кв.м.
  • баня с тоалетна - 3,01 кв.м.
  • баня с тоалетна - 2,54 кв.м.
  • входно антре - 7,31 кв.м.
  • балкон - 5,16 кв.м.
  • балкон - 2,10 кв.м.
  • килер - 1,63 кв.м.

Предимства

функционално разпределение

последен етаж

добра инфраструктура

възможност за паркиране

Недостатъци

без санитарно обзавеждане

отопление на електричество

Изложение

N S E W
W
Изложение на имота

Детайли

Площ
117 м²
Стаи
3
Бани
2
Етаж
18 от 18
Строителство
brick
Год. на строителство
2027 г.

Описание от продавача

БИЛДИНГ БОКС предлага за продажба ТРИСТАЕН апартамент в новострояща се сграда в кв. 'Младост'.

ЛОКАЦИЯ: Комплексът се намира в предпочитания за живеене от много варненци кв. 'Младост'. Районът предлага множество удобства, като хипермаркет, търговски центрове, училища, детски градини, поликлиника и развита транспортна инфраструктура. На пешеходно разстояние се намират Делта Планет мол, ПГИ 'Иван Богоров', ОУ 'Антон Страшимиров', ДГ 30 'Синчец', МЦ 'Младост', стадион 'Младост' и ТЦ 'Явор'
РАЗПРЕДЕЛЕНИЕ: Всекидневна с кухненски бокс - 31,83 кв.м., спалня - 12,84 кв.м., спалня - 15,66 кв.м., баня с тоалетна - 3,01 кв.м., баня с тоалетна - 2, 54 кв.м., входно антре - 7,31 кв.м., балкон - 5,16 кв.м., балкон - 2,10 кв.м., килер - 1,63 кв.м. Чистата застроена площ на апартамента е 95,58 кв.м.
ЕТАЖ: Етаж 18 от общо 18
ИЗЛОЖЕНИЕ: ЗАПАД
ОТОПЛЕНИЕ: Електричество.
ЗАВЪРШЕНОСТ:
Коридори, кухня и стаи: под циментова замазка, стени бяла гипсова мазилка, таван гипсова шпакловка;
Санитарен възел: стени и таван мазилка, под замазка, без санитарно обзавеждане;
Ел.инсталация: вътрешна и външна 100% завършени (плюс електромер);
ВиК: външна завършена с монтиран главен водомер, вътрешна на тапа;
Външна врата: висок клас входни врати блиндирани;
ПАРКИРАНЕ: Към имота има възможност да се закупят гаражи или паркоместа.
СТРОИТЕЛСТВО: Тухла.

Билдинг Бокс предоставя безплатна консултация и съдействие при финансиране на избрания от Вас имот.
Оферта 13563

Приблизителна локация
Връзка с продавача