-14% под пазара

Тристаен апартамент с балкон в Младост 1, Варна

Варна Младост 1
Публикувано: 13 Яну 2026 · Обновено: 9 Апр 2026
Продажба
Продажба 165 900 € 1 508 €/кв.м
Очакван наем 558 €/мес
Площ
110 м²
Етаж
7 / 18
Строителство
Тухла
Година
2025
AI Анализ на доходността 4.0% / г.
Средна инвестиционна оценка · ~558 €/мес наем при пазарни условия

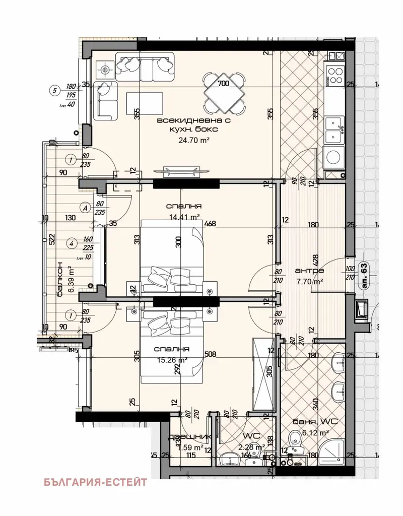
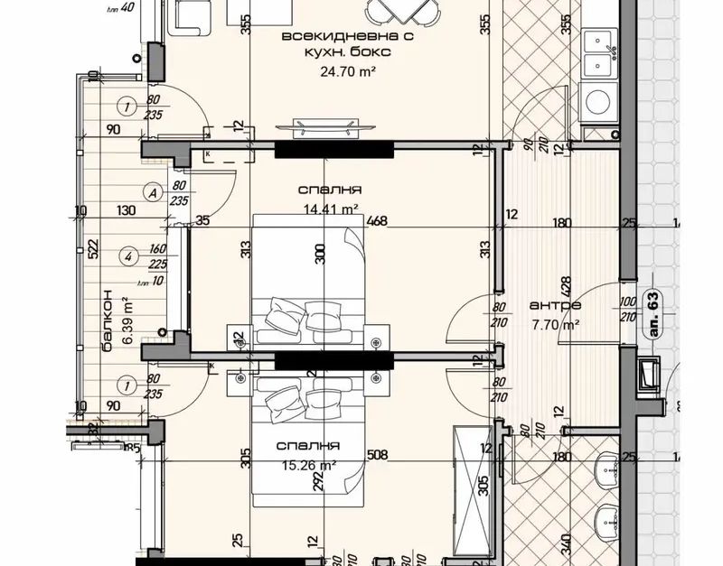
Разпределение

дневна с кухненски бокс - 24.70 кв.м
спалня - 14.41 кв.м
спалня - 15.26 кв.м
дрешник
баня с WC
втора WC

Предимства и недостатъци

Предимства
ново строителство
асансьор
паркомясто
функционално разпределение
Недостатъци
Няма налични данни.

Удобства

under-construction
elevator
parking
internet
access-control

Детайли

Площ110 м²
Стаи3
Бани2
Етаж7 от 18
СтроителствоТухла
Год. на строителство2025 г.

Коментар от imotesa

AI обобщение

Предлага се тристаен апартамент в град Варна, квартал Младост 1, в новостроящ се комплекс от две сгради.

Разпределението включва дневна с кухненски бокс, две спални, баня с WC, втора WC, дрешник и общ балкон към всички стаи.

Сградата е тухлена, строителство 2025 г., с асансьор и подземен паркинг, общите части са луксозно завършени.

Районът е добре развит с множество магазини, училища, детски градини и добра транспортна връзка.

Имотът е подходящ за семейство, търсещо ново жилище с удобства и функционално разпределение.

Описание от продавача

Комплекс от две сгради който се намира в най - предпочитаните квартали за живеене -Младост .Всяка сграда разполага с двустайни и тристайни апартаменти

Районът предлага множество удобни хипермаркети ,търговски центрове ,училища, детски градини , поликлиника и развита транспортна инфраструктура.

общи части-луксозно завършени
коридор ,кухня и стаи -под циментова замазка , стени бяла гипсова мазилка, таван -гипсова шпакловка
санитарен възел-стени и тавани мазилка , под замазка без санитарно обзавеждане
външна врата-висок клас блиндирана
монтирани изводи за климатици
Тристаен апартамент състоящ се от дневна с кухненски бокс -24.70 кв.м, спалня 1 -14.41 кв.м ,спалня 2-15.26, баня с WC ,втора WC ,дрешник.И трите стаи излизат на един балкон.

Гъвкави схеми на плащане.

Приблизителна локация