-22% под пазара

спрямо ≈ 2 210 € /кв.м

182 600 €

1 722 € /кв.м.

Тристаен апартамент във Варна, Гранд Мол

Продажба Варна Гранд Мол Обновена: 10 Апр 2026
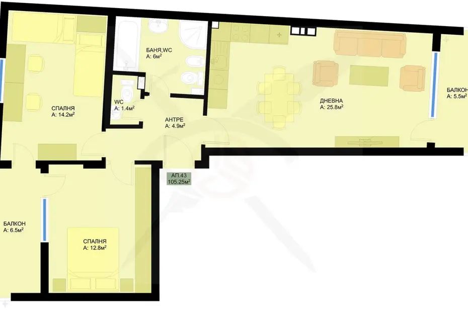
106 м²
Тухла
9 /10 ет.

Доходност от наем: 3.1% /год. Ниска инвестиционна оценка

-22% под пазара (1 722 €/кв.м спрямо 2 210 €/кв.м)
Потенциална годишна доходност: 3.1% (база: ~468 €/мес)
Инвестиционен клас: Ниска

Детайли

Площ
106 м²
Стаи
3
Етаж
9 от 10
Строителство
brick

Особености

under-construction
elevator

Описание от продавача

Компания `ЕКС НВД` представя на Вашето внимание тристаен апартамент в един от най-предпочитаните централни райони за живеене в град Варна- Гранд Мол.

МЕСТОПОЛОЖЕНИЕ: В близост до спирки на градски транспорт, детска градина, училище, магазини от всякакъв тип, търговски център, салони за красота и други.

СТРОИТЕЛСТВО: Апартаментът е ситуиран на 9-ти етаж в сграда ново строителство.

РАЗПРЕДЕЛЕНИЕ: Жилището разполага с площ от 106 кв.м., разпределена във входно антре, хол с кухненски бокс, две спални, баня с тоалетна, отделна тоалетна и два балкона.

СЪСТОЯНИЕ: На шпакловка и замаска.

Заповядайте да Ви го покажем. Използвайки нашите услуги Вие ще превърнете закупуването на новия си дом в едно приятно изживяване, ще получите персонален консултант, съдействие при кандидатстване за кредит от всички банки в България, интериорни дизайнери и екип, който да се погрижи за нужните документи по Вашата сделка. На Ваше разположение сме всеки ден, от понеделник до неделя от 09:00 до 20:00ч. Възползвайте се от безплатна консултация в наш офис, където ще ви спестим време и ще ви запознаем с всички актуални имоти в България, отговарящи на Вашето търсене. Свържете се с нас на 0887779990 или на 0884204511 и цитирайте кода към имота:632-20192

Приблизителна локация
Връзка с продавача