-17% под пазара

Луксозен двустаен апартамент с морска панорама в Бриз, Варна

Варна Бриз
Публикувано: 7 Окт 2025 · Обновено: 9 Апр 2026
Продажба
Продажба 196 000 € 1 921 €/кв.м
Очакван наем 973 €/мес
Площ
102 м²
Етаж
5 / 5
Строителство
Тухла
AI Анализ на доходността 6.0% / г.
Средна инвестиционна оценка · ~973 €/мес наем при пазарни условия

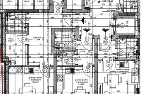
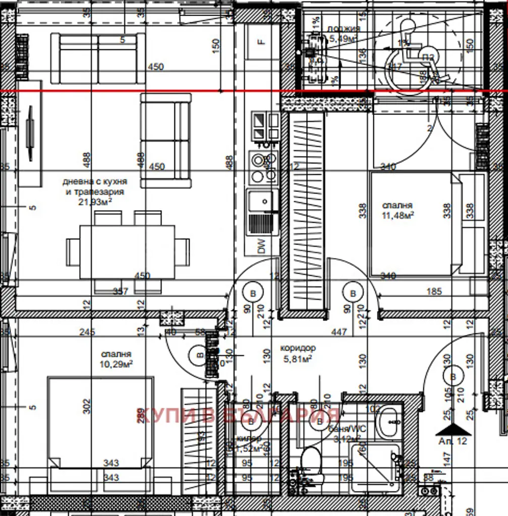
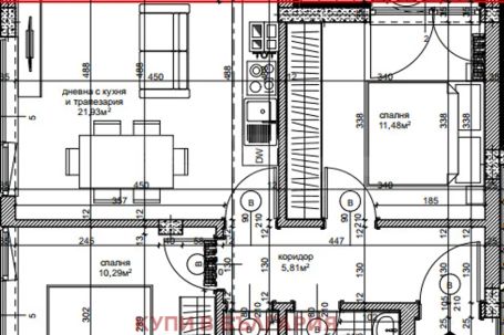
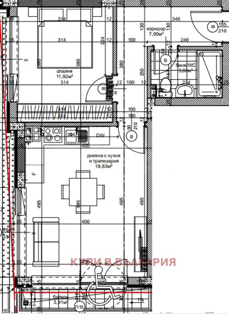
Разпределение

дневна с кухненски бокс и трапезария
спалня
санитарно помещение
тераса
избено помещение 3 кв.м

Предимства и недостатъци

Предимства
морска панорама
подово отопление
луксозни общи части
спокойна локация
Недостатъци
без включено паркомясто

Удобства

elevator
parking

Изложение

S
Изложение на имота

Детайли

Площ102 м²
Стаи3
Етаж5 от 5
СтроителствоТухла

Коментар от imotesa

AI обобщение

Предлаганият двустаен апартамент се намира в новопостроена бутикова сграда в квартал Бриз, Варна. С площ от 64 кв.м, имотът е функционално разпределен и предлага просторна дневна с кухненски бокс, обзаведена с висок клас мебели и уреди. Спалнята е уютна, а комбинираното санитарно помещение е практично. Отоплението е подово, а климатичната инсталация осигурява комфортна температура и енергийна ефективност. Широката тераса към дневната предоставя морска панорама. Общите части са луксозно изпълнени с автоматизирана поливна система и видеонаблюдение. Локацията съчетава тишина и удобен достъп до центъра и морската градина, като е близо до основни пътни артерии, магазини и градски транспорт. Имотът включва избено помещение и възможност за закупуване на паркомясто.

Описание от продавача

Компания за недвижими имоти 'Купи в България' има удоволствието да Ви представи малка бутикова новострояща се жилищна сграда, намираща се в района на ж.к. Бриз.

Етапи на строителство: Сградата е с Акт 14, Акт 15 - октомври 2024 г, Акт 16 - към края на 2024 г.

Жилищната сграда е проектирана на 5 етажа с 14 апартамента едностайни, двустайни и тристайни с площ от 46м2 до 87м2 , разположени изцяло на югоизток, юг, югозапад, като на първи полувкопан етаж, всеки апартамент разполага със собствен двор. Разположението на сградата гарантира прекрасна морска панорама на апартаментите от кота 0. Изпълнението на сградата е възложено на доказал се в бранша строител. Сградата ще бъде построена с материали от висок клас, съобразени с последните технологични тенденции. Предвидено е изграждане на барбекю зона и зона за отдих. Също така ще има 2 зарядни станции за електромобили.

Паркиране: Предвидени са 14 броя паркоместа, които можете да закупите на цена от 15 000 до 25 000 EUR/паркомясто, в зависимост от местоположението.

Апартаментите ще се издават по БДС, като всеки клиент има възможност да избере и завършване до ключ на преференциални цени.

Все още можете да станете собственик на жилище в тази висококачествена, модерна сграда, ситуирана в район с отлична инфраструктура и всички необходими комуникации.

Район: Районът е престижен и предпочитан за живеене. Тишина и спокойствие успешно се съчетават с удобни транспортни връзки до плажа и центъра на града. Сградата се намира непосредствено до главен булевард и автобусна спирка.

При необходимост можем да съдействаме за напълно безплатна кредитна консултация, с най-добри условия от всички банки!

Ако проявявате интерес, за повече информация и организиране на оглед звъннете на посочените телефонни номера! 29921

Приблизителна локация