-12% под пазара

спрямо ≈ 1 654 € /кв.м

117 145 €

1 464 € /кв.м.

Двустаен апартамент с тераса в нова сграда във Виница, Варна

Продажба Варна Виница Обновена: 15 Апр 2026
80 м²
Тухла
2 стаи
2 /4 ет.
2027 г.

Доходност от наем: 4.9% /год. Средна инвестиционна оценка

Обяви за този имот (1)

117 145 €
1
1 Яну 0001  ·  15 Апр 2026
-12% под пазара (1 464 €/кв.м спрямо 1 654 €/кв.м)
Потенциална годишна доходност: 4.9% (база: ~480 €/мес)
Инвестиционен клас: Средна

Коментар от imotesa

AI обобщение

Апартаментът се намира в квартал Виница, град Варна, в нова тухлена сграда с очакван срок на завършване през 2027 г.

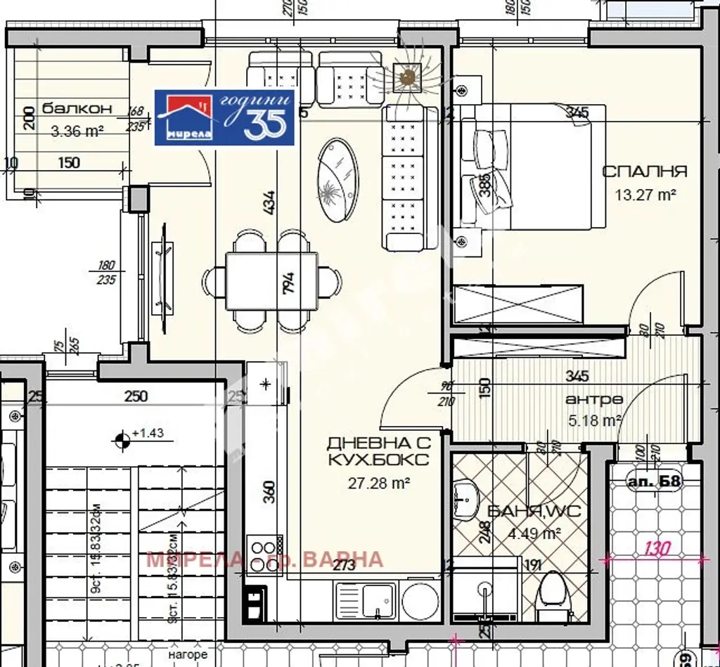
Разпределението включва дневен тракт с кухненски бокс, една спалня, баня с тоалетна, коридор и тераса. Апартаментът е непроходен, което подобрява функционалността на помещенията.

Сградата е с тухлено строителство и се предава на шпакловка и замазка, което позволява индивидуално завършване. Отоплението е предвидено чрез климатик, а дограмата е PVC.

Локацията предлага спокойна жилищна среда с чист въздух и бърз достъп до центъра на Варна. Възможност за закупуване на гараж или паркомясто допълва удобствата.

Имотът е подходящ за семейство, търсещо ново жилище с възможност за персонализация и добра връзка с градската инфраструктура.

Разпределение

  • дневен тракт с кухненски бокс
  • спалня
  • баня с тоалетна
  • коридор
  • тераса

Предимства

нова сграда

непроходни стаи

тераса

възможност за гараж

Недостатъци

северозападно изложение

предаване на шпакловка и замазка

Изложение

N S E W
NW
Изложение на имота

Детайли

Площ
80 м²
Стаи
2
Бани
1
Етаж
2 от 4
Строителство
brick
Год. на строителство
2027 г.

Описание от продавача

461398 Продавам двустаен апартмент в нова сграда в кв. Виница

Предимства:

* напреднал етап на строителство;
* доказана строително-инвестиционна компания с множество реализирани сгради в гр. Варна;
* разсрочена схема на плащане до издаване на Акт 16;
* възможност за покупка на гараж или паркомясто.

Апартаментът се състои от дневен тракт с кухненски бокс, спалня, баня с тоалетна, коридор и тераса.

Апартаментът се издава по БДС шпакловка и замазка, което ви дава свободата да го завършите и обзаведете изцяло според вашия вкус, стил и функционални изисквания.

Към апартамента има прилежащо мазе.

Допълнително може да закупите паркомясто или гараж.

Локацията осигурява спокойна жилищна среда, чист въздух и бърз достъп до централната част на града.

За повече информация, организиране на оглед или подробна презентация на проекта, свържете се с нас на посочените контакти.

ЕТАП НА СТРОИТЕЛСТВО: кота 1-ви етаж; ОТОПЛЕНИЕ: климатик; Има 1 балкон/тераса; Предава се на шпакловка и замазка; Непреходен; ВИД СТРОИТЕЛСТВО: тухла; ЗАСТРОЕНА ПЛОЩ 64.69 кв.м; ПУСКОВ СРОК: 11.2027; ИЗЛОЖЕНИЕ: северозапад; СПАЛНИ: 1; БАНИ: 1; ДОГРАМА: PVC

_________________________________________________________________________________________________

Към потенциалните продавачи!
Ако продавате подобен имот или обмисляте дали да го направите в близко бъдеще, моля свържете се с мен. Имам клиенти, които търсят в района. Мога да дам ориентировъчна цена по телефон или имейл и по-точна цена при оглед на място.

ОГЛЕДЪТ И КОНСУЛТАЦИЯТА СА БЕЗПЛАТНИ.

МОЖЕТЕ СЪЩО ТАКА, ДА ПОДАДЕТЕ И БЕЗПЛАТНА ЧАСТНА ОБЯВА ЗА ПРОДАЖБА НА ВАШИЯ ИМОТ В MIRELA.BG, БЕЗ БРОКЕР И КОМИСИОНА.

Точен адрес

Връзка с продавача
имоти за продажба без посредник (11265) имоти под наем без посредник (11265) имоти за продажба (11265) имоти под наем (11265) апартаменти под наем без посредник (6684) апартаменти за продажба (6684) апартаменти за продажба без посредник (6684) апартаменти под наем (6684) имоти за продажба в гр. София, Мусагеница без посредник (3225) имоти за продажба в гр. София, ПЗ Илиянци без посредник (3225) имоти за продажба в гр. София, Свобода без посредник (3225) имоти за продажба в гр. София, Горна баня без посредник (3225) имоти за продажба в гр. София, Изгрев без посредник (3225) имоти за продажба в гр. София, Славовци без посредник (3225) имоти за продажба в гр. София, Света Троица без посредник (3225) имоти за продажба в гр. София, Левски Г без посредник (3225) имоти за продажба в гр. София, Горубляне без посредник (3225) имоти за продажба в гр. София, Овча купел без посредник (3225) имоти за продажба в гр. София, м-т Орехите без посредник (3225) имоти за продажба в гр. София, Люлин 7 без посредник (3225) имоти за продажба в гр. София, Илиянци без посредник (3225) имоти за продажба в гр. София, Младост 1А без посредник (3225) имоти за продажба в гр. София, в.з. Беловодски път без посредник (3225) имоти за продажба в гр. София, Полигона без посредник (3225) имоти за продажба в гр. София, Разсадника без посредник (3225) имоти за продажба в гр. София, Подуяне без посредник (3225) имоти за продажба в гр. София, Красна поляна 3 без посредник (3225) имоти за продажба в гр. София, Младост 2 без посредник (3225) имоти за продажба в гр. София, Надежда 4 без посредник (3225) имоти за продажба в гр. София, в.з. Горна баня без посредник (3225) имоти за продажба в гр. София, Надежда 2 без посредник (3225) имоти за продажба в гр. София, в.з. Врана - Герман без посредник (3225) имоти за продажба в гр. София, НПЗ Хаджи Димитър без посредник (3225) имоти за продажба в гр. София, Павлово без посредник (3225) имоти за продажба в гр. София, в.з. Врана - Лозен без посредник (3225) имоти за продажба в гр. София, Суходол без посредник (3225) имоти за продажба в гр. София, Кубратово без посредник (3225) имоти за продажба в гр. София, Борово без посредник (3225) имоти за продажба в гр. София, Драгалевци без посредник (3225) имоти за продажба в гр. София, Белите брези без посредник (3225) имоти за продажба в гр. София, в.з. Драгалевци лифта без посредник (3225) имоти за продажба в гр. София, Илинден без посредник (3225) имоти за продажба в гр. София, Хиподрума без посредник (3225) имоти за продажба в гр. София, Лагера без посредник (3225) имоти за продажба в гр. София, Модерно предградие без посредник (3225) имоти за продажба в гр. София, Гоце Делчев без посредник (3225) имоти за продажба в гр. София, Красна поляна 1 без посредник (3225) имоти за продажба в гр. София, Център без посредник (3225) имоти за продажба в гр. София, Малинова долина без посредник (3225) имоти за продажба в гр. София, Меден рудник - зона Г без посредник (3225)