-14% под пазара

спрямо ≈ 1 654 € /кв.м

101 500 €

1 429 € /кв.м.

Двустаен апартамент във Варна, Виница

Продажба Варна Виница Обновена: 14 Апр 2026
71 м²
Тухла
1 /4 ет.

Доходност от наем: 5.6% /год. Средна инвестиционна оценка

Обяви за този имот (1)

101 500 €
1
1 Яну 0001  ·  14 Апр 2026
-14% под пазара (1 429 €/кв.м спрямо 1 654 €/кв.м)
Потенциална годишна доходност: 5.6% (база: ~476 €/мес)
Инвестиционен клас: Средна

Детайли

Площ
71 м²
Стаи
2
Етаж
1 от 4
Строителство
brick

Особености

elevator

Описание от продавача

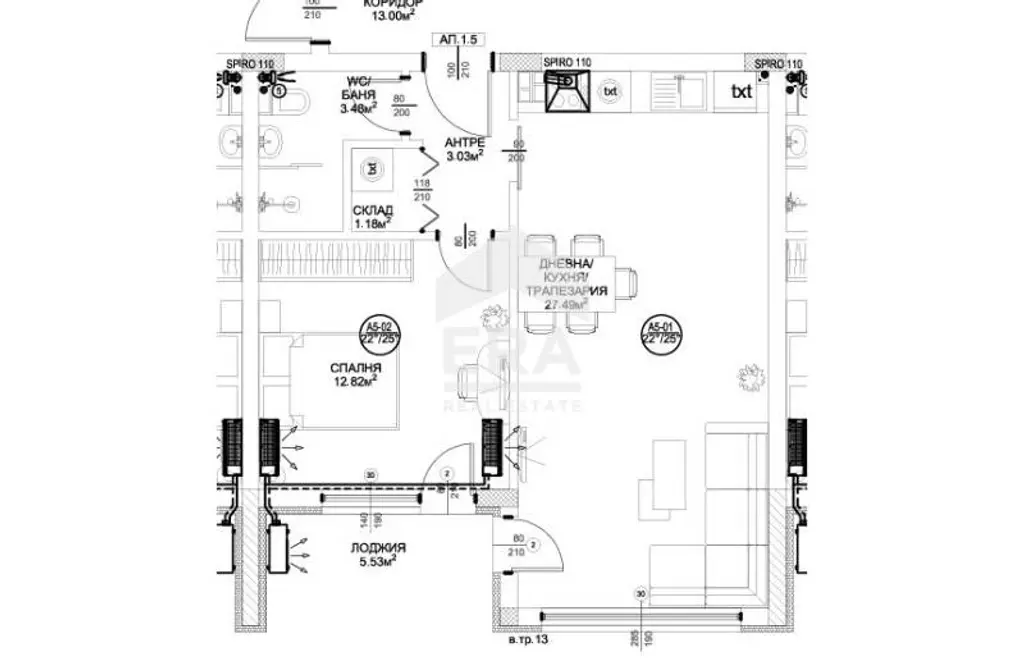
САМО В ЕРА ВИВА! Тристаен апартамент с просторна веранда в нов и модерен жилищен комплекс, без такса поддръжка в кв. Виница, гр. Варна. Идеално жилище за тези, които търсят комфорт и усещане за дом от висок клас. Разпределението е функционално и включва: входно антре, дневна с кухня /27.49 кв.м,/, спалня /12.82 кв.м./, баня с тоалетна /3.48 кв.м./ и удобен килер за съхранение. Верандата разширява жизненото пространство и създава перфектно място за отдих на открито. Имотът се издава по БДС, с възможност за индивидуално довършване според Вашия стил.

Модерен комплекс от две луксозни сгради, изпълнени с естествен камък травертин, придаващ модерна и престижна визия. Обмисленият дизайн и висококачествените материали загатват за дълготрайност и класа. На разположение са подземен паркинг, гаражи, озеленени общи площи и детска площадка всичко необходимо за удобно и спокойно ежедневие на семействата. Предлага се възможност за разсрочено плащане, както и опция за закупуване на паркомясто или гараж.

Сградите са разположени в един от най-предпочитаните райони на Варна кв. Виница, известен с тишината, чистия въздух и зелените си пространства. Тук морската панорама се съчетава хармонично с борова гора, създавайки пространство за пълноценен живот, далеч от шума, но близо до всички градски удобства. Локацията предлага идеалния баланс между съвременен комфорт и природно спокойствие място, в което ежедневието се превръща в удоволствие.

Оферта 1009754

Приблизителна локация
Връзка с продавача
имоти за продажба без посредник (11230) имоти под наем без посредник (11230) имоти за продажба (11230) имоти под наем (11230) апартаменти под наем без посредник (6669) апартаменти за продажба (6669) апартаменти за продажба без посредник (6669) апартаменти под наем (6669) имоти за продажба в гр. София, Мусагеница без посредник (3217) имоти за продажба в гр. София, ПЗ Илиянци без посредник (3217) имоти за продажба в гр. София, Свобода без посредник (3217) имоти за продажба в гр. София, Горна баня без посредник (3217) имоти за продажба в гр. София, Изгрев без посредник (3217) имоти за продажба в гр. София, Славовци без посредник (3217) имоти за продажба в гр. София, Света Троица без посредник (3217) имоти за продажба в гр. София, Левски Г без посредник (3217) имоти за продажба в гр. София, Горубляне без посредник (3217) имоти за продажба в гр. София, Овча купел без посредник (3217) имоти за продажба в гр. София, м-т Орехите без посредник (3217) имоти за продажба в гр. София, Люлин 7 без посредник (3217) имоти за продажба в гр. София, Илиянци без посредник (3217) имоти за продажба в гр. София, Младост 1А без посредник (3217) имоти за продажба в гр. София, в.з. Беловодски път без посредник (3217) имоти за продажба в гр. София, Полигона без посредник (3217) имоти за продажба в гр. София, Разсадника без посредник (3217) имоти за продажба в гр. София, Подуяне без посредник (3217) имоти за продажба в гр. София, Красна поляна 3 без посредник (3217) имоти за продажба в гр. София, Младост 2 без посредник (3217) имоти за продажба в гр. София, Надежда 4 без посредник (3217) имоти за продажба в гр. София, в.з. Горна баня без посредник (3217) имоти за продажба в гр. София, Надежда 2 без посредник (3217) имоти за продажба в гр. София, в.з. Врана - Герман без посредник (3217) имоти за продажба в гр. София, НПЗ Хаджи Димитър без посредник (3217) имоти за продажба в гр. София, Павлово без посредник (3217) имоти за продажба в гр. София, в.з. Врана - Лозен без посредник (3217) имоти за продажба в гр. София, Суходол без посредник (3217) имоти за продажба в гр. София, Кубратово без посредник (3217) имоти за продажба в гр. София, Борово без посредник (3217) имоти за продажба в гр. София, Драгалевци без посредник (3217) имоти за продажба в гр. София, Белите брези без посредник (3217) имоти за продажба в гр. София, в.з. Драгалевци лифта без посредник (3217) имоти за продажба в гр. София, Илинден без посредник (3217) имоти за продажба в гр. София, Хиподрума без посредник (3217) имоти за продажба в гр. София, Лагера без посредник (3217) имоти за продажба в гр. София, Модерно предградие без посредник (3217) имоти за продажба в гр. София, Гоце Делчев без посредник (3217) имоти за продажба в гр. София, Красна поляна 1 без посредник (3217) имоти за продажба в гр. София, Център без посредник (3217) имоти за продажба в гр. София, Малинова долина без посредник (3217) имоти за продажба в гр. София, Меден рудник - зона Г без посредник (3217)