-9% под пазара

спрямо ≈ 1 627 € /кв.м

108 000 €

1 479 € /кв.м.

Двустаен апартамент във Варна, Погреби

Продажба Варна Погреби Обновена: 10 Апр 2026
73 м²
Тухла
2 /8 ет.
2028 г.

Доходност от наем: 4.8% /год. Средна инвестиционна оценка

-9% под пазара (1 479 €/кв.м спрямо 1 627 €/кв.м)
Потенциална годишна доходност: 4.8% (база: ~432 €/мес)
Инвестиционен клас: Средна

Детайли

Площ
73 м²
Стаи
2
Етаж
2 от 8
Строителство
brick
Год. на строителство
2028 г.

Описание от продавача

Уважаеми клиенти,
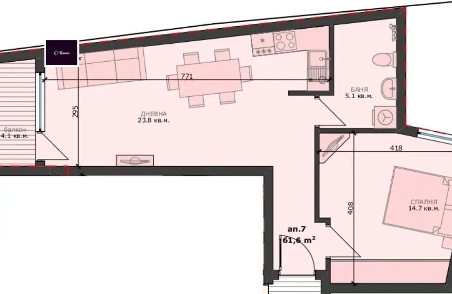
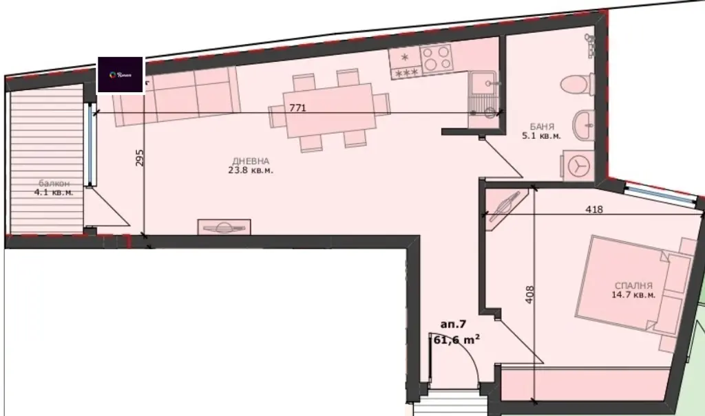
агенция Ронева представя на Вашето внимание двустаен апартамент с чиста застроена площ от 61.6кв.м. намиращ се на втори етаж в новострояща се сграда в кв. Погреби.

Намира се на комуникативна локация с бърз достъп до ул. Девня, на пешеходно разстояние от търговски обекти, училища и основни транспортни връзки локация, която осигурява удобство и комфорт в ежедневието.
Апартаментът ще се състои от просторна дневна с кухнески бокс (23.8кв.м.), спалня (14.7кв.м.), баня с тоалетна (5.1кв.м.) и балкон (4.1кв.м).

Възможност за закупуване на паркоместа!
Гъвкави схеми за разплащане.

За повече информация и оглед се свържете с нас на 0884788229
Реф. номер: 90034

Приблизителна локация
Връзка с продавача