6% на пазара

спрямо ≈ 1 650 € /кв.м

116 000 €

1 546 € /кв.м.

Двустаен апартамент във Варна, Младост 1

Продажба Варна Младост 1 Обновена: 15 Апр 2026
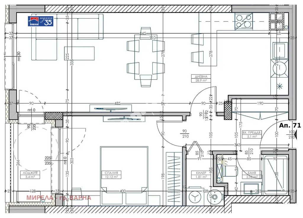
75 м²
Тухла
2 стаи
9 /11 ет.
2027 г.

Доходност от наем: 5.3% /год. Средна инвестиционна оценка

Обяви за този имот (1)

116 000 €
1
1 Яну 0001  ·  15 Апр 2026
6% на пазара (1 546 €/кв.м спрямо 1 650 €/кв.м)
Потенциална годишна доходност: 5.3% (база: ~512 €/мес)
Инвестиционен клас: Средна

Детайли

Площ
75 м²
Стаи
2
Етаж
9 от 11
Строителство
brick
Год. на строителство
2027 г.

Особености

gated-community

Описание от продавача

460529 Агенция Мирела продава двустаен апартамент в новострояща се сграда в жк. Младост, гр. Варна.
Апартамент 71 се намира на девети етаж и се състои от: дневна с кухненски бокс, спалня, баня с тоалетна, килер, входно предверие и лоджия.
ПРЕДИМСТВА:
* разсрочена схема на плащане;
* съвременна архитектура;
* обширно вътрешно пространство;
* нисък процент общо части;
* слънчев и топъл през целият ден;
* морска панорама;
* възможност за покупка на паркомясто на достъпна цена;
* утвърден строител с множество проекти в гр. Варна;
ОЧАКВАН СРОК ЗА ВЪВЕЖДАНЕ НА СГРАДАТА В ЕКСПЛОАТАЦИЯ 07.2027 Г.
СХЕМА НА ПЛАЩАНЕ: разсрочено плащане до АКТ 16.
В момента сградата е пред АКТ 14.
Сградата се намира на стратегическо местоположение - в близост до бул. Ян Хунияди и магазин 'Мадара'. Тази локация предлага удобен достъп до основни градски артерии, търговски обекти и обществени услуги. Благодарение на отличното си местоположение, проектът е идеален за хора с активен начин на живот, които търсят баланс между динамиката на града и комфорта на спокойна жилищна среда.
Проектирани са 11 етажа, от които 10 са жилищни и 1 подземен етаж, предназначен за паркоместа и складови площи.
Предлагаме се разнообразие от апартаменти, съобразени с нуждите на различни типове домакинства. Проектирани с внимание към детайлите, жилищата в сградата осигуряват комфорт и функционалност, с оптимални разпределения и гледки към различни посоки.
Четиристайните апартаменти са просторни и предлагат изложения в различни посоки, което гарантира слънчева светлина през целия ден и прекрасни панорамни гледки. Те са идеални за големи семейства или за тези, които търсят повече пространство и комфорт в дома си.
Всеки апартамент в сградата е проектиран с акцент върху модерния начин на живот, с функционални разпределения, осигуряващи удобство и уют. Освен това, сградата предлага висок стандарт на строителство и съвременни удобства, които отговарят на нуждите на взискателните купувачи.
Разгледайте всички налични апартаменти и се свържете с мен за персонална консултация, презентация или оглед на място, за да закупите Вашия мечтан дом.
ЕТАП НА СТРОИТЕЛСТВО: кота 9-ти етаж; ОТОПЛЕНИЕ: климатик; Има 1 балкон/тераса; ...

Точен адрес

Връзка с продавача
имоти за продажба без посредник (11265) имоти под наем без посредник (11265) имоти за продажба (11265) имоти под наем (11265) апартаменти под наем без посредник (6684) апартаменти за продажба (6684) апартаменти за продажба без посредник (6684) апартаменти под наем (6684) имоти за продажба в гр. София, Мусагеница без посредник (3225) имоти за продажба в гр. София, ПЗ Илиянци без посредник (3225) имоти за продажба в гр. София, Свобода без посредник (3225) имоти за продажба в гр. София, Горна баня без посредник (3225) имоти за продажба в гр. София, Изгрев без посредник (3225) имоти за продажба в гр. София, Славовци без посредник (3225) имоти за продажба в гр. София, Света Троица без посредник (3225) имоти за продажба в гр. София, Левски Г без посредник (3225) имоти за продажба в гр. София, Горубляне без посредник (3225) имоти за продажба в гр. София, Овча купел без посредник (3225) имоти за продажба в гр. София, м-т Орехите без посредник (3225) имоти за продажба в гр. София, Люлин 7 без посредник (3225) имоти за продажба в гр. София, Илиянци без посредник (3225) имоти за продажба в гр. София, Младост 1А без посредник (3225) имоти за продажба в гр. София, в.з. Беловодски път без посредник (3225) имоти за продажба в гр. София, Полигона без посредник (3225) имоти за продажба в гр. София, Разсадника без посредник (3225) имоти за продажба в гр. София, Подуяне без посредник (3225) имоти за продажба в гр. София, Красна поляна 3 без посредник (3225) имоти за продажба в гр. София, Младост 2 без посредник (3225) имоти за продажба в гр. София, Надежда 4 без посредник (3225) имоти за продажба в гр. София, в.з. Горна баня без посредник (3225) имоти за продажба в гр. София, Надежда 2 без посредник (3225) имоти за продажба в гр. София, в.з. Врана - Герман без посредник (3225) имоти за продажба в гр. София, НПЗ Хаджи Димитър без посредник (3225) имоти за продажба в гр. София, Павлово без посредник (3225) имоти за продажба в гр. София, в.з. Врана - Лозен без посредник (3225) имоти за продажба в гр. София, Суходол без посредник (3225) имоти за продажба в гр. София, Кубратово без посредник (3225) имоти за продажба в гр. София, Борово без посредник (3225) имоти за продажба в гр. София, Драгалевци без посредник (3225) имоти за продажба в гр. София, Белите брези без посредник (3225) имоти за продажба в гр. София, в.з. Драгалевци лифта без посредник (3225) имоти за продажба в гр. София, Илинден без посредник (3225) имоти за продажба в гр. София, Хиподрума без посредник (3225) имоти за продажба в гр. София, Лагера без посредник (3225) имоти за продажба в гр. София, Модерно предградие без посредник (3225) имоти за продажба в гр. София, Гоце Делчев без посредник (3225) имоти за продажба в гр. София, Красна поляна 1 без посредник (3225) имоти за продажба в гр. София, Център без посредник (3225) имоти за продажба в гр. София, Малинова долина без посредник (3225) имоти за продажба в гр. София, Меден рудник - зона Г без посредник (3225)