7% на пазара

спрямо ≈ 1 654 € /кв.м

116 900 €

1 538 € /кв.м.

Двустаен апартамент във Варна, Младост 1

Продажба Варна Младост 1 Обновена: 14 Апр 2026
76 м²
Тухла
2 /18 ет.
2027 г.

Доходност от наем: 5.2% /год. Средна инвестиционна оценка

7% на пазара (1 538 €/кв.м спрямо 1 654 €/кв.м)
Потенциална годишна доходност: 5.2% (база: ~504 €/мес)
Инвестиционен клас: Средна

Детайли

Площ
76 м²
Стаи
2
Етаж
2 от 18
Строителство
brick
Год. на строителство
2027 г.

Описание от продавача

БИЛДИНГ БОКС предлага за продажба ДВУСТАЕН апартамент в новострояща се сграда в кв. Младост.

ЛОКАЦИЯ: Комплексът се намира в предпочитания за живеене от много варненци квартал 'Младост'. Районът предлага множество удобства, като хипермаркет, търговски центрове, училища, детски градини, поликлиника и развита транспортна инфраструктура. На пешеходно разстояние се намират 'Делта Планет мол', ПГИ 'Иван Богоров', ОУ 'Антон Страшимиров', ДГ 30 'Синчец, МЦ 'Младост', стадион 'Младост' и ТЦ 'Явор'.
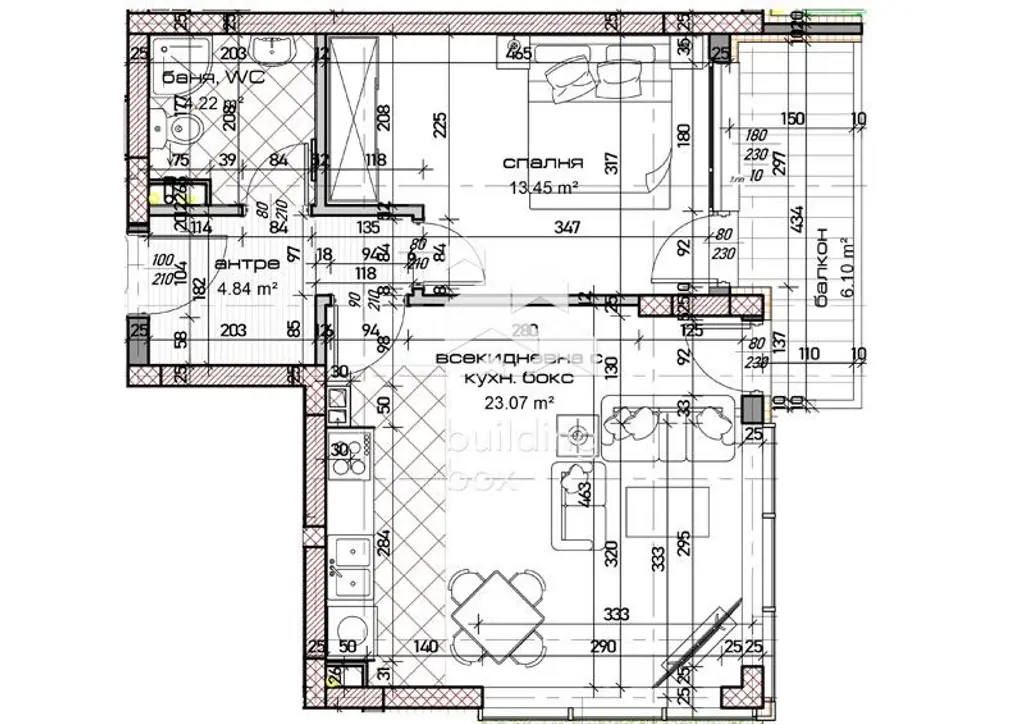
РАЗПРЕДЕЛЕНИЕ: Всекидневна с кухненски бокс - 23,07 кв.м, спалня - 13,45 кв.м, баня с тоалетна - 4,22 кв.м, входно антре - 4,84 кв.м, балкон - 6,10 кв.м. и избено помещение - 2,64 кв.м. Чистата застроена площ на апартамента е 59,67 кв.м.
ЕТАЖ: Етаж 2 от общо 18
ИЗЛОЖЕНИЕ: Изток.
ОТОПЛЕНИЕ: Електричество.
ЗАВЪРШЕНОСТ: Имотът се издава:
Коридори, кухня и стаи: под циментова замазка, стени бяла гипсова мазилка, таван гипсова шпакловка;
Санитарен възел: стени и таван мазилка, под замазка, без санитарно обзавеждане;
Ел.инсталация: вътрешна и външна 100% завършени (плюс електромер);
ВиК: външна завършена с монтиран главен водомер, вътрешна на тапа;
Външна врата: висок клас входни врати блиндирани
ПАРКИРАНЕ: Към имота има възможност да се закупят подземни гаражи или надземни паркоместа.
СТРОИТЕЛСТВО: Тухла.

Билдинг Бокс предоставя безплатна консултация и съдействие при финансиране на избрания от Вас имот.
Оферта 13349

Приблизителна локация
Връзка с продавача