-27% под пазара

спрямо ≈ 2 475 € /кв.м

145 000 €

1 812 € /кв.м.

Двустаен апартамент с балкон в Лятно кино Тракия, Варна

Продажба Варна Лятно кино Тракия Обновена: 14 Апр 2026
80 м²
Панел
2 бани
7 /9 ет.
1980 г.

Доходност от наем: 3.9% /год. Ниска инвестиционна оценка

Обяви за този имот (1)

145 000 €
1
1 Яну 0001  ·  14 Апр 2026
-27% под пазара (1 812 €/кв.м спрямо 2 475 €/кв.м)
Потенциална годишна доходност: 3.9% (база: ~471 €/мес)
Инвестиционен клас: Ниска

Коментар от imotesa

AI обобщение

Предлаганият имот е двустаен апартамент в град Варна, район Лятно кино Тракия. Разполага с дневна и кухня с общ балкон, спалня с южно изложение и три отделни сервизни помещения. Сградата е панелна, построена през 1980 г., с асансьор и добре поддържани общи части. Локацията е удобна, с близост до училища, детски градини, медицински заведения и градски транспорт. Апартаментът е подходящ за основен ремонт и предлага функционално разпределение в централна градска среда.

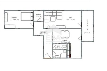
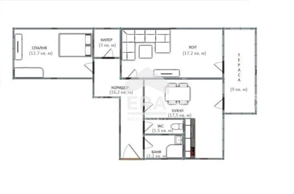
Разпределение

  • дневна (17.2 кв. м)
  • кухня (17.5 кв. м)
  • спалня (12.7 кв. м)

Предимства

функционално разпределение

южно изложение

асансьор

близо до училища

Недостатъци

панелно строителство

нужда от основен ремонт

Изложение

N S E W
S
Изложение на имота

Детайли

Площ
80 м²
Стаи
2
Бани
2
Етаж
7 от 9
Строителство
panel
Год. на строителство
1980 г.

Особености

elevator

Описание от продавача

Предлагаме Ви за продажба двустаен апартамент в панелна сграда, в централната част на града, в района на ЛК Тракия, в близост до площад Отец Паисий, гр. Варна. Апартаментът е разположен на 7-мия от общо 9 етажа в сградата. Застроената му площ е 73.08 кв. м. Към имота има прилежащо мазе с площ 5.24 кв. м. Разпределението е следното: дневна (17.2 кв. м) и кухня (17.5 кв. м), които имат излаз на общ балкон с площ от 9 кв. м, спалня с южно изложение (12.7 кв. м), три отделни сервизни помещения - баня (2.2 кв. м), тоалетна (1.5 кв. м) и килер (3 кв. м), Г-образен коридор с гардеробна ниша (16.2 кв. м).
Имотът е за основен ремонт.
Сградата е от 80-те г., с добре поддържани общи части и асансьор.

Районът е предпочитан за живеене. На пешеходно разстояние са ОУ Васил Априлов, ОУ Петко Р. Славейков и 3 ПМГ, ОУ Йордан Йовков, детски градини, Храм Св. Прокопий Варненски, медицински център, МакДрайв, пощенски клон, Районен съд, Медицински колеж, Стоматологичен факултет на Медицински университет, хипермаркет Лидл, Окръжна болница, множество удобни спирки на градския транспорт по бул. Сливница и бул. Владислав Варненчик - автобусни линии: 1, 148, 18/40, 22, 43.

Оферта 7100352

Приблизителна локация
Връзка с продавача
имоти за продажба без посредник (11230) имоти под наем без посредник (11230) имоти за продажба (11230) имоти под наем (11230) апартаменти под наем без посредник (6669) апартаменти за продажба (6669) апартаменти за продажба без посредник (6669) апартаменти под наем (6669) имоти за продажба в гр. София, Мусагеница без посредник (3217) имоти за продажба в гр. София, ПЗ Илиянци без посредник (3217) имоти за продажба в гр. София, Свобода без посредник (3217) имоти за продажба в гр. София, Горна баня без посредник (3217) имоти за продажба в гр. София, Изгрев без посредник (3217) имоти за продажба в гр. София, Славовци без посредник (3217) имоти за продажба в гр. София, Света Троица без посредник (3217) имоти за продажба в гр. София, Левски Г без посредник (3217) имоти за продажба в гр. София, Горубляне без посредник (3217) имоти за продажба в гр. София, Овча купел без посредник (3217) имоти за продажба в гр. София, м-т Орехите без посредник (3217) имоти за продажба в гр. София, Люлин 7 без посредник (3217) имоти за продажба в гр. София, Илиянци без посредник (3217) имоти за продажба в гр. София, Младост 1А без посредник (3217) имоти за продажба в гр. София, в.з. Беловодски път без посредник (3217) имоти за продажба в гр. София, Полигона без посредник (3217) имоти за продажба в гр. София, Разсадника без посредник (3217) имоти за продажба в гр. София, Подуяне без посредник (3217) имоти за продажба в гр. София, Красна поляна 3 без посредник (3217) имоти за продажба в гр. София, Младост 2 без посредник (3217) имоти за продажба в гр. София, Надежда 4 без посредник (3217) имоти за продажба в гр. София, в.з. Горна баня без посредник (3217) имоти за продажба в гр. София, Надежда 2 без посредник (3217) имоти за продажба в гр. София, в.з. Врана - Герман без посредник (3217) имоти за продажба в гр. София, НПЗ Хаджи Димитър без посредник (3217) имоти за продажба в гр. София, Павлово без посредник (3217) имоти за продажба в гр. София, в.з. Врана - Лозен без посредник (3217) имоти за продажба в гр. София, Суходол без посредник (3217) имоти за продажба в гр. София, Кубратово без посредник (3217) имоти за продажба в гр. София, Борово без посредник (3217) имоти за продажба в гр. София, Драгалевци без посредник (3217) имоти за продажба в гр. София, Белите брези без посредник (3217) имоти за продажба в гр. София, в.з. Драгалевци лифта без посредник (3217) имоти за продажба в гр. София, Илинден без посредник (3217) имоти за продажба в гр. София, Хиподрума без посредник (3217) имоти за продажба в гр. София, Лагера без посредник (3217) имоти за продажба в гр. София, Модерно предградие без посредник (3217) имоти за продажба в гр. София, Гоце Делчев без посредник (3217) имоти за продажба в гр. София, Красна поляна 1 без посредник (3217) имоти за продажба в гр. София, Център без посредник (3217) имоти за продажба в гр. София, Малинова долина без посредник (3217) имоти за продажба в гр. София, Меден рудник - зона Г без посредник (3217)