-21% под пазара

спрямо ≈ 2 022 € /кв.м

114 500 €

1 590 € /кв.м.

Двустаен апартамент с функционално разпределение в Левски, Варна

Продажба Варна Левски 1 Обновена: 9 Апр 2026
72 м²
Тухла
1 бани
8 /10 ет.

Доходност от наем: 5.4% /год. Средна инвестиционна оценка

-21% под пазара (1 590 €/кв.м спрямо 2 022 €/кв.м)
Потенциална годишна доходност: 5.4% (база: ~512 €/мес)
Инвестиционен клас: Средна

Коментар от imotesa

AI обобщение

Предлаганият двустаен апартамент е част от новострояща се жилищна сграда в квартал Левски, Варна. Жилището е с площ 73,31 кв.м и се намира на 4-ти етаж от 10. Разпределението включва дневен тракт, спалня, баня с тоалетна, перално помещение, коридор с място за вграден гардероб и тераса. Сградата е с предвиден Акт 16 през ноември 2028 г. и ще бъде изпълнена с висококачествени материали, като вентилируема фасада, два асансьора и качествена дограма. Апартаментът се продава в степен на завършеност по БДС, което позволява индивидуално довършване и обзавеждане. Локацията е удобна с близост до градски транспорт, училища, детски градини и магазини, подходяща за семейства и активен начин на живот. Има възможност за закупуване на паркоместа.

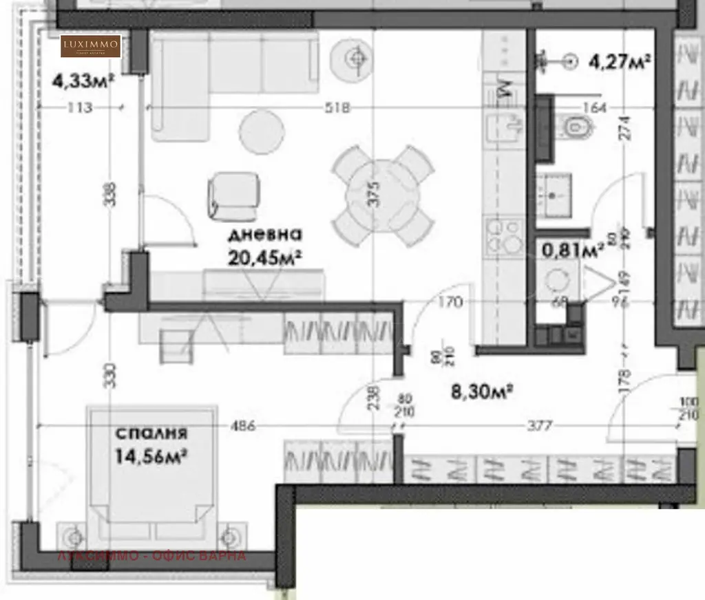
Разпределение

  • дневен тракт 20,45 кв.м
  • спалня 14,56 кв.м
  • баня с тоалетна 4,27 кв.м
  • перално помещение 0,81 кв.м
  • коридор 8,30 кв.м
  • тераса 4,33 кв.м

Предимства

функционално разпределение

близо до градски транспорт

висококачествени материали

възможност за паркомясто

Недостатъци

продажба в степен БДС

сградата в строеж

Детайли

Площ
72 м²
Стаи
2
Бани
1
Етаж
8 от 10
Строителство
brick

Особености

elevator
internet

Описание от продавача

LUXIMMO FINEST ESTATES: www.luximmo.bg
Представяме за продажба двустаен апартамент в новострояща се модерна жилищна сграда, в кв. 'Левски'. Локацията е изключително удобна в близост до спирки на градския транспорт, магазини, училища и детски градини, което прави имота отличен избор за семейства и активни хора.

Сградата е в процес на строителство, Акт 16 е предвиден ноември 2028 г.

Жилището с обща площ от 73,31 кв.м е разположено на 4-ти етаж от общо 10.

Функционално и удобно разпределение:
дневен тракт 20,45 кв.м;
спалня 14,56 кв.м;
баня с тоалетна 4,27 кв.м;
перално помещение 0,81 кв.м;
коридор 8,30 кв.м, с място за голям вграден гардероб;
тераса 4,33 кв.м.

Апартаментът се продава в степен на завършеност по БДС, което дава възможност за обзавеждане и довършване според индивидуалния вкус на бъдещите собственици. Подходящ е както за лично ползване, така и за инвестиция.

Сградата ще бъде изпълнена с висок клас материали, включващи:
вентилируема фасада;
два асансьора;
висококачествена дограма;
съвременна визия и комфортна жилищна среда.

Има възможност за закупуване на паркоместа.

Приложените снимки са примерни визуализации как би могъл да изглежда Вашият мечтан дом.

Очакваме Вашето запитване

Ако желаете да организирате оглед на имот, който Ви интересува, или да посетите някой от нашите офиси, моля свържете се с нас. За да уговорите ден и час за среща или оглед, можете да се обадите на посочения в обявата телефон или да изпратите запитване чрез електронната поща. Нашият консултант ще Ви съдейства с всички необходими подробности и ще уговори удобно за Вас време.

Търсите подходящия за Вас имот?

Не се колебайте да се свържете с нас и да ни разкажете за Вашите нужди и предпочитания. Нашият екип ще проведе задълбочено проучване на пазара, за да Ви предложи имоти, които точно отговарят на Вашите критерии. Разполагаме с изключително портфолио от висококачествени и ексклузивни жилища, които са ...

За повече информация свържете се с нас и цитирайте референтния номер на имота. Моля, кажете, че сте видeли обявата в този сайт.
Референтен номер: VAR-137652
Тел: 0988 154 553, 052 812 862
Отговорен брокер:Цветина Дачевска-Вукич

Точен адрес

Връзка с продавача