+12% над пазара

спрямо ≈ 1 207 € /кв.м

168 800 €

1 350 € /кв.м.

Тристаен апартамент в Стара Загора, Самара 3

Продажба Стара Загора Самара 3 Обновена: 6 Апр 2026
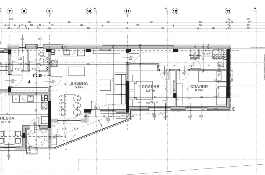
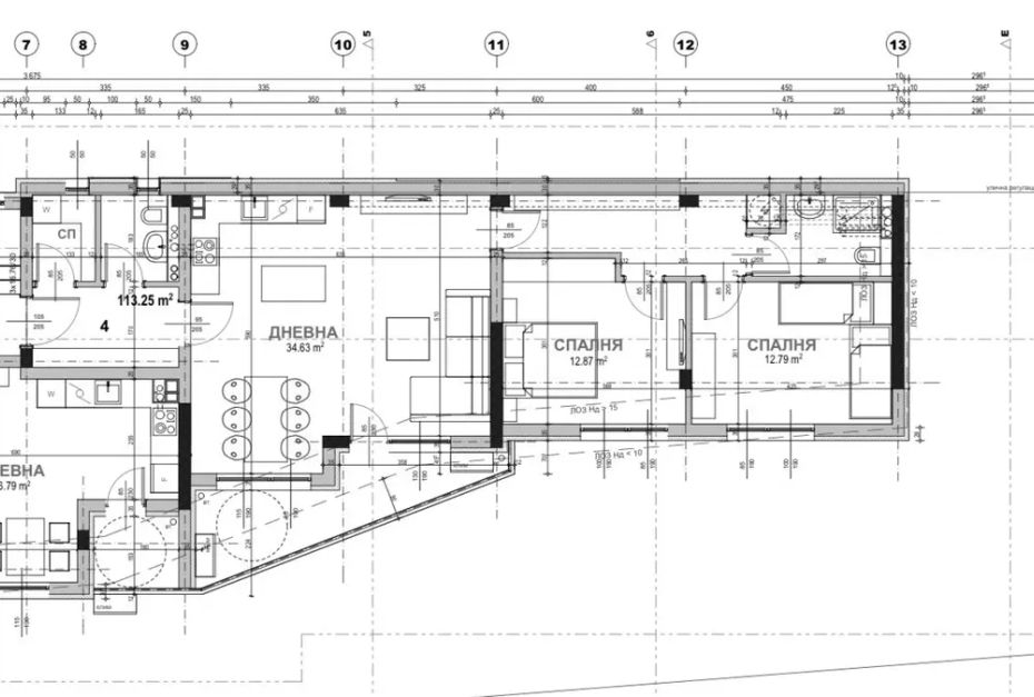
125 м²
Тухла
1 /3 ет.
2028 г.

Обяви за този имот (1)

168 800 €
1
1 Яну 0001  ·  6 Апр 2026
+12% над пазара (1 350 €/кв.м спрямо 1 207 €/кв.м)

Детайли

Площ
125 м²
Стаи
3
Етаж
1 от 3
Строителство
brick
Год. на строителство
2028 г.

Описание от продавача

Започва изграждането на нов проект, разположен в близост до Кауфланд- 2 и парк Бедечка.
В продажба е апартамент с ползваема площ от 113,25 кв.м, разпределена между: две спални, дневна с бокс, два санитарни възела, складово помещение, тераса.
Степен на завършеност:
- Дневна и спални: под- ламинат; стени: латекс;
- Коридор: под- теракот; стени: латекс;
- Санитарни възли: под- теракот; стени: фаянс;
- Тераса: под: теракот; стени: топлоизолация;
- Складово помещение: под- теракот; стени: латекс.
Pvc дограма, интериорни и входна врати.
По външните плоскости на фасадните стени, по таваните над проходи и под еркери, както и в настилките на тераси върху отопляеми помещения ще се положи топлоизолация с дебелина съобразно предвиденото с проекта в част Енергийна ефективност .
Под подовата настилка във всички бани, тоалетни и кухня - хидроизолация.

Възможност за закупуване на паркомясто или гараж на ниво партер.

Гъвкава схема на плащане, съобразена с етапите на строителство и желанието на купувача.

Нискоетажна, кокетна сграда, с предвидени качествени, съвременни технологии и енергийна ефективност.
Срок за завършване: 2028г.

Районът е с отлична инфраструктурна мрежа, зелени площи, в близост хранителни вериги и учебни заведения.

Съдействаме при необходимост за получаване на ипотечен и/или потребителски кредит от банка. Услугата е безплатна и необвързана с покупка на имот.

Приблизителна локация
Връзка с продавача
имоти за продажба без посредник (11230) имоти под наем без посредник (11230) имоти за продажба (11230) имоти под наем (11230) апартаменти под наем без посредник (6669) апартаменти за продажба (6669) апартаменти за продажба без посредник (6669) апартаменти под наем (6669) имоти за продажба в гр. София, Мусагеница без посредник (3217) имоти за продажба в гр. София, ПЗ Илиянци без посредник (3217) имоти за продажба в гр. София, Свобода без посредник (3217) имоти за продажба в гр. София, Горна баня без посредник (3217) имоти за продажба в гр. София, Изгрев без посредник (3217) имоти за продажба в гр. София, Славовци без посредник (3217) имоти за продажба в гр. София, Света Троица без посредник (3217) имоти за продажба в гр. София, Левски Г без посредник (3217) имоти за продажба в гр. София, Горубляне без посредник (3217) имоти за продажба в гр. София, Овча купел без посредник (3217) имоти за продажба в гр. София, м-т Орехите без посредник (3217) имоти за продажба в гр. София, Люлин 7 без посредник (3217) имоти за продажба в гр. София, Илиянци без посредник (3217) имоти за продажба в гр. София, Младост 1А без посредник (3217) имоти за продажба в гр. София, в.з. Беловодски път без посредник (3217) имоти за продажба в гр. София, Полигона без посредник (3217) имоти за продажба в гр. София, Разсадника без посредник (3217) имоти за продажба в гр. София, Подуяне без посредник (3217) имоти за продажба в гр. София, Красна поляна 3 без посредник (3217) имоти за продажба в гр. София, Младост 2 без посредник (3217) имоти за продажба в гр. София, Надежда 4 без посредник (3217) имоти за продажба в гр. София, в.з. Горна баня без посредник (3217) имоти за продажба в гр. София, Надежда 2 без посредник (3217) имоти за продажба в гр. София, в.з. Врана - Герман без посредник (3217) имоти за продажба в гр. София, НПЗ Хаджи Димитър без посредник (3217) имоти за продажба в гр. София, Павлово без посредник (3217) имоти за продажба в гр. София, в.з. Врана - Лозен без посредник (3217) имоти за продажба в гр. София, Суходол без посредник (3217) имоти за продажба в гр. София, Кубратово без посредник (3217) имоти за продажба в гр. София, Борово без посредник (3217) имоти за продажба в гр. София, Драгалевци без посредник (3217) имоти за продажба в гр. София, Белите брези без посредник (3217) имоти за продажба в гр. София, в.з. Драгалевци лифта без посредник (3217) имоти за продажба в гр. София, Илинден без посредник (3217) имоти за продажба в гр. София, Хиподрума без посредник (3217) имоти за продажба в гр. София, Лагера без посредник (3217) имоти за продажба в гр. София, Модерно предградие без посредник (3217) имоти за продажба в гр. София, Гоце Делчев без посредник (3217) имоти за продажба в гр. София, Красна поляна 1 без посредник (3217) имоти за продажба в гр. София, Център без посредник (3217) имоти за продажба в гр. София, Малинова долина без посредник (3217) имоти за продажба в гр. София, Меден рудник - зона Г без посредник (3217)