3% на пазара

спрямо ≈ 1 098 € /кв.м

81 257 €

1 069 € /кв.м.

Двустаен апартамент в Стара Загора, Железник - център

Продажба Стара Загора Железник - център Обновена: 4 Апр 2026
76 м²
Тухла
1 /5 ет.
2027 г.
3% на пазара (1 069 €/кв.м спрямо 1 098 €/кв.м)

Детайли

Площ
76 м²
Стаи
2
Етаж
1 от 5
Строителство
brick
Год. на строителство
2027 г.

Особености

elevator
video-surveillance
access-control

Описание от продавача

PS Property предлага БЕЗ КОМИСИОНА двустаен апартамент в новострояща се сграда с двор, намираща се в кв. Железник в близост до хранителни магазини, спирки на градския транспорт, училища и други.

Локация: кв. Железник
Изложение: изток

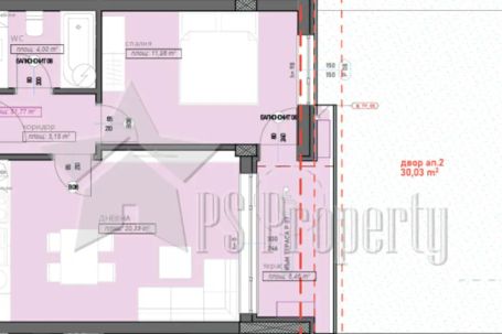
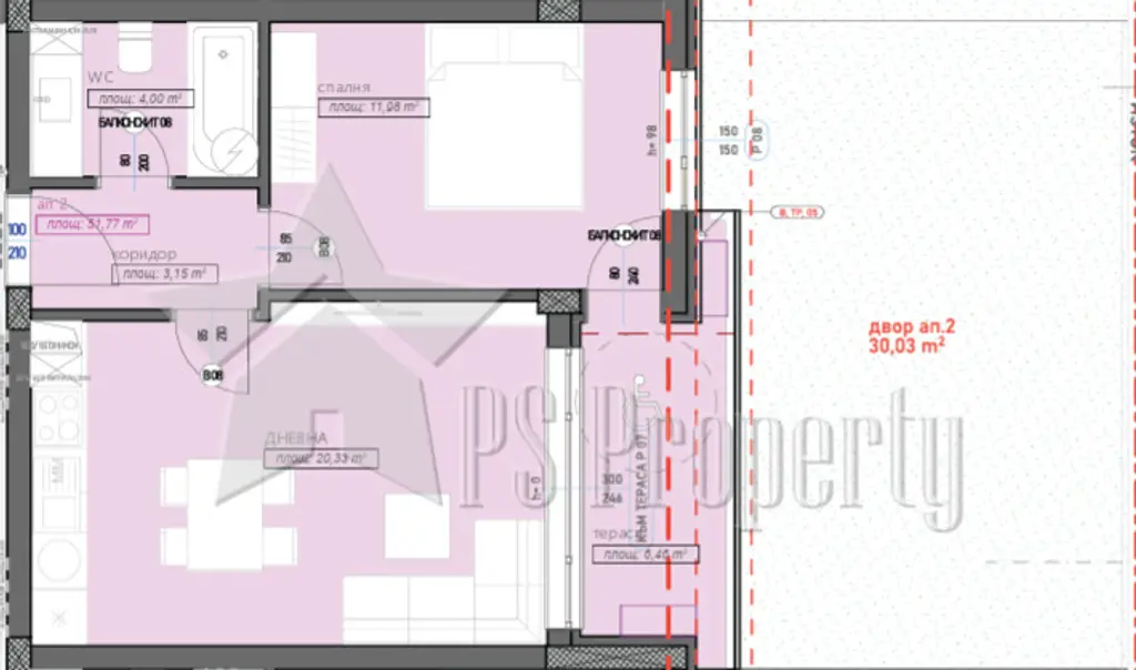
Характеристики: Представяме на вашето внимание новострояща сграда от утвърден строител. Двустайния апартамент е разположен на първи етаж в сграда с асансьор. Имотът се състои от коридор, просторна и светла всекидневна с кухненски бокс, спалня, баня с тоалетна, тераса, и прекрасен двор. Към имота има и прележащо мазе с площ от 10,09 кв.м. С възможност за закупуване на гараж.
Фасадната концепция на Zheleznik Residence е разработена с фокус върху стил, устойчивост и енергийна ефективност. Проектирана е в елегантна комбинация от полимерна силикатна мазилка в неутрална цветова палитра и акценти от еталбонд панели в антрацитен нюанс, които придават на сградата характерен и запомнящ се силует.
- Съвременно фасадно LED осветление, интегрирано в архитектурните линии
- Плосък покрив с топло и хидроизолационна система
- Висококачествена PVC дограма с шесткамерен профил и енергиен стъклопакет
- Интегрирана фотоволтаична система за енергийна ефективност
- Подготвена инфраструктура за Smart Home решения.

Обща площ: 76,05 кв.м.

Агенция PS Property предлага БЕЗПЛАТНА консултация и съдействие при ипотечен или потребителски кредит, като услугата не е обвързана с покупка на имот.

Приблизителна локация
Връзка с продавача