0 €

0 € /кв.м.

Двустаен апартамент в Стара Загора, Железник - център

Продажба Стара Загора Железник - център Обновена: 7 Апр 2026
100 м²
Тухла
Газ
5 /5 ет.
2025 г.

Обяви за този имот (1)

0 €
1
1 Яну 0001  ·  7 Апр 2026

Детайли

Площ
100 м²
Стаи
2
Етаж
5 от 5
Строителство
brick
Отопление
gas
Год. на строителство
2025 г.

Особености

elevator
internet
access-control
renovated
tax-credit

Описание от продавача

Описание
Без КОМИСИОНА!

Нова кооперация в кв. Железник' в Стара Загора. Предлага разнообразие от жилища, с различна площ, изложение и разпределение.

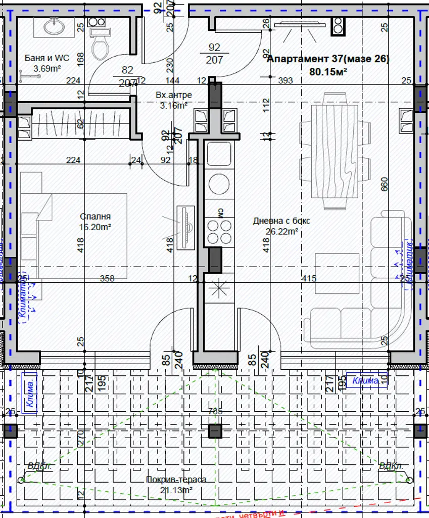
ДВУСТАЕН апартамент с площ от 100 кв. метра. Състои се от антре, всекидневна с кухненски бокс,спалня,баня с тоалетна и тераса. С изцяло източно изложение, среден апартамент. ДВУСТАЙНИЯТ апартамент ще бъде издаден в следния вид: стени и тавани шпакловка, под замазка, тераси гранитогрес, ел. инсталация до фасунга и ключ, ПВЦ дограма. Възможност за закупуване на гараж.

Обади се СЕГА и цитирай този код: 622735

Сграда
ДВУСТАЕН апартамент в град Стара Загора малка кооперация на пет етажа с луксозни общи части и асансьор.

Предимства
* Разсрочено плащане;

* Избор на етаж

* Четири изложения

Местоположение
ДВУСТАЕН апартамент в град Стара Загора, в кв. 'Железник', на тихо място, в близост - химермаркет, автобусна спирка

Приблизителна локация
Връзка с продавача
имоти за продажба без посредник (11230) имоти под наем без посредник (11230) имоти за продажба (11230) имоти под наем (11230) апартаменти под наем без посредник (6669) апартаменти за продажба (6669) апартаменти за продажба без посредник (6669) апартаменти под наем (6669) имоти за продажба в гр. София, Мусагеница без посредник (3217) имоти за продажба в гр. София, ПЗ Илиянци без посредник (3217) имоти за продажба в гр. София, Свобода без посредник (3217) имоти за продажба в гр. София, Горна баня без посредник (3217) имоти за продажба в гр. София, Изгрев без посредник (3217) имоти за продажба в гр. София, Славовци без посредник (3217) имоти за продажба в гр. София, Света Троица без посредник (3217) имоти за продажба в гр. София, Левски Г без посредник (3217) имоти за продажба в гр. София, Горубляне без посредник (3217) имоти за продажба в гр. София, Овча купел без посредник (3217) имоти за продажба в гр. София, м-т Орехите без посредник (3217) имоти за продажба в гр. София, Люлин 7 без посредник (3217) имоти за продажба в гр. София, Илиянци без посредник (3217) имоти за продажба в гр. София, Младост 1А без посредник (3217) имоти за продажба в гр. София, в.з. Беловодски път без посредник (3217) имоти за продажба в гр. София, Полигона без посредник (3217) имоти за продажба в гр. София, Разсадника без посредник (3217) имоти за продажба в гр. София, Подуяне без посредник (3217) имоти за продажба в гр. София, Красна поляна 3 без посредник (3217) имоти за продажба в гр. София, Младост 2 без посредник (3217) имоти за продажба в гр. София, Надежда 4 без посредник (3217) имоти за продажба в гр. София, в.з. Горна баня без посредник (3217) имоти за продажба в гр. София, Надежда 2 без посредник (3217) имоти за продажба в гр. София, в.з. Врана - Герман без посредник (3217) имоти за продажба в гр. София, НПЗ Хаджи Димитър без посредник (3217) имоти за продажба в гр. София, Павлово без посредник (3217) имоти за продажба в гр. София, в.з. Врана - Лозен без посредник (3217) имоти за продажба в гр. София, Суходол без посредник (3217) имоти за продажба в гр. София, Кубратово без посредник (3217) имоти за продажба в гр. София, Борово без посредник (3217) имоти за продажба в гр. София, Драгалевци без посредник (3217) имоти за продажба в гр. София, Белите брези без посредник (3217) имоти за продажба в гр. София, в.з. Драгалевци лифта без посредник (3217) имоти за продажба в гр. София, Илинден без посредник (3217) имоти за продажба в гр. София, Хиподрума без посредник (3217) имоти за продажба в гр. София, Лагера без посредник (3217) имоти за продажба в гр. София, Модерно предградие без посредник (3217) имоти за продажба в гр. София, Гоце Делчев без посредник (3217) имоти за продажба в гр. София, Красна поляна 1 без посредник (3217) имоти за продажба в гр. София, Център без посредник (3217) имоти за продажба в гр. София, Малинова долина без посредник (3217) имоти за продажба в гр. София, Меден рудник - зона Г без посредник (3217)