7% на пазара

спрямо ≈ 1 762 € /кв.м

278 306 €

1 646 € /кв.м.

Четиристаен апартамент в София, Люлин 5, бул. Панчо Владигеров

Продажба София Люлин 5 Обновена: 20 Апр 2026
169 м²
Тухла
ТЕЦ
7 /7 ет.
2026 г.

Доходност от наем: 2.2% /год. Ниска инвестиционна оценка

7% на пазара (1 646 €/кв.м спрямо 1 762 €/кв.м)
Потенциална годишна доходност: 2.2% (база: ~508 €/мес)
Инвестиционен клас: Ниска

Детайли

Площ
169 м²
Стаи
4
Етаж
7 от 7
Строителство
brick
Отопление
central
Год. на строителство
2026 г.

Особености

elevator
parking
internet
access-control
renovated

Описание от продавача

ДИРЕКТНИ ПРОДАЖБИ ОТ ИНВЕСТИТОРА!!! КУПУВАЧЪТ НЕ ДЪЛЖИ КОМИСИОННА!!! ЛЮЛИН 5 - ЖИЛИЩНА СГРАДА С ПОДЗЕМЕН ГАРАЖ, ГАРАЖИ И МАГАЗИНИ. ЕТАП НА СТРОЕЖА: ПОЛАГАНЕ НА МАЗИЛКИ, ЗАМАЗКИ И ВЪНШНА ИЗОЛАЦИЯ.
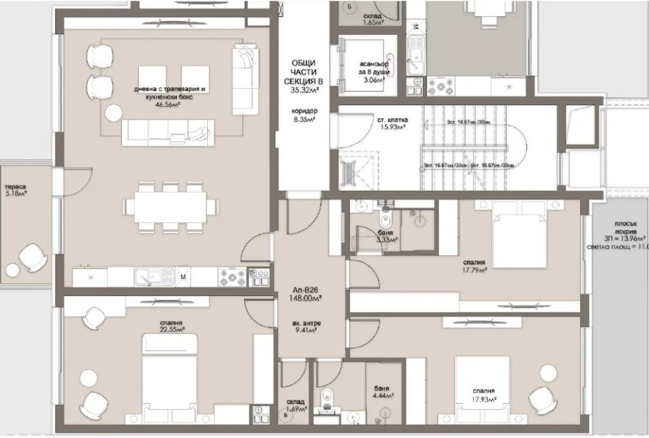
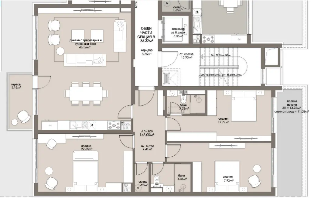
Просторен светъл и уютен четиристаен апартамент, отговарящ на всички изисквания за един съвременен дом. Апартамент В26 на схемата. Удобно и функционално разпределение, големи, комфортни и светли помещения. Чиста площ 148кв.м., площ с общи части 168,67кв.м. Възможност за пълноценно и безкомпромисно обзавеждане на всички помещения. Достъп до 36кв.м. покривна тераса.
Възможност за покупка на паркомясто.
Удобна локация с близост да автобусна и трамвайна спирки и само на 10минути пешеходно разстояние(1400м.) от метростанция Люлин. Отлично развити транспортна и социална инфраструктура. Транспортен достъп чрез бул.'Панчо Владигеров', бул.'Д-р Петър Дертлиев' и цялата транспортна мрежа на отлично устроения столичен квартал Люлин. На около 1000м. от търговския център на Люлин - кварталния пазар, множество големи търговски вериги, магазини и заведения за хранене.

За контакти: 0888961155, 0888835699 Георгиева

Точен адрес

Връзка с продавача