5% на пазара

спрямо ≈ 2 772 € /кв.м

335 000 €

2 637 € /кв.м.

Просторен тристаен апартамент с функционално разпределение в Манастирски ливади

Апартамент За продажба Под наем · София Манастирски ливади · Обновена: 16 Апр 2026
3 стаи
127 м²
3 /6 ет.
Тухла
Газ
2015 г.

Доходност: 4.4% / г.

Средна инвестиционна оценка · ~1 218 €/мес наем

Обяви за този имот (2)
335 000 €
1
1 Яну 0001  ·  16 Апр 2026
335 000 €
1
1 Яну 0001  ·  1 Яну 1970
5% на пазара (2 637 €/кв.м спрямо 2 772 €/кв.м)
Потенциална годишна доходност: 4.4% (база: ~1 218 €/мес)
Инвестиционен клас: Средна
Коментар от imotesa
AI обобщение

Тристаен апартамент в квартал Манастирски ливади-запад, построен през 2015 г. с тухлено строителство и Акт 16. Жилището разполага с голямо антре, просторна дневна с кухненски бокс и трапезария, две големи спални, като към едната има самостоятелна баня с тоалетна. Допълнително има втора баня с тоалетна, мокро помещение и балкон. Апартаментът е след основен ремонт и се намира на трети етаж от шестетажна сграда с поддържани общи части. Локацията е комуникативна, с бърз достъп до бул. България, близо до детска градина и Мол България. Възможност за наемане или покупка на паркомясто в сградата.

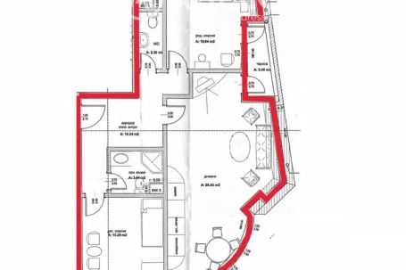
Разпределение
  • антре
  • дневна с кухненски бокс и трапезария
  • спалня
  • спалня
  • баня с тоалетна
  • баня с тоалетна
  • мокро помещение
  • балкон
Предимства

функционално разпределение

тухлено строителство

добра локация

близо до Мол България

Недостатъци

няма включено паркомясто

Детайли
Площ
127 м²
Стаи
3
Етаж
3 от 6
Строителство
brick
Отопление
gas
Год. на строителство
2015 г.
Особености
elevator
Описание от продавача

Просторен тристаен апартамент в Манастирски ливади-запад, с функционално разпределение: голямо антре, просторна дневна с кухненски бокс и трапезария, две големи спални, към едната спалня има голяма баня с тоалетна, втора баня с тоалетна, мокро помещение, балкон.

Апартаментът е след ремонт. Възможност за наемане на паркомясто в сградата.
Комункативно място, с бърз излаз на бул. България, в близост до детска градина и Мол България.
Строителството е тухла, сграда от 2015год.
С Акт 16, качествено строителство. Малка сграда с отлични общи части.
Обади се сега и цитирай този код 671595

Приблизителна локация
Връзка с продавача
имоти за продажба без посредник (11369) имоти под наем без посредник (11369) имоти за продажба (11369) имоти под наем (11369) апартаменти под наем без посредник (6713) апартаменти за продажба (6713) апартаменти за продажба без посредник (6713) апартаменти под наем (6713) имоти за продажба в гр. София, Мусагеница без посредник (3275) имоти за продажба в гр. София, ПЗ Илиянци без посредник (3275) имоти за продажба в гр. София, Свобода без посредник (3275) имоти за продажба в гр. София, Горна баня без посредник (3275) имоти за продажба в гр. София, Изгрев без посредник (3275) имоти за продажба в гр. София, Славовци без посредник (3275) имоти за продажба в гр. София, Света Троица без посредник (3275) имоти за продажба в гр. София, Левски Г без посредник (3275) имоти за продажба в гр. София, Горубляне без посредник (3275) имоти за продажба в гр. София, Овча купел без посредник (3275) имоти за продажба в гр. София, м-т Орехите без посредник (3275) имоти за продажба в гр. София, Люлин 7 без посредник (3275) имоти за продажба в гр. София, Илиянци без посредник (3275) имоти за продажба в гр. София, Младост 1А без посредник (3275) имоти за продажба в гр. София, в.з. Беловодски път без посредник (3275) имоти за продажба в гр. София, Полигона без посредник (3275) имоти за продажба в гр. София, Разсадника без посредник (3275) имоти за продажба в гр. София, Подуяне без посредник (3275) имоти за продажба в гр. София, Красна поляна 3 без посредник (3275) имоти за продажба в гр. София, Младост 2 без посредник (3275) имоти за продажба в гр. София, Надежда 4 без посредник (3275) имоти за продажба в гр. София, в.з. Горна баня без посредник (3275) имоти за продажба в гр. София, Надежда 2 без посредник (3275) имоти за продажба в гр. София, в.з. Врана - Герман без посредник (3275) имоти за продажба в гр. София, НПЗ Хаджи Димитър без посредник (3275) имоти за продажба в гр. София, Павлово без посредник (3275) имоти за продажба в гр. София, в.з. Врана - Лозен без посредник (3275) имоти за продажба в гр. София, Суходол без посредник (3275) имоти за продажба в гр. София, Кубратово без посредник (3275) имоти за продажба в гр. София, Борово без посредник (3275) имоти за продажба в гр. София, Драгалевци без посредник (3275) имоти за продажба в гр. София, Белите брези без посредник (3275) имоти за продажба в гр. София, в.з. Драгалевци лифта без посредник (3275) имоти за продажба в гр. София, Илинден без посредник (3275) имоти за продажба в гр. София, Хиподрума без посредник (3275) имоти за продажба в гр. София, Лагера без посредник (3275) имоти за продажба в гр. София, Модерно предградие без посредник (3275) имоти за продажба в гр. София, Гоце Делчев без посредник (3275) имоти за продажба в гр. София, Красна поляна 1 без посредник (3275) имоти за продажба в гр. София, Център без посредник (3275) имоти за продажба в гр. София, Малинова долина без посредник (3275) имоти за продажба в гр. София, Меден рудник - зона Г без посредник (3275)