-1% на пазара

спрямо ≈ 2 747 € /кв.м

300 832 €

2 785 € /кв.м.

Тристаен апартамент в София, Манастирски ливади

Продажба София Манастирски ливади Обновена: 17 Апр 2026
108 м²
Тухла
3 стаи
2 /4 ет.
2027 г.

Доходност от наем: 4.8% /год. Средна инвестиционна оценка

Обяви за този имот (1)

300 832 €
1
1 Яну 0001  ·  17 Апр 2026
-1% на пазара (2 785 €/кв.м спрямо 2 747 €/кв.м)
Потенциална годишна доходност: 4.8% (база: ~1 204 €/мес)
Инвестиционен клас: Средна

Детайли

Площ
108 м²
Стаи
3
Етаж
2 от 4
Строителство
brick
Год. на строителство
2027 г.

Особености

elevator

Описание от продавача

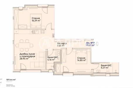
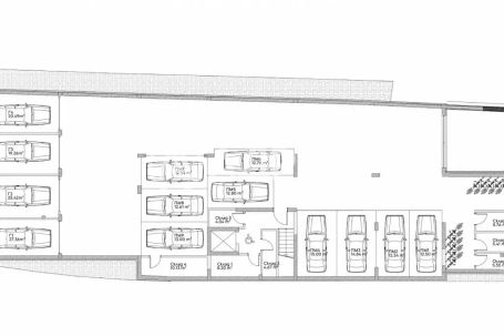
Тристаен апартамент с РЗП-107,44м2, ЗП-93,61м2 със следното разпределение: на етаж първи над партер са разположени: антре, дневна с трапезария и кухненски бокс- 28,94м2, две спални -14,85м2 с баня към нея - 5,27м2, втора спалня-16,29м2, още една баня с тоалетна-4,16м2. Изводи за термопомпа, при желание може и подово отопление. Подземни ПМ и гаражи.

BOUTIQUE новият стандарт за градски лукс в Манастирски ливади.

Представяме ви BOUTIQUE ексклузивна жилищна сграда в манастирски ливади, отличаваща се с впечатляваща архитектура, премиум изпълнение и усещане за уединение в сърцето на южните квартали.

Проектът включва само 10 внимателно проектирани жилища, сред които два емблематични мезонета. Партерните апартаменти разполагат със собствени частни градини, превръщащи ежедневието в истинско спокойствие. Към улицата са ситуирани две представителни офис помещения.

Локацията осигурява перфектна свързаност непосредствен достъп до бул. България и Околовръстен път, както и близост до търговски центрове, образователни институции и зелени пространства.

BOUTIQUE дом, който съчетава стил, комфорт и престиж.
Удобен транспорт, бърз достъп до Околовръстен път и бул. България. Автобус 64,304,X10, Тролей 2. В района има детска градина, супермаркет, фитнес.
Бутикова луксозна сграда, съчетаваща модерна архитектура, престижна локация и висок клас изпълнение.
Отлична локация в район с изградена инфраструктура.
Обади се сега и цитирай този код 676870

Приблизителна локация
Връзка с продавача
имоти за продажба без посредник (11265) имоти под наем без посредник (11265) имоти за продажба (11265) имоти под наем (11265) апартаменти под наем без посредник (6684) апартаменти за продажба (6684) апартаменти за продажба без посредник (6684) апартаменти под наем (6684) имоти за продажба в гр. София, Мусагеница без посредник (3225) имоти за продажба в гр. София, ПЗ Илиянци без посредник (3225) имоти за продажба в гр. София, Свобода без посредник (3225) имоти за продажба в гр. София, Горна баня без посредник (3225) имоти за продажба в гр. София, Изгрев без посредник (3225) имоти за продажба в гр. София, Славовци без посредник (3225) имоти за продажба в гр. София, Света Троица без посредник (3225) имоти за продажба в гр. София, Левски Г без посредник (3225) имоти за продажба в гр. София, Горубляне без посредник (3225) имоти за продажба в гр. София, Овча купел без посредник (3225) имоти за продажба в гр. София, м-т Орехите без посредник (3225) имоти за продажба в гр. София, Люлин 7 без посредник (3225) имоти за продажба в гр. София, Илиянци без посредник (3225) имоти за продажба в гр. София, Младост 1А без посредник (3225) имоти за продажба в гр. София, в.з. Беловодски път без посредник (3225) имоти за продажба в гр. София, Полигона без посредник (3225) имоти за продажба в гр. София, Разсадника без посредник (3225) имоти за продажба в гр. София, Подуяне без посредник (3225) имоти за продажба в гр. София, Красна поляна 3 без посредник (3225) имоти за продажба в гр. София, Младост 2 без посредник (3225) имоти за продажба в гр. София, Надежда 4 без посредник (3225) имоти за продажба в гр. София, в.з. Горна баня без посредник (3225) имоти за продажба в гр. София, Надежда 2 без посредник (3225) имоти за продажба в гр. София, в.з. Врана - Герман без посредник (3225) имоти за продажба в гр. София, НПЗ Хаджи Димитър без посредник (3225) имоти за продажба в гр. София, Павлово без посредник (3225) имоти за продажба в гр. София, в.з. Врана - Лозен без посредник (3225) имоти за продажба в гр. София, Суходол без посредник (3225) имоти за продажба в гр. София, Кубратово без посредник (3225) имоти за продажба в гр. София, Борово без посредник (3225) имоти за продажба в гр. София, Драгалевци без посредник (3225) имоти за продажба в гр. София, Белите брези без посредник (3225) имоти за продажба в гр. София, в.з. Драгалевци лифта без посредник (3225) имоти за продажба в гр. София, Илинден без посредник (3225) имоти за продажба в гр. София, Хиподрума без посредник (3225) имоти за продажба в гр. София, Лагера без посредник (3225) имоти за продажба в гр. София, Модерно предградие без посредник (3225) имоти за продажба в гр. София, Гоце Делчев без посредник (3225) имоти за продажба в гр. София, Красна поляна 1 без посредник (3225) имоти за продажба в гр. София, Център без посредник (3225) имоти за продажба в гр. София, Малинова долина без посредник (3225) имоти за продажба в гр. София, Меден рудник - зона Г без посредник (3225)