307 500 €

2 520 € /кв.м.

Тристаен апартамент с две тераси в Кръстова вада, София

Продажба София Кръстова вада Обновена: 20 Апр 2026
122 м²
Тухла
1 бани
1 /5 ет.
2026 г.

Коментар от imotesa

AI обобщение

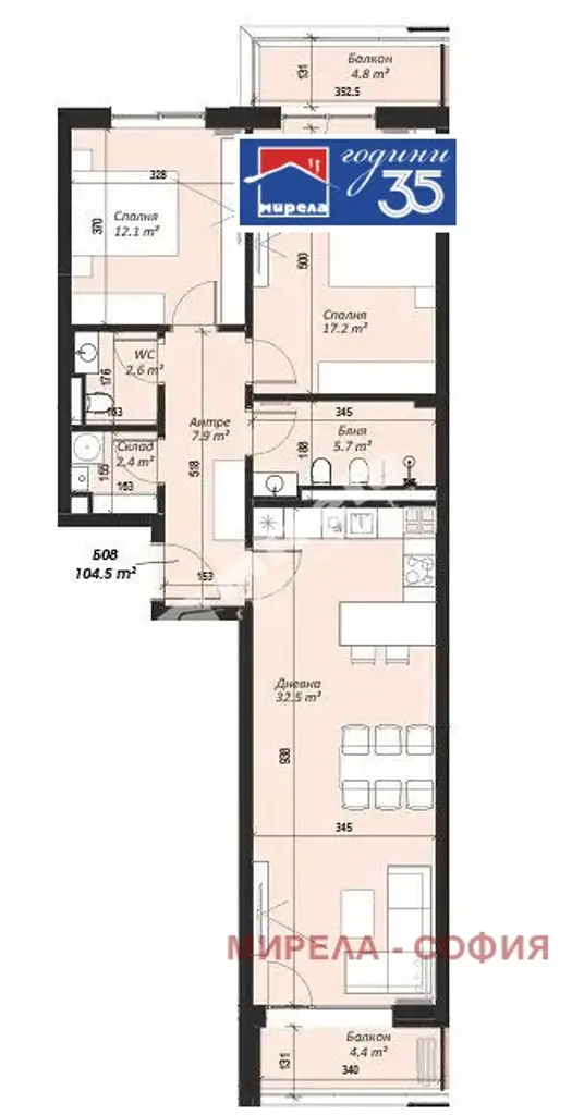
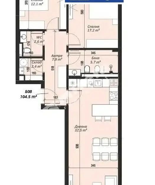
Предлаганият имот е тристаен апартамент в град София, квартал Кръстова вада, с обща площ от 122 кв.м. Сградата е в процес на строителство с очакван завършек през 2026 година. Апартаментът се намира на първи етаж от пететажна сграда с асансьор.

Разпределението включва две спални, дневна с трапезария, баня и два балкона/тераси, което осигурява удобство и възможности за проветрение и естествена светлина. Имотът е непроходен, което допринася за по-добър комфорт и уединение.

Сградата е с качествена стоманобетонна конструкция и тухлено строителство. Апартаментът се предава на шпакловка и замазка, което позволява на бъдещите собственици да го завършат по свой вкус. Отоплението е газово, централно, а дограмата е шесткамерна PVC, което гарантира добра топлоизолация.

Локацията в Кръстова вада предлага добра инфраструктура и достъп до основни пътни артерии, както и близост до зелени площи. Подземно паркомясто е включено, което е предимство в този район.

Общата оценка е за функционален и съвременен имот, подходящ за семейства, които търсят удобство и възможност за персонализация в динамичен градски район.

Разпределение

  • спалня
  • спалня

Предимства

две тераси

централно газово отопление

подземно паркомясто

непроходен план

Недостатъци

първи етаж (партер)

завършва се на шпакловка и замазка

Изложение

N S E W
N, S
Изложение на имота

Детайли

Площ
122 м²
Стаи
3
Бани
1
Етаж
1 от 5
Строителство
brick
Год. на строителство
2026 г.

Особености

elevator
parking

Описание от продавача

454374 _ПРЕДЛАГАМЕ ПОСЛЕДНИ 3 СТАЙНИ АПАРТАМЕНТИ В ЛУКСОЗНА ЖИЛИЩНА СГРАДА С АКТ 14, КВ. КРЪСТОВА ВАДА._

Представяме ви 3-стаен апартамент със следното разпределение: антре, дневна с кухненски бокс, две спални, баня с тоалетна, отделна тоалетна, склад и два балкона.

Комплексът се намира в най-атрактивната и желана част на квартала в близост до Mall Paradise и булевард 'Черни връх'. Районът е сред най-бързо развиващите се и комуникативни места в столицата. Отличава се с отлична инфраструктура, нови улици, булеварди, офисни и жилищни сгради, метростанция 'Витоша' и спирки на градския транспорт.

_В ЦЕНАТА НА ИМОТА Е ВКЛ. СКЛАД С ПЛОЩ ОТ 1.30 КВ.М._

Имотът има жилищен статут; Има подземно паркомясто; Сградата има асансьор; Продава се без обзавеждане; ЕТАП НА СТРОИТЕЛСТВО: завършен груб строеж (Акт 14); ОТОПЛЕНИЕ: Газ - централно; Има 2 балкона/тераси; Предава се на шпакловка и замазка; Непреходен; ВИД СТРОИТЕЛСТВО: стоманобетонна конструкция; ЗАСТРОЕНА ПЛОЩ 104.55 кв.м; ПУСКОВ СРОК: 06.2026; ИЗЛОЖЕНИЕ: север, юг; СПАЛНИ: 2; БАНИ: 1; ДОГРАМА: Шест камерна PVC

_________________________________________________________________________________________________

Към потенциалните продавачи!
Ако продавате подобен имот или обмисляте дали да го направите в близко бъдеще, моля свържете се с мен. Имам клиенти, които търсят в района. Мога да дам ориентировъчна цена по телефон или имейл и по-точна цена при оглед на място.

ОГЛЕДЪТ И КОНСУЛТАЦИЯТА СА БЕЗПЛАТНИ.

МОЖЕТЕ СЪЩО ТАКА, ДА ПОДАДЕТЕ И БЕЗПЛАТНА ЧАСТНА ОБЯВА ЗА ПРОДАЖБА НА ВАШИЯ ИМОТ В MIRELA.BG, БЕЗ БРОКЕР И КОМИСИОНА.

Точен адрес

Връзка с продавача