-4% на пазара

спрямо ≈ 2 130 € /кв.м

295 394 €

2 204 € /кв.м.

Тристаен апартамент в София, Красна поляна 2

Продажба София Красна поляна 2 Обновена: 20 Апр 2026
134 м²
Тухла
5 /9 ет.
2026 г.
-4% на пазара (2 204 €/кв.м спрямо 2 130 €/кв.м)

Детайли

Площ
134 м²
Стаи
3
Етаж
5 от 9
Строителство
brick
Год. на строителство
2026 г.

Особености

elevator
parking

Описание от продавача

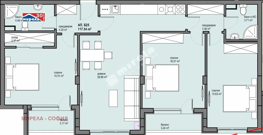
455785 На Вашето внимание представяме 4-стаен апартамент в сграда Красена, в ж.к. Красна поляна 2.

Жилището е с функционално разпределение и се състои от: антре, дневна с кухненски бокс и трапезария, три непреходни спални, две бани с тоалетна, склад и два балкона.

Благодарение на локацията си ,сградата е свързана с много добра транспортна инфраструктура. В близост е до метростанция Овча Купел, детски градини, болница МБАЛ Надежда, пазар Росица и супермаркети.

Сградата се състои от три входа всяка от по 8 надземни етажа със следното разпределение:

* складовите помещения са позиционирани в сутеренния етаж;
* паркирането е решено с очертани единични и двойни паркоместа;
* партерен етаж обособени са 14 търговски помещения;
* втори и до осми жилищен етаж двустайни, тристайни и четиристайни апартаменти с функционално разпределение.

Има възможност за покупка на подземно паркомясто на цена от 30 000 евро.

За повече информация и оглед на място, не се колебайте да се свържете с водещия консултант по продажби.

Имотът има жилищен статут; Има подземен гараж; Сградата има асансьор; Продава се без обзавеждане; ЕТАП НА СТРОИТЕЛСТВО: завършен груб строеж (Акт 14); ОТОПЛЕНИЕ: Газ - централно; Има 2 балкона/тераси; Предава се на шпакловка и замазка; Луксозен имот; Непреходен; ВИД СТРОИТЕЛСТВО: стоманобетонна конструкция с тухлена зидария; ЗАСТРОЕНА ПЛОЩ 117.34 кв.м; ПУСКОВ СРОК: 02.2026; ИЗЛОЖЕНИЕ: югоизток; СПАЛНИ: 3; БАНИ: 2; ДОГРАМА: PVC

_________________________________________________________________________________________________

Към потенциалните продавачи!
Ако продавате подобен имот или обмисляте дали да го направите в близко бъдеще, моля свържете се с мен. Имам клиенти, които търсят в района. Мога да дам ориентировъчна цена по телефон или имейл и по-точна цена при оглед на място.

ОГЛЕДЪТ И КОНСУЛТАЦИЯТА СА БЕЗПЛАТНИ.

МОЖЕТЕ СЪЩО ТАКА, ДА ПОДАДЕТЕ И БЕЗПЛАТНА ЧАСТНА ОБЯВА ЗА ПРОДАЖБА НА ВАШИЯ ИМОТ В MIRELA.BG, БЕЗ БРОКЕР И КОМИСИОНА.

Точен адрес

Връзка с продавача