-3% на пазара

спрямо ≈ 2 108 € /кв.м

236 900 €

2 173 € /кв.м.

Тристаен апартамент в София, Овча купел 2

Продажба София Овча купел 2 Обновена: 19 Апр 2026
109 м²
Тухла
Газ
5 /9 ет.
2027 г.

Доходност от наем: 3.0% /год. Ниска инвестиционна оценка

-3% на пазара (2 173 €/кв.м спрямо 2 108 €/кв.м)
Потенциална годишна доходност: 3.0% (база: ~599 €/мес)
Инвестиционен клас: Ниска

Детайли

Площ
109 м²
Стаи
3
Етаж
5 от 9
Строителство
brick
Отопление
gas
Год. на строителство
2027 г.

Особености

elevator

Описание от продавача

Модерна жилищна сграда в Овча Купел 2, част от мащабен комплекс с обща визия и инфраструктура, от инвеститор с доказано качество на строителство и солидна репутация на пазара. Стилен дизайн и функционални разпределения, разположен в предпочитан район с удобна градска инфраструктура.

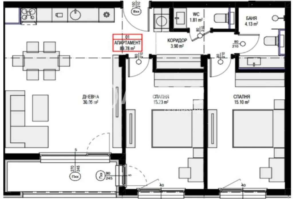
Просторен тристаен апартамент, с южно изложение, състоящ се от:
входно антре, дневна с трапезария и кухненски
бокс, две спални, тераса, баня с тоалетна и
отделна тоалетна.


Сградата се намира на кратко пешеходно разстояние от НБУ и метростанция 'Мизия'.
Сграда от 3 входа, на 9 етажа. Богат избор от жилища с една или две спални. Възможност за обединение. Отопление на газ. Към всеки апартамент има прилежащо мазе или склад.

Контролиран достъп, асансьор и висок клас дограма.
Обади се сега и цитирай този код 680844

Приблизителна локация
Връзка с продавача