-4% на пазара

спрямо ≈ 2 294 € /кв.м

314 520 €

2 382 € /кв.м.

Тристаен апартамент в София, Малинова долина

Продажба София Малинова долина Обновена: 19 Апр 2026
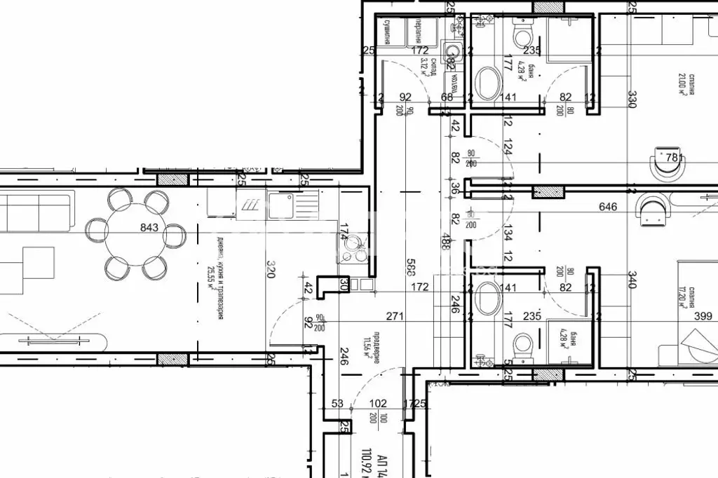
132 м²
Тухла
Газ
3 /7 ет.
2025 г.

Доходност от наем: 3.7% /год. Ниска инвестиционна оценка

-4% на пазара (2 382 €/кв.м спрямо 2 294 €/кв.м)
Потенциална годишна доходност: 3.7% (база: ~973 €/мес)
Инвестиционен клас: Ниска

Детайли

Площ
132 м²
Стаи
3
Етаж
3 от 7
Строителство
brick
Отопление
gas
Год. на строителство
2025 г.

Особености

elevator

Описание от продавача

СГРАДАТА Е С АКТ 16.

Тристаен апартамент на етаж ТРЕТИ със ЗП- 110.92м2, РЗП- 131.05м2 и разпределение: антре, дневна с кухненски бокс и трапезария, две спални, две бани с тоалетни, килер/мокро и два балкона. Изложение ЮГ. Налични подземни гаражи с монтирани врати, собствен електромер и три контакта.


Намира се северно от търговски център 'Sofia Ring Mall' и магазин 'Ikea'. В красива зелена местност с уникална гледка към планина Витоша и в непосредствена близост до бул. 'Св. Климент Охридски'. Разстоянието с автомобил до центъра на столицата е 15 минути. Удобен транспорт посредством автобуси 123, 69 и 70. Бъдеща метростанция.
Луксозен жилищен комплекс от затворен тип с постоянна физическа охрана, видеонаблюдение и контролиран достъп. В средата на комплекса се оформя вътрешен озеленен двор с детска площадка. Предвидени са обособени подземни паркинги на две нива. Газифициран с индивидуално изградена инсталация за газ и климатици за всеки апартамент. Месечната такса за поддръжка и управление в комплекса е 1.00 лева без ДДС върху разгърнатата застроена площ за апартаментите и 0.50 лева без ДДС за паркоместата и гаражите.
Отлична локация. Качество на строителството.
Обади се сега и цитирай този код 632789

Приблизителна локация
Връзка с продавача