Продажба -3% под пазара

Тристаен апартамент в Христо Смирненски с модерна фасада

Пловдив Христо Смирненски
Публикувано: 9 Апр 2026 · Обновено: 9 Апр 2026
Продажба 193 935 € 1 491 €/кв.м
Очакван наем 662 €/мес
Площ
130 м²
Етаж
2 / 10
Строителство
Тухла
Година
2027
AI Анализ на доходността 4.1% / г.
Средна инвестиционна оценка · ~662 €/мес наем при пазарни условия

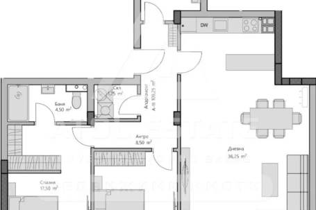
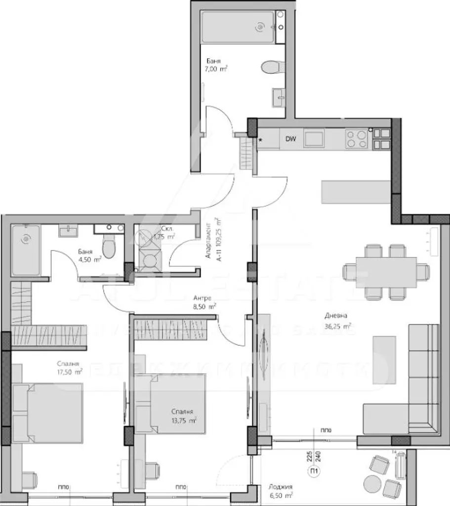
Разпределение

спалня
спалня
спалня

Предимства и недостатъци

Предимства
функционално разпределение
ново строителство
близо до парк
качествени материали
Недостатъци
Няма налични данни.

Детайли

Площ130 м²
Стаи3
Етаж2 от 10
СтроителствоТухла
Год. на строителство2027 г.

Коментар от imotesa

AI обобщение

Тристаен апартамент в град Пловдив, квартал Христо Смирненски, част от нов комплекс.

Разпределението включва удобни и функционални помещения с обща площ от 130 кв.м на втори етаж от десететажна сграда.

Сградата е с монолитна стоманено-бетонна конструкция, изградена с енергийно ефективни тухли и топлоизолация с каменна вата, оборудвана с алуминиева дограма и вентилируема фасада.

Локацията е близо до парк, детски градини, училища и търговски център, с лесен достъп до обществен транспорт.

Имотът е подходящ за семейства, търсещи съвременен и функционален дом с удобства в градска среда.

Описание от продавача

🔸 Оферта 65! 💥 БЕЗ КОМИСИОННА! ✔️ ДОКАЗАН ИНВЕСТИТОР! 🏗️ АКТ 14! 🌟 20% СЕГА / 80 АКТ 16!

✅ Агенция АТОЛ ЕСТЕЙТ Ви представя: Тристаен апартамент в страхотен комплекс до ул. Рая в кв. Смирненски, гр. Пловдив!

🏢 Характеристики и предимства:
Акт 14 - идеален момент за инвестиция
Стилна и красива окачена вентилируема фасада с еталбонд.
Отлична архитектура, удобни разпределения, луксозно завършени общи части.
Окабеляване за станции за ел. автомобили и за технология Умен дом и Умно осветление .
Комплексът ще разполага с озеленени площи, детски площадки, алейна мрежа с растителност и зони за отдих.
Подготовка за термопомпа, контролиран достъп и Видеонаблюдение 24/7.
Перфектна локация: В близост до парк Отдих и култура , Мол Пловдив, детски градини, училища и обществен транспорт.
Монолитна стоманено-бетонна конструкция, енергийно ефективни тухли, висококачествена алуминиева дограма, топлоизолация с каменна вата.

🏦 Предлагаме и професионално кредитно посредничество при ипотека, потребителски кредит и рефинансиране!

Приблизителна локация