2% на пазара

спрямо ≈ 1 121 € /кв.м

124 190 €

1 099 € /кв.м.

Тристаен апартамент в Южен, Пловдив с модерно строителство

Продажба Пловдив Южен Обновена: 9 Апр 2026
113 м²
Тухла
3 /8 ет.
2027 г.

Доходност от наем: 5.4% /год. Средна инвестиционна оценка

2% на пазара (1 099 €/кв.м спрямо 1 121 €/кв.м)
Потенциална годишна доходност: 5.4% (база: ~556 €/мес)
Инвестиционен клас: Средна

Коментар от imotesa

AI обобщение

Предлага се тристаен апартамент в квартал Южен, град Пловдив. Разполага с площ от 113 кв.м. и се намира на 3-ти етаж в осеметажна сграда. Разпределението е функционално и осигурява удобство за обитаване. Сградата е тухлена, с модерно строителство, започнато през 2027 година. Локацията е в добре развит район с достъп до градска инфраструктура. Имотът е подходящ за семейно жилище с баланс между комфорт и практичност.

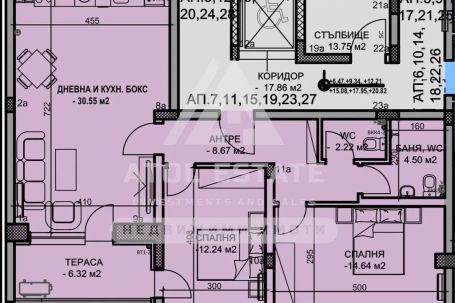
Разпределение

  • тристаен

Детайли

Площ
113 м²
Стаи
3
Етаж
3 от 8
Строителство
brick
Год. на строителство
2027 г.

Описание от продавача

💠 Оферта 32! 💥 БЕЗ КОМИСИОННА! 🌟 1100 КВ.М.! ✔️ ДОКАЗАН ИНВЕСТИТОР! 🏗️ СТАРТИРАНО СТРОИТЕЛСТВО!

✅ Агенция АТОЛ ЕСТЕЙТ Ви представя: Тристаен апартамент в модерна сграда в кв. Южен, гр. Пловдив.

✨ Характеристики:
Просторно и функционално разпределение
Луксозно и модерно изпълнени общи части
Стартирано строителство - идеален момент за инвестиция

🌿 Сградата предлага спокойствие, комфорт и отлична локация.

🏦 Предлагаме и професионално кредитно посредничество при ипотека, потребителски кредит и рефинансиране!

Приблизителна локация
Връзка с продавача