2% на пазара

спрямо ≈ 1 121 € /кв.м

122 551 €

1 104 € /кв.м.

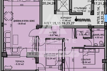
Тристаен апартамент в Южен, Пловдив с функционално разпределение

Продажба Пловдив Южен Обновена: 9 Апр 2026
111 м²
Тухла
2 /8 ет.
2027 г.

Доходност от наем: 5.4% /год. Средна инвестиционна оценка

2% на пазара (1 104 €/кв.м спрямо 1 121 €/кв.м)
Потенциална годишна доходност: 5.4% (база: ~556 €/мес)
Инвестиционен клас: Средна

Коментар от imotesa

AI обобщение

Предлаганият имот е тристаен апартамент в град Пловдив, квартал Южен. Разполага с площ от 111 кв.м. и се намира на 2-ри етаж от общо 8 в сграда от тухлено строителство, строена през 2027 г. Разпределението е просторно и функционално, подходящо за семейно ползване. Сградата е в процес на строителство, като е на етап пред акт 14, което позволява възможност за индивидуални корекции. Използвани са качествени материали, а общите части са изпълнени модерно и луксозно. Локацията е в добре развит квартал с удобен достъп до градската инфраструктура и зелени площи. Имотът е подходящ за хора, търсещи съвременен и удобен дом с потенциал за инвестиция.

Разпределение

  • спалня
  • спалня
  • спалня

Предимства

функционално разпределение

ново строителство

качествени материали

Недостатъци

Няма налични данни за недостатъци.

Детайли

Площ
111 м²
Стаи
3
Етаж
2 от 8
Строителство
brick
Год. на строителство
2027 г.

Описание от продавача

💠 Оферта 38! 💥 БЕЗ КОМИСИОННА! 🌟 1100 КВ.М.! ✔️ ДОКАЗАН ИНВЕСТИТОР! 🏗️ ПРЕД АКТ 14!

✅ Агенция АТОЛ ЕСТЕЙТ Ви представя: Тристаен апартамент в модерна сграда в кв. Южен, гр. Пловдив.

✨ Характеристики:
Просторно и функционално разпределение
Луксозно и модерно изпълнени общи части
Стартирано строителство - идеален момент за инвестиция

🌿 Сградата предлага спокойствие, комфорт и отлична локация.

🏦 Предлагаме и професионално кредитно посредничество при ипотека, потребителски кредит и рефинансиране!

Приблизителна локация
Връзка с продавача