Продажба -16% под пазара

Тристаен апартамент в Христо Смирненски с вътрешен парк

Пловдив Христо Смирненски
Публикувано: 9 Апр 2026 · Обновено: 9 Апр 2026
Продажба 137 397 € 1 296 €/кв.м
Очакван наем 659 €/мес
Площ
106 м²
Етаж
2 / 7
Строителство
Тухла
Година
2027
AI Анализ на доходността 5.8% / г.
Средна инвестиционна оценка · ~659 €/мес наем при пазарни условия

Предимства и недостатъци

Предимства
функционално разпределение
качествени материали
вътрешен парк
ново строителство
Недостатъци
Няма налични данни.

Детайли

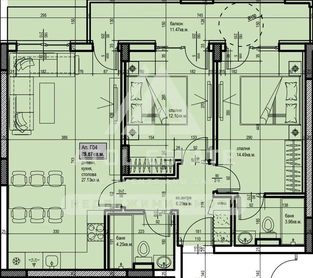
Площ106 м²
Стаи3
Етаж2 от 7
СтроителствоТухла
Год. на строителство2027 г.

Коментар от imotesa

AI обобщение

Предлаганият имот е тристаен апартамент в град Пловдив, квартал Христо Смирненски. Разполага с площ от 106 кв.м. и се намира на втори етаж в новострояща се сграда с общо 7 етажа.

Разпределението е функционално и просторено, подходящо за семейно ползване, като се предлагат гъвкави схеми на плащане и възможност за проектиране на 'умен дом'.

Сградата е с тухлено строителство, предвижда се използване на качествени материали, включително окачена вентилируема фасада и шумо- и топлоизолация. Водоснабдяването ще бъде с филтрираща станция.

Комплексът включва вътрешен парк с площ 3500 кв.м., детска площадка и кът за отдих, което допринася за спокойствието и комфорта на живущите. Локацията е в добре развит район на Пловдив.

Имотът е подходящ за семейно жилище с акцент върху комфорт и модерни удобства в нова сграда.

Описание от продавача

🔸 Оферта 94! 💥 БЕЗ КОМИСИОННА! ✔️ ДОКАЗАН ИНВЕСТИТОР! 🏗️ СТАРТИРАНО СТРОИТЕЛСТВО! 🌟 СТРАХОТЕН КОМПЛЕКС!

✅ Агенция АТОЛ ЕСТЕЙТ Ви представя: Тристаен апартамент в новостроящ се модерен комплекс в кв. Смирненски, гр. Пловдив.
✨ Характеристики:
Гъвкави схеми на плащане
Просторно и функционално разпределение
Луксозно и модерно изпълнени общи части по дизайнерски проект
Стартирано строителство - идеален момент за инвестиция
Отлична архитектура с предпочитани изложения
Удобни разпределения на апартаментите
🌿 Комплексът предлага спокойствие, комфорт и отлична локация.

➡️ Предимства на комплекса :
🏢 Използват се най-висококачествени строителни материали
❇️ Вътрешен парк с площ от 3500 кв.м.,
💠 Окачена вентилируема фасада с клинкерни тухли
🔇 Подова шумо и топлоизолация
💧 Станция за филтриране и пречистване на водата
🏠 Възможност за проектиране на 'умен дом'
🧒 Детска площадка с кът за отдих

🏡 Не пропускайте възможността да станете част от този страхотен проект!

🏦 Предлагаме и професионално кредитно посредничество при ипотека, потребителски кредит и рефинансиране!

Приблизителна локация