99 950 €

961 € /кв.м.

Апартамент 3-стаен в Гагарин с панорамна тераса

Апартамент За продажба Под наем · Пловдив Гагарин · Обновена: 17 Апр 2026
1 бани
104 м²
9 /9 ет.
Тухла
2028 г.
Обяви за този имот (1)
99 950 €
1
1 Яну 0001  ·  17 Апр 2026
Коментар от imotesa
AI обобщение

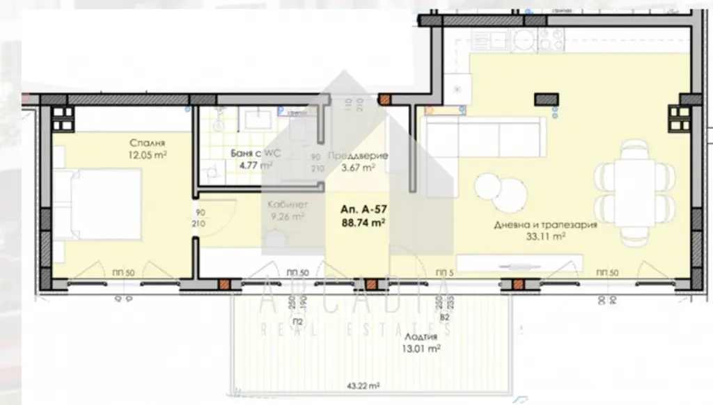
Апартамент с площ 104 кв.м, разположен на последен етаж в квартал Гагарин, Пловдив.

Разпределението включва голяма дневна над 33 кв.м, самостоятелна спалня, кабинет и тераса 13 кв.м с панорамна гледка.

Сградата е ново строителство от 2028 г., с тухлено строителство, асансьор и контролиран достъп. Жилището е реновирано и разполага с южно изложение.

Локацията е спокойна, в северната част на града, с лесен достъп до централни части и удобства.

Имотът е подходящ за семейно жилище или инвестиция, съчетаваща комфорт и функционалност.

Разпределение
  • дневна над 33 кв.м
  • спалня
  • кабинет
  • тераса 13 кв.м
Предимства

южно изложение

панорамна тераса

ново строителство

асансьор

Недостатъци

последен етаж

Изложение
N S E W
S
Изложение на имота
Детайли
Площ
104 м²
Бани
1
Етаж
9 от 9
Строителство
brick
Год. на строителство
2028 г.
Особености
elevator
access-control
renovated
Описание от продавача

Оферта : 28634
Предлагаме страхотен панорамен апартамент, разположен на последен етаж в северната част на Пловдив квартал Гагарин. Жилището впечатлява със спокойна локация, изцяло южно изложение и красива панорамна гледка, които създават усещане за простор, светлина и комфорт.

Апартаментът е изключително светъл и топъл през цялата година, благодарение на южното изложение, което осигурява много естествена светлина и приятен микроклимат.

Разпределение: ОГРОМНА ДНЕВНА НАД 33 кв.м, самостоятелна спалня, кабинет, тераса 13 кв.м с прекрасна гледка, баня с тоалетна.
Имот с инвестиционен потенциал или възможност да притежавате един по-различен дом !
За огледи се обадете на 0879 056 441 - ВЕСЕЛА ПОПОВА
Разгледайте и другите ни актуални оферти на WWW.ARCADIAIMOTI.COM

Приблизителна локация
Връзка с продавача
имоти за продажба без посредник (11340) имоти под наем без посредник (11340) имоти за продажба (11340) имоти под наем (11340) апартаменти под наем без посредник (6703) апартаменти за продажба (6703) апартаменти за продажба без посредник (6703) апартаменти под наем (6703) имоти за продажба в гр. София, Мусагеница без посредник (3268) имоти за продажба в гр. София, ПЗ Илиянци без посредник (3268) имоти за продажба в гр. София, Свобода без посредник (3268) имоти за продажба в гр. София, Горна баня без посредник (3268) имоти за продажба в гр. София, Изгрев без посредник (3268) имоти за продажба в гр. София, Славовци без посредник (3268) имоти за продажба в гр. София, Света Троица без посредник (3268) имоти за продажба в гр. София, Левски Г без посредник (3268) имоти за продажба в гр. София, Горубляне без посредник (3268) имоти за продажба в гр. София, Овча купел без посредник (3268) имоти за продажба в гр. София, м-т Орехите без посредник (3268) имоти за продажба в гр. София, Люлин 7 без посредник (3268) имоти за продажба в гр. София, Илиянци без посредник (3268) имоти за продажба в гр. София, Младост 1А без посредник (3268) имоти за продажба в гр. София, в.з. Беловодски път без посредник (3268) имоти за продажба в гр. София, Полигона без посредник (3268) имоти за продажба в гр. София, Разсадника без посредник (3268) имоти за продажба в гр. София, Подуяне без посредник (3268) имоти за продажба в гр. София, Красна поляна 3 без посредник (3268) имоти за продажба в гр. София, Младост 2 без посредник (3268) имоти за продажба в гр. София, Надежда 4 без посредник (3268) имоти за продажба в гр. София, в.з. Горна баня без посредник (3268) имоти за продажба в гр. София, Надежда 2 без посредник (3268) имоти за продажба в гр. София, в.з. Врана - Герман без посредник (3268) имоти за продажба в гр. София, НПЗ Хаджи Димитър без посредник (3268) имоти за продажба в гр. София, Павлово без посредник (3268) имоти за продажба в гр. София, в.з. Врана - Лозен без посредник (3268) имоти за продажба в гр. София, Суходол без посредник (3268) имоти за продажба в гр. София, Кубратово без посредник (3268) имоти за продажба в гр. София, Борово без посредник (3268) имоти за продажба в гр. София, Драгалевци без посредник (3268) имоти за продажба в гр. София, Белите брези без посредник (3268) имоти за продажба в гр. София, в.з. Драгалевци лифта без посредник (3268) имоти за продажба в гр. София, Илинден без посредник (3268) имоти за продажба в гр. София, Хиподрума без посредник (3268) имоти за продажба в гр. София, Лагера без посредник (3268) имоти за продажба в гр. София, Модерно предградие без посредник (3268) имоти за продажба в гр. София, Гоце Делчев без посредник (3268) имоти за продажба в гр. София, Красна поляна 1 без посредник (3268) имоти за продажба в гр. София, Център без посредник (3268) имоти за продажба в гр. София, Малинова долина без посредник (3268) имоти за продажба в гр. София, Меден рудник - зона Г без посредник (3268)