-6% на пазара

спрямо ≈ 1 453 € /кв.м

195 040 €

1 535 € /кв.м.

Тристаен апартамент с две тераси в Тракия, Пловдив

Продажба Пловдив Тракия Обновена: 14 Апр 2026
127 м²
Тухла
2 бани
4 /10 ет.
2026 г.

Доходност от наем: 3.4% /год. Ниска инвестиционна оценка

Обяви за този имот (1)

195 040 €
1
1 Яну 0001  ·  14 Апр 2026
-6% на пазара (1 535 €/кв.м спрямо 1 453 €/кв.м)
Потенциална годишна доходност: 3.4% (база: ~547 €/мес)
Инвестиционен клас: Ниска

Коментар от imotesa

AI обобщение

Тристаен апартамент с площ 127 кв.м се намира в квартал Тракия, Пловдив. Имотът е част от новоизграждащ се комплекс с очакван завършек през 2026 г.

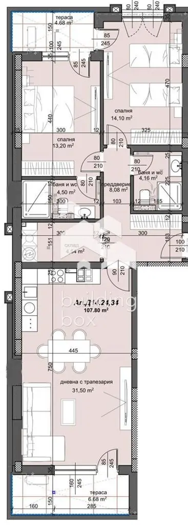
Разпределението включва голяма всекидневна с кухненски бокс, две спални, два санитарни възела, склад и две тераси. Изложението е североизток/югозапад, което осигурява разнообразно дневно осветление.

Сградата е тухлена, с асансьор и контрол на достъпа, като предлага и подземен паркинг. Отоплението е на електричество.

Локацията е удобна, с бърз достъп до ключови булеварди, търговски центрове и голям зелен парк Лаута. В комплекса има фитнес и открит басейн за собствениците.

Имотът е подходящ за хора, търсещи просторен апартамент в сигурна и модерна среда с удобства в близост.

Разпределение

  • всекидневна 31.50
  • спалня 13
  • спалня 14

Предимства

функционално разпределение

две тераси

ново строителство

контрол на достъпа

Недостатъци

Няма налични данни за недостатъци.

Изложение

N S E W
SE, SW
Изложение на имота

Детайли

Площ
127 м²
Стаи
3
Бани
2
Етаж
4 от 10
Строителство
brick
Год. на строителство
2026 г.

Особености

elevator
gated-community
access-control

Описание от продавача

БИЛДИНГ БОКС продава тристаен апартамент на най-добрата локация в град Пловдив!

Предимства на имота:
- ЛОКАЦИЯ: кв. 'Тракия', отлична локация - всичко е на минути:
* Plovdiv Plaza Mall;
* Парк Лаута - 400 000 кв.м зеленина;
* Супермаркети - Lidl, Kaufland;
* Бирария 'Jagerhof';
* Бърз достъп до всички ключови булеварди.
- РАЗПРЕДЕЛЕНИЕ: Състои се от голяма правоъгълна всекидневна с кухненски бокс, с площ от 31,50 кв.м, две спални с площ от 13 кв.м и 14 кв.м, два санитарни възела над 4 кв.м, складово помещение с площ от 4,50 кв.м, антре и две тераси.
- ЕТАЖНОСТ: 4-ти етаж от общо 10.
- ОТОПЛЕНИЕ: Електричество.
- ИЗЛОЖЕНИЕ: СЕВЕРОИЗТОК/ЮГОЗАПАД.
- ПАРКИРАНЕ: Наличен подземен паркинг, като всеки желаещ може да закупи необходим брой паркоместа.
- СГРАДА: Апартаментът се намира в новоизграждащ се комплекс с АКТ 14.
- ЕТАП НА СТРОИТЕЛСТВО: Строителството стартира през м. Януари 2024г. Очакван срок за въвеждане в експлоатация - до края на 2026г.
- ИНВЕСТИТОР: Комплексът се изгражда от инвеститор с голямо портфолио от вече завършени сгради и такива в строеж, които могат да бъдат разгледани като начин на изпълнение, качество, външен вид и стил.
- ДОБАВЕНА СТОЙНОСТ: Единствен бутиков комплекс в района:
* Фитнес в комплекса;
* Открит басейн (само за притежателите на фитнес карта);
* Изключително сигурна, безопасна и ненатоварваща схема на плащане.

БИЛДИНГ БОКС предоставя безплатна консултация и съдействие при финансиране на избрания от Вас имот.

Оферта 23311

Приблизителна локация
Връзка с продавача
имоти за продажба без посредник (11230) имоти под наем без посредник (11230) имоти за продажба (11230) имоти под наем (11230) апартаменти под наем без посредник (6669) апартаменти за продажба (6669) апартаменти за продажба без посредник (6669) апартаменти под наем (6669) имоти за продажба в гр. София, Мусагеница без посредник (3217) имоти за продажба в гр. София, ПЗ Илиянци без посредник (3217) имоти за продажба в гр. София, Свобода без посредник (3217) имоти за продажба в гр. София, Горна баня без посредник (3217) имоти за продажба в гр. София, Изгрев без посредник (3217) имоти за продажба в гр. София, Славовци без посредник (3217) имоти за продажба в гр. София, Света Троица без посредник (3217) имоти за продажба в гр. София, Левски Г без посредник (3217) имоти за продажба в гр. София, Горубляне без посредник (3217) имоти за продажба в гр. София, Овча купел без посредник (3217) имоти за продажба в гр. София, м-т Орехите без посредник (3217) имоти за продажба в гр. София, Люлин 7 без посредник (3217) имоти за продажба в гр. София, Илиянци без посредник (3217) имоти за продажба в гр. София, Младост 1А без посредник (3217) имоти за продажба в гр. София, в.з. Беловодски път без посредник (3217) имоти за продажба в гр. София, Полигона без посредник (3217) имоти за продажба в гр. София, Разсадника без посредник (3217) имоти за продажба в гр. София, Подуяне без посредник (3217) имоти за продажба в гр. София, Красна поляна 3 без посредник (3217) имоти за продажба в гр. София, Младост 2 без посредник (3217) имоти за продажба в гр. София, Надежда 4 без посредник (3217) имоти за продажба в гр. София, в.з. Горна баня без посредник (3217) имоти за продажба в гр. София, Надежда 2 без посредник (3217) имоти за продажба в гр. София, в.з. Врана - Герман без посредник (3217) имоти за продажба в гр. София, НПЗ Хаджи Димитър без посредник (3217) имоти за продажба в гр. София, Павлово без посредник (3217) имоти за продажба в гр. София, в.з. Врана - Лозен без посредник (3217) имоти за продажба в гр. София, Суходол без посредник (3217) имоти за продажба в гр. София, Кубратово без посредник (3217) имоти за продажба в гр. София, Борово без посредник (3217) имоти за продажба в гр. София, Драгалевци без посредник (3217) имоти за продажба в гр. София, Белите брези без посредник (3217) имоти за продажба в гр. София, в.з. Драгалевци лифта без посредник (3217) имоти за продажба в гр. София, Илинден без посредник (3217) имоти за продажба в гр. София, Хиподрума без посредник (3217) имоти за продажба в гр. София, Лагера без посредник (3217) имоти за продажба в гр. София, Модерно предградие без посредник (3217) имоти за продажба в гр. София, Гоце Делчев без посредник (3217) имоти за продажба в гр. София, Красна поляна 1 без посредник (3217) имоти за продажба в гр. София, Център без посредник (3217) имоти за продажба в гр. София, Малинова долина без посредник (3217) имоти за продажба в гр. София, Меден рудник - зона Г без посредник (3217)