-9% на пазара

спрямо ≈ 1 199 € /кв.м

129 155 €

1 304 € /кв.м.

Тристаен апартамент в Пловдив, Прослав

Продажба Пловдив Прослав Обновена: 14 Апр 2026
99 м²
Тухла
2 /4 ет.
2027 г.
-9% на пазара (1 304 €/кв.м спрямо 1 199 €/кв.м)

Детайли

Площ
99 м²
Стаи
3
Етаж
2 от 4
Строителство
brick
Год. на строителство
2027 г.

Особености

elevator
parking

Описание от продавача

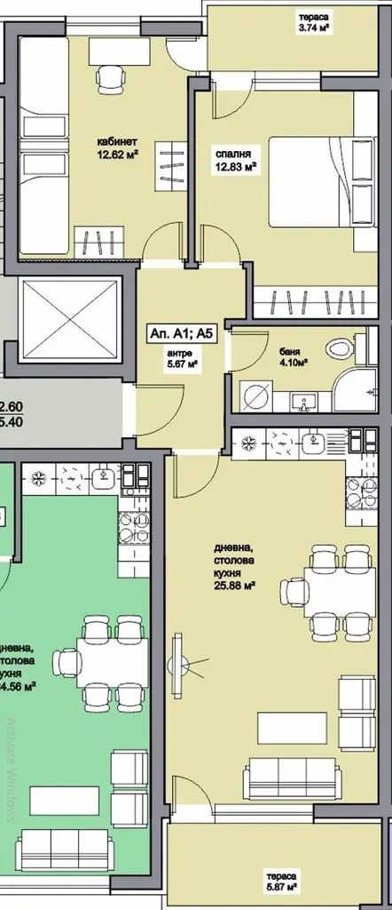
Титан Пропъртис има удоволствието да Ви представи тристаен апартамент в новострояща се, жилищна сграда, в кв. Прослав.
В близост са разположени търговски обекти, детски градини, училище,спирки на автобуси.

Апартаментът е ситуиран на 2-ри от 4-ти жилищен етаж и разполага с площ от 99 кв.м., разгърната по следния практичен начин: Входно антре, дневна с кухненски бокс, две спални, баня с тоалетна, две тераси и склад. Изложение: Север/Юг. Сградата разполага с асансьор.
Жилището се предлага на шпакловка и замазка!
Има възможност за закупуване на паркомясто на цена 15 000 евро.

За оглед на това и други атрактивни предложения, не се колебайте да ни потърсите на посочения телефон или да ни изпратите данните си чрез формата за запитване на сайта.
Референтен номер: 1152

Приблизителна локация
Връзка с продавача