-28% под пазара Продажба

Тристаен апартамент в Пловдив, Кършияка

Пловдив Кършияка
Публикувано: 14 Яну 2026 · Обновено: 9 Апр 2026
Продажба 157 670 € 1 094 €/кв.м
Очакван наем 641 €/мес
Площ
144 м²
Строителство
Тухла
Година
2027
AI Анализ на доходността 4.9% / г.
Средна инвестиционна оценка · ~641 €/мес наем при пазарни условия

Детайли

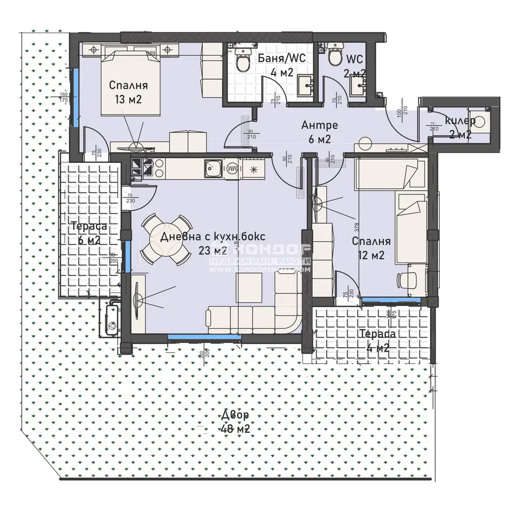
Площ144 м²
Стаи3
СтроителствоТухла
Год. на строителство2027 г.

Описание от продавача

Оферта 68499 - Бутиков затворен жилищен комплекс с модерна и устойчива архитектура, потопена в богато озеленени площи, вдъхващи на живущите комфорт и спокойствие. Комплекса предлага просторна спокойна среда с бърз достъп до центъра на града, както и възлови булеварди. Предлагаме ви тристаен апартамент, състои се от дневна с трапезария и кухненска част, две самостоятелни спални, баня с тоалетна, втора тоалетна, входно антре с място за перално, веранда и озеленен двор. В близост са ситуирани ресторанти, хипермаркети, училища и детски градини. Ще бъдат изградени луксозни общи части с предоставено облагородено дворно място, пейки за отдих и детски площадки за игра.

Апартаментите ще бъдат издадени на:

Стени и тавани гипсова мазилка.

Под - циментова замазка.

Под в санитарни помещение циментова замазка.

Стени в санитарни помещения вароциментова мазилка.

Тераси /под/ - мразоустойчив гранитогрес.

Входни врати на апартаменти блиндирани.

Приблизителна локация