+13% над пазара

спрямо ≈ 1 290 € /кв.м

138 680 €

1 459 € /кв.м.

Просторен 3-стаен апартамент с двор в Остромила, Пловдив

Продажба Пловдив Остромила Обновена: 14 Апр 2026
95 м²
Тухла
1 /3 ет.
2027 г.

Доходност от наем: 5.4% /год. Средна инвестиционна оценка

+13% над пазара (1 459 €/кв.м спрямо 1 290 €/кв.м)
Потенциална годишна доходност: 5.4% (база: ~630 €/мес)
Инвестиционен клас: Средна

Коментар от imotesa

AI обобщение

Предлаганият имот е тристаен апартамент в град Пловдив, квартал Остромила, разположен на първи етаж в нова тухлена сграда с три етажа. Локацията е сред добре развита инфраструктура с асфалтов път и съседство на нискоетажни сгради и къщи.

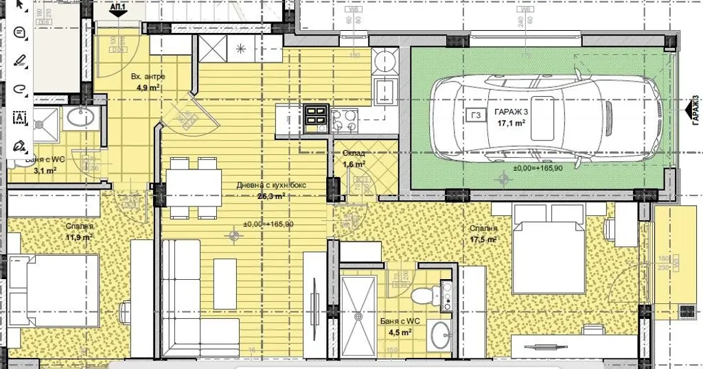
Разпределението включва просторна всекидневна с кухненски бокс от 26 кв.м, две спални (17 и 12 кв.м), входно антре, склад, мокро помещение и две бани с тоалетни. Към апартамента има и двор с площ 70 кв.м, което добавя удобство и възможност за отдих на открито.

Сградата е част от бутиков комплекс с ниска плътност на апартаментите, което обещава по-спокойна атмосфера. Строителството е тухлено и се очаква да бъде завършено през 2027 г. Отоплението е на електричество.

В близост има възможности за закупуване на паркоместа и гаражи. Кварталът предлага удобства и спокойствие, подходящи за семейства или хора, търсещи по-спокойна градска среда.

Имотът е подходящ за тези, които търсят простор и собствен двор в нова сграда с добра локация и инфраструктура.

Разпределение

  • всекидневна с кухненски бокс 26 кв.м
  • спалня 17 кв.м
  • втора спалня 12 кв.м
  • входно антре
  • склад
  • мокро помещение

Предимства

просторен двор

функционално разпределение

нова тухлена сграда

добра инфраструктура

Недостатъци

първи етаж

отопление на електричество

начален етап на строителство

Изложение

N S E W
Югозапад
Изложение на имота

Детайли

Площ
95 м²
Стаи
3
Етаж
1 от 3
Строителство
brick
Год. на строителство
2027 г.

Особености

elevator

Описание от продавача

Титан Пропъртис има удоволствието да Ви представи тристаен апартамент, разположен в търсения район Остромила, в новостроящ се комплекс от три сгради.

Характерно за района е ниското и добре планирано строителство, тишина, чист въздух, панорама към Родопите, даващи спокойствие и уединеност.

Имотът разполага с площ от 95 кв.м., разпределена по следния начин: Входно антре, дневна с кухненски бокс, две спални, каъо едната е с баня и тоалетна, тераса и двор.
Отопление - електичество.
Има възможност за закупуване на гараж на цени от 24 000 до 25 000евро в зависимост от квадратурите; паркоместата са на стйност от 11 000 до 12 000евро.

Този апартамент се предлага на шпакловка и замазка и е идеален за хора, които търсят съвременен начин на живот в спокойна и зелена обстановка!

За оглед на това и други атрактивни предложения, не се колебайте да ни потърсите на посочения телефон или да ни изпратите данните си чрез формата за запитване на сайта.
Референтен номер: 82131

Приблизителна локация
Връзка с продавача