-2% на пазара

спрямо ≈ 1 261 € /кв.м

118 000 €

1 282 € /кв.м.

Тристаен апартамент с тераса в Коматево, Пловдив

Продажба Пловдив Коматево Обновена: 15 Апр 2026
92 м²
Тухла
3 стаи
3 /5 ет.
2025 г.

Обяви за този имот (1)

118 000 €
1
1 Яну 0001  ·  15 Апр 2026
-2% на пазара (1 282 €/кв.м спрямо 1 261 €/кв.м)

Коментар от imotesa

AI обобщение

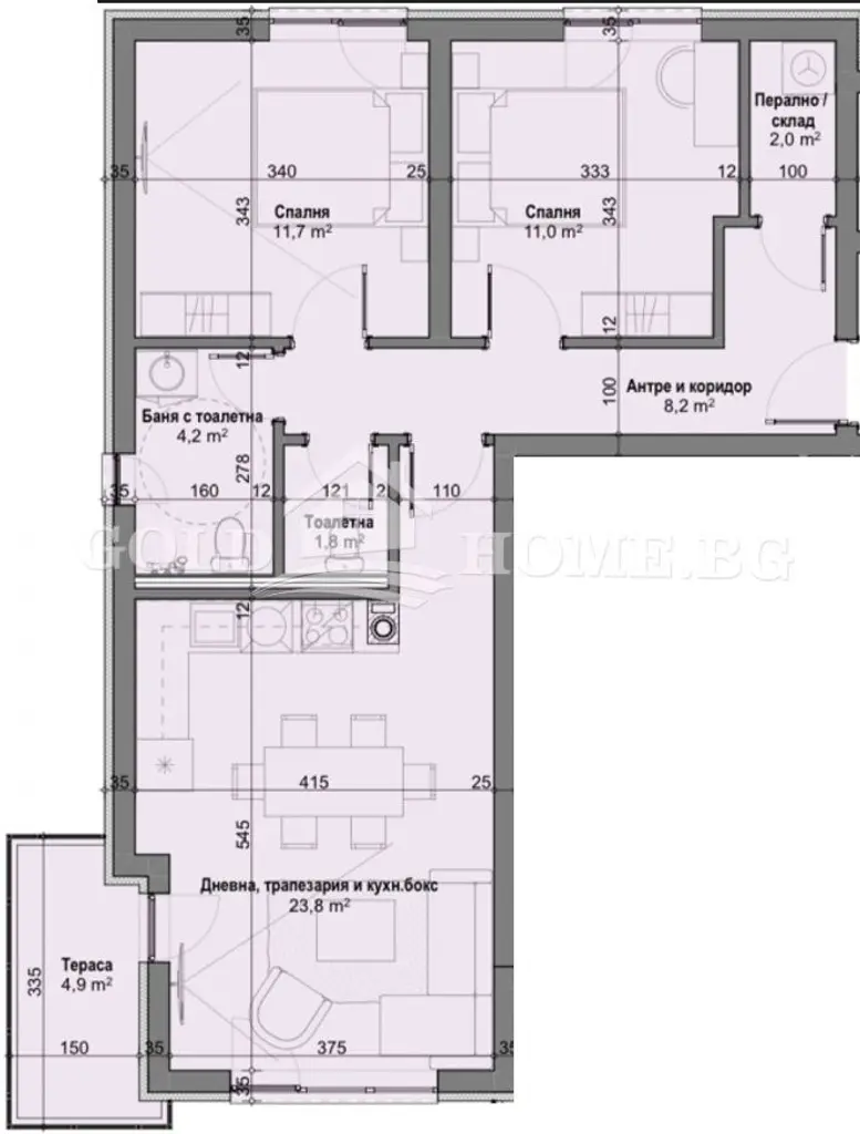
Тристаен апартамент с площ 92 кв.м, разположен на 3-ти етаж в нова сграда в квартал Коматево, Пловдив.

Жилището включва входно антре, всекидневна с трапезария и кухненски бокс, две спални, баня с тоалетна, отделна тоалетна, перално помещение и тераса с южно изложение.

Сградата е тухлена, строителството е от 2025 г., с предвидени асансьор и паркинг, а апартаментът ще бъде завършен по БДС с шпакловка, замазка, ел. инсталация до ключ и ПВЦ дограма.

Локацията предлага удобен достъп до детска градина, хранителни магазини и други услуги в квартала.

Имотът е подходящ за семейства, търсещи функционално разпределение и съвременни удобства в спокойна градска среда.

Разпределение

  • входно антре
  • всекидневна с трапезария и кухненски бокс
  • спалня
  • спалня
  • баня с тоалетна
  • отделна тоалетна
  • перално помещение
  • тераса

Предимства

южно изложение

ново строителство

асансьор и паркинг

функционално разпределение

Недостатъци

Няма налични данни за недостатъци.

Изложение

N S E W
S
Изложение на имота

Детайли

Площ
92 м²
Стаи
3
Етаж
3 от 5
Строителство
brick
Год. на строителство
2025 г.

Особености

elevator
parking
internet
access-control

Описание от продавача

🔈БЕЗ КОМИСИОН ДИРЕКТНО ОТ ИНВЕСТИТОР! 💥 Оферта:13816
● Агенция за недвижими имоти 'ГОЛД ИМОТИ' има удоволствието да Ви представи тристаен апартамент с АКТ 14 в кв.Коматево.
● Новостроящ се комплекс състоящ се от три малки сгради.

✔️ Жилището се състои от:
Входно антре, всекидневна с трапезария и кухненски бокс, две спални, баня с тоалетна, отделна тоалетна, перално помещение и тераса.

☀️ Изложение:
Южно изложение

📍 Степен на завършеност:
Апартаментът ще бъде издаден спрямо БДС - на шпакловка и замазка, ел. инсталация до ключ, ВиК до тапа, вътрешни интериорни врати, външна блиндирана врата и ПВЦ дограма.

📍 За строителството:
Строителството на сградите се изпълнява от познат и доказан инвеститор в бранша.

📑 Срокове на изпълнение:
Към момента сградата е с АКТ 14, АКТ 16 се очаква в края на 2025г.

🎯Схеми на плащане:
Разсрочени схеми на плащане

🚘 Паркиране:
Има възможност за закупуване на паркоместа.

📍Локация:
Намира се в близост ДГ 'Ралица', няколко хранителни магазина, Копирен център и др.

➡️ ГОЛД ИМОТИ Ви предлага да се възползвате от професионално кредитно посредничество чрез Credit Center при ипотека, потребителски кредит и рефинансиране!
-УСЛУГАТА Е ИЗЦЯЛО БЕЗПЛАТНА!
-ИЗГОТВЯНЕ НА НЯКОЛКО ОФЕРТИ ОТ ВОДЕЩИ БАНКИ!
-НАЙ-ИЗГОДНИ УСЛОВИЯ СПРЯМО ВАШИЯТ ПРОФИЛ!
-НЕ Е НЕОБХОДИМО ДА СЕ РАЗКАРВАТЕ ВЪВ ВСЕКИ КЛОН НА РАЗЛИЧНИ БАНКИ!
➡️ Още атрактивни и актуални оферти може да разгледате на нашият сайт: www.goldhome.bg
📞 За повече информация и при интерес за оглед, моля свържете се с нас!

Приблизителна локация
Връзка с продавача
имоти за продажба без посредник (11265) имоти под наем без посредник (11265) имоти за продажба (11265) имоти под наем (11265) апартаменти под наем без посредник (6684) апартаменти за продажба (6684) апартаменти за продажба без посредник (6684) апартаменти под наем (6684) имоти за продажба в гр. София, Мусагеница без посредник (3225) имоти за продажба в гр. София, ПЗ Илиянци без посредник (3225) имоти за продажба в гр. София, Свобода без посредник (3225) имоти за продажба в гр. София, Горна баня без посредник (3225) имоти за продажба в гр. София, Изгрев без посредник (3225) имоти за продажба в гр. София, Славовци без посредник (3225) имоти за продажба в гр. София, Света Троица без посредник (3225) имоти за продажба в гр. София, Левски Г без посредник (3225) имоти за продажба в гр. София, Горубляне без посредник (3225) имоти за продажба в гр. София, Овча купел без посредник (3225) имоти за продажба в гр. София, м-т Орехите без посредник (3225) имоти за продажба в гр. София, Люлин 7 без посредник (3225) имоти за продажба в гр. София, Илиянци без посредник (3225) имоти за продажба в гр. София, Младост 1А без посредник (3225) имоти за продажба в гр. София, в.з. Беловодски път без посредник (3225) имоти за продажба в гр. София, Полигона без посредник (3225) имоти за продажба в гр. София, Разсадника без посредник (3225) имоти за продажба в гр. София, Подуяне без посредник (3225) имоти за продажба в гр. София, Красна поляна 3 без посредник (3225) имоти за продажба в гр. София, Младост 2 без посредник (3225) имоти за продажба в гр. София, Надежда 4 без посредник (3225) имоти за продажба в гр. София, в.з. Горна баня без посредник (3225) имоти за продажба в гр. София, Надежда 2 без посредник (3225) имоти за продажба в гр. София, в.з. Врана - Герман без посредник (3225) имоти за продажба в гр. София, НПЗ Хаджи Димитър без посредник (3225) имоти за продажба в гр. София, Павлово без посредник (3225) имоти за продажба в гр. София, в.з. Врана - Лозен без посредник (3225) имоти за продажба в гр. София, Суходол без посредник (3225) имоти за продажба в гр. София, Кубратово без посредник (3225) имоти за продажба в гр. София, Борово без посредник (3225) имоти за продажба в гр. София, Драгалевци без посредник (3225) имоти за продажба в гр. София, Белите брези без посредник (3225) имоти за продажба в гр. София, в.з. Драгалевци лифта без посредник (3225) имоти за продажба в гр. София, Илинден без посредник (3225) имоти за продажба в гр. София, Хиподрума без посредник (3225) имоти за продажба в гр. София, Лагера без посредник (3225) имоти за продажба в гр. София, Модерно предградие без посредник (3225) имоти за продажба в гр. София, Гоце Делчев без посредник (3225) имоти за продажба в гр. София, Красна поляна 1 без посредник (3225) имоти за продажба в гр. София, Център без посредник (3225) имоти за продажба в гр. София, Малинова долина без посредник (3225) имоти за продажба в гр. София, Меден рудник - зона Г без посредник (3225)