-4% на пазара

спрямо ≈ 1 538 € /кв.м

148 590 €

1 597 € /кв.м.

Тристайен апартамент с модерна архитектура в Христо Смирненски, Пловдив

Продажба Пловдив Христо Смирненски Обновена: 15 Апр 2026
93 м²
Тухла
3 стаи
6 /10 ет.
2027 г.

Доходност от наем: 5.4% /год. Средна инвестиционна оценка

Обяви за този имот (1)

148 590 €
1
1 Яну 0001  ·  15 Апр 2026
-4% на пазара (1 597 €/кв.м спрямо 1 538 €/кв.м)
Потенциална годишна доходност: 5.4% (база: ~673 €/мес)
Инвестиционен клас: Средна

Коментар от imotesa

AI обобщение

Предлаганият тристаен апартамент е част от новострояща се сграда в квартал Христо Смирненски, Пловдив, с очакван завършек в края на 2027 г. Жилището е с площ от около 93 кв.м и разполага с функционално разпределение: входно антре, всекидневна с кухненски бокс, две спални, баня с тоалетна и тераса. Строителството е тухлено с монолитна конструкция и висококачествени материали като тухли Wienerberger и топлоизолационна система Baumit. Сградата предлага съвременен дизайн с изчистена фасада и озеленени общи части, включително вътрешен двор и покривни тераси. За сигурност са предвидени контрол на достъпа и видеонаблюдение. Жилището се издава по БДС с шпакловка, замазка, ел. инсталация до ключ, ВиК до тапа и висок клас ПВЦ дограма. Локацията е удобна, близо до големи паркове, търговски вериги и медицински заведения, което осигурява добър баланс между градски живот и зеленина.

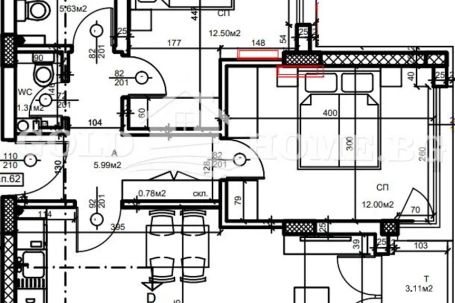
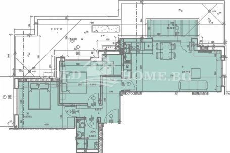
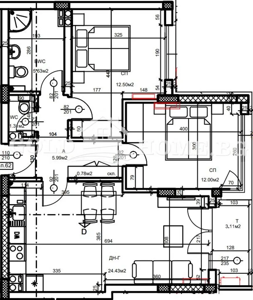
Разпределение

  • входно антре
  • всекидневна стая с кухненски бокс
  • две спални
  • баня с тоалетна
  • тераса

Предимства

функционално разпределение

висококачествени материали

близо до голям парк

контрол на достъпа

Недостатъци

строителство в процес

шестоетажен

Детайли

Площ
93 м²
Стаи
3
Етаж
6 от 10
Строителство
brick
Год. на строителство
2027 г.

Особености

elevator
parking
internet
access-control

Описание от продавача

💎 БЕЗ КОМИСИОН КЪМ АГЕНЦИЯТА! - ДИРЕКТНО ОТ ИНВЕСТИТОР! 📢 ОФЕРТА: 12797
-'ГОЛД ИМОТИ' Ви представя новострояща се сграда намираща се в кв. Христо Смирненски, в непросредствена близост до АГ 'Селена'.
-Сградата предлага възможност за живот в дом, който отговаря на всички съвременни стандарти за комфорт, качество и енергийна ефективност.

🎯Видове апартаменти :
Предлагаме Ви двустайни, тристайни и четиристайни апартаменти с функционални разпределения.

🌆 Разпределение
Тристайните жилища се състоят от: входно антре, всекидневна стая с кухненски бокс, две спални, баня с тоалетна и тераса.

◉ Налични модули:
- 92,87 кв.м - 148 590 евро
- 96,37кв.м - 154 192 евро
- 102,4 кв.м - 163 840 евро
-114,04 кв.м - 182 464 евро
-115,48кв.м - 184 768 евро
-131,9 кв.м - 211 040 евро

✨ Предимства и характеристики на сградата:
- Проектът съчетава вътрешния уют и характер с модерна и елегантна архитектура.
- Външната архитектура на сградата се характеризира с изчистен и изискан стил.
- Вътрешният двор и покривните тераси са озеленени с разнообразна растителност и дървесни видове, подбрани според климатичните особености и изложението на района
- За сигурност на живущите ще бъде вградена система за контролиран достъп и видеонаблюдение.

◆ За изграждане на сградата са използвани само висококачествени материали:
- Конструкцията на сградата е монолитна, скелетно безгредова с тухлени неносещи стени
- Външна топлоизолационна система от Baumit
- Външните и вътрешни преградни стени се изграждат с тухли Wienerberger
- Фасадна външна мазилка в естествени цветове и облицовки от камък.

✔️ За строителя:
- Проектът се изпълнява от водеща строителна фирма с редица изпълнени обекти.
- Качеството на изпълнение е високо, безкомпромисно и това личи по вече построените сгради на инвеститора.

✔️Степен на завършеност :
Жилищата се издават по БДС: шпакловка и замазка, ел. инсталация до ключ, ВиК до тапа, висок клас ПВЦ дограма и външна блиндирана врата.

✔️Етап на строителство:
Към момента строителството е на етап среда на строеж. Пусков срок: края на 2027г.

💰Схема на плащане:
35% при подписване на предварителен договор, 55% на АКТ 14, 10% на АКТ 16.

🚗Паркиране:
Има възможност за закупуване на паркоместа и гаражи.

🎯 Локация:
- Намира се в близост до един от най-големите паркове в града '' Отдих и култура'' , ''Гребна база'' , големи търговски вериги, медицински заведения, търговски обекти и всичко необходимо на една ръка разстояние!
- Районът е предпочитан както инвестиционно, така и за живеене.

➡️'ГОЛД ИМОТИ' Ви предлага да се възползвате от професионално кредитно посредничество чрез Credit Center при ипотека, потребителски кредит и рефинансиране!
-УСЛУГАТА Е ИЗЦЯЛО БЕЗПЛАТНА!
-ИЗГОТВЯНЕ НА НЯКОЛКО ОФЕРТИ ОТ ВОДЕЩИ БАНКИ!
-НАЙ-ИЗГОДНИ УСЛОВИЯ СПРЯМО ВАШИЯТ ПРОФИЛ!
-НЕ Е НЕОБХОДИМО ДА СЕ РАЗКАРВАТЕ ВЪВ ВСЕКИ КЛОН НА РАЗЛИЧНИ БАНКИ!
➡️ Още атрактивни оферти може да намерите на нашия сайт goldhome.bg
📞За повече информация и при интерес за оглед, моля свържете се с нас.

Приблизителна локация
Връзка с продавача
имоти за продажба без посредник (11265) имоти под наем без посредник (11265) имоти за продажба (11265) имоти под наем (11265) апартаменти под наем без посредник (6684) апартаменти за продажба (6684) апартаменти за продажба без посредник (6684) апартаменти под наем (6684) имоти за продажба в гр. София, Мусагеница без посредник (3225) имоти за продажба в гр. София, ПЗ Илиянци без посредник (3225) имоти за продажба в гр. София, Свобода без посредник (3225) имоти за продажба в гр. София, Горна баня без посредник (3225) имоти за продажба в гр. София, Изгрев без посредник (3225) имоти за продажба в гр. София, Славовци без посредник (3225) имоти за продажба в гр. София, Света Троица без посредник (3225) имоти за продажба в гр. София, Левски Г без посредник (3225) имоти за продажба в гр. София, Горубляне без посредник (3225) имоти за продажба в гр. София, Овча купел без посредник (3225) имоти за продажба в гр. София, м-т Орехите без посредник (3225) имоти за продажба в гр. София, Люлин 7 без посредник (3225) имоти за продажба в гр. София, Илиянци без посредник (3225) имоти за продажба в гр. София, Младост 1А без посредник (3225) имоти за продажба в гр. София, в.з. Беловодски път без посредник (3225) имоти за продажба в гр. София, Полигона без посредник (3225) имоти за продажба в гр. София, Разсадника без посредник (3225) имоти за продажба в гр. София, Подуяне без посредник (3225) имоти за продажба в гр. София, Красна поляна 3 без посредник (3225) имоти за продажба в гр. София, Младост 2 без посредник (3225) имоти за продажба в гр. София, Надежда 4 без посредник (3225) имоти за продажба в гр. София, в.з. Горна баня без посредник (3225) имоти за продажба в гр. София, Надежда 2 без посредник (3225) имоти за продажба в гр. София, в.з. Врана - Герман без посредник (3225) имоти за продажба в гр. София, НПЗ Хаджи Димитър без посредник (3225) имоти за продажба в гр. София, Павлово без посредник (3225) имоти за продажба в гр. София, в.з. Врана - Лозен без посредник (3225) имоти за продажба в гр. София, Суходол без посредник (3225) имоти за продажба в гр. София, Кубратово без посредник (3225) имоти за продажба в гр. София, Борово без посредник (3225) имоти за продажба в гр. София, Драгалевци без посредник (3225) имоти за продажба в гр. София, Белите брези без посредник (3225) имоти за продажба в гр. София, в.з. Драгалевци лифта без посредник (3225) имоти за продажба в гр. София, Илинден без посредник (3225) имоти за продажба в гр. София, Хиподрума без посредник (3225) имоти за продажба в гр. София, Лагера без посредник (3225) имоти за продажба в гр. София, Модерно предградие без посредник (3225) имоти за продажба в гр. София, Гоце Делчев без посредник (3225) имоти за продажба в гр. София, Красна поляна 1 без посредник (3225) имоти за продажба в гр. София, Център без посредник (3225) имоти за продажба в гр. София, Малинова долина без посредник (3225) имоти за продажба в гр. София, Меден рудник - зона Г без посредник (3225)