-4% на пазара

спрямо ≈ 1 538 € /кв.м

135 310 €

1 591 € /кв.м.

Тристаен апартамент в Пловдив, Христо Смирненски

Продажба Пловдив Христо Смирненски Обновена: 15 Апр 2026
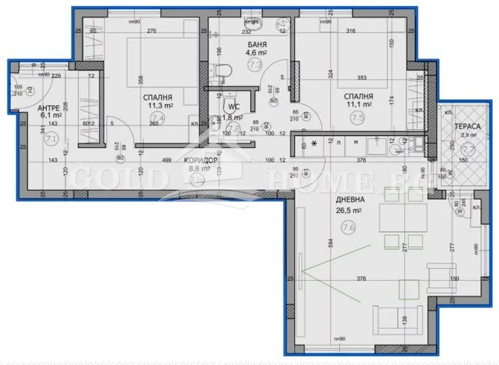
85 м²
Тухла
3 стаи
6 /6 ет.
2027 г.

Доходност от наем: 6.0% /год. Средна инвестиционна оценка

Обяви за този имот (1)

135 310 €
1
1 Яну 0001  ·  15 Апр 2026
-4% на пазара (1 591 €/кв.м спрямо 1 538 €/кв.м)
Потенциална годишна доходност: 6.0% (база: ~673 €/мес)
Инвестиционен клас: Средна

Детайли

Площ
85 м²
Стаи
3
Етаж
6 от 6
Строителство
brick
Год. на строителство
2027 г.

Особености

elevator
parking
internet
access-control

Описание от продавача

📢ЦЕНИ ДИРЕКТНО ОТ ИНВЕСТИТОР - БЕЗ КОМИСИОН ОТ КУПУВАЧА ! 📢 ОФЕРТА : 16217
➢ Промоционална схема на плащане: Платете 30 % сега, остатъка на АКТ14, с възможност за ипотечен кредит.

- Имаме удоволствието да Ви представим нов модерен проект, създаден с вдъхновение за съвременен и удобен начин на живот.
- Сградата се отличава с ниско строителство, елегантна визия и функционални апартаменти.

➡️Разпределения :
Тристайни :
-Коридор, дневна с трапезария и кухненски бокс, две спални, баня с тоалетна, отделна тоалетна и тераса.

Налични различни модули и етажни разположения подходящи както за собствено ползване, така и за инвестиция с отлична възвращаемост поради добрата си локация.
- 85,10 кв. м - 135 310 евро
- 90,13 кв.м - 143 306 евро
- 110,19 кв.м - 170 794 евро
- 112,40 кв.м - 168 600 евро
- 124,29 кв.м - 190 164 евро

🏗️ За инвеститора:
- Проектът се реализира от доказан инвеститор с дългогодишен опит на пазара на недвижими имоти в Пловдив, специализиран в изграждането на качествени нискоетажни жилищни сгради, отличаващи се с високо ниво на детайл и стилна архитектура.

✔️ Степен на завършеност:
-Стени и тавани гипсова мазилка
-Подове циментова замазка
-PVC дограма от висок клас с четирисезонен стъклопакет
-Тераси гранитогрес и стъклени парапети
-Входни врати блиндирани
-Изградени ел. и ВиК инсталации до тапа, с монтирани ключове и контакти
-Общи части: луксозно изпълнение с гранит и мрамор по дизайнерски проект
-Фасада: висок клас материали еталбонд (вкл. перфориран), PU детайли, топлоизолация Baumit и зидария Wienerberger
🅿️ Паркиране:
На разположение са подземни гаражи с топла връзка към сградата, както и надземни паркоместа за максимално удобство на собствениците.

📅 Срок на изпълнение:
Акт 14: до края на 2025 г.
Акт 16: до средата на 2027 г.

📍 Локация:
- Сградата е разположена в един от най-търсените и престижни райони на Пловдив кв. Христо Смирненски, в непосредствена близост до Математическа гимназия Акад. Кирил Попов , учебни заведения, търговски обекти и градски транспорт. Районът съчетава удобство, спокойствие и отлична инфраструктура, което го прави идеален както за живеене, така и за инвестиция.

➡️'ГОЛД ИМОТИ' Ви предлага, да се възползвате от професионално кредитно посредничество чрез Credit Center при ипотека, потребителски кредит и рефинансиране!
-УСЛУГАТА Е ИЗЦЯЛО БЕЗПЛАТНА!
-ИЗГОТВЯНЕ НА НЯКОЛКО ОФЕРТИ ОТ ВОДЕЩИ БАНКИ!
-НАЙ-ИЗГОДНИ УСЛОВИЯ СПРЯМО ВАШИЯТ ПРОФИЛ!
-НЕ Е НЕОБХОДИМО ДА СЕ РАЗКАРВАТЕ ВЪВ ВСЕКИ КЛОН НА РАЗЛИЧНИ БАНКИ!
➡️ Още атрактивни и актуални оферти може да разгледате на нашият сайт : goldhome.bg
➡️ За повече информация и при интерес за оглед, моля свържете се с нас!

Приблизителна локация
Връзка с продавача
имоти за продажба без посредник (11265) имоти под наем без посредник (11265) имоти за продажба (11265) имоти под наем (11265) апартаменти под наем без посредник (6684) апартаменти за продажба (6684) апартаменти за продажба без посредник (6684) апартаменти под наем (6684) имоти за продажба в гр. София, Мусагеница без посредник (3225) имоти за продажба в гр. София, ПЗ Илиянци без посредник (3225) имоти за продажба в гр. София, Свобода без посредник (3225) имоти за продажба в гр. София, Горна баня без посредник (3225) имоти за продажба в гр. София, Изгрев без посредник (3225) имоти за продажба в гр. София, Славовци без посредник (3225) имоти за продажба в гр. София, Света Троица без посредник (3225) имоти за продажба в гр. София, Левски Г без посредник (3225) имоти за продажба в гр. София, Горубляне без посредник (3225) имоти за продажба в гр. София, Овча купел без посредник (3225) имоти за продажба в гр. София, м-т Орехите без посредник (3225) имоти за продажба в гр. София, Люлин 7 без посредник (3225) имоти за продажба в гр. София, Илиянци без посредник (3225) имоти за продажба в гр. София, Младост 1А без посредник (3225) имоти за продажба в гр. София, в.з. Беловодски път без посредник (3225) имоти за продажба в гр. София, Полигона без посредник (3225) имоти за продажба в гр. София, Разсадника без посредник (3225) имоти за продажба в гр. София, Подуяне без посредник (3225) имоти за продажба в гр. София, Красна поляна 3 без посредник (3225) имоти за продажба в гр. София, Младост 2 без посредник (3225) имоти за продажба в гр. София, Надежда 4 без посредник (3225) имоти за продажба в гр. София, в.з. Горна баня без посредник (3225) имоти за продажба в гр. София, Надежда 2 без посредник (3225) имоти за продажба в гр. София, в.з. Врана - Герман без посредник (3225) имоти за продажба в гр. София, НПЗ Хаджи Димитър без посредник (3225) имоти за продажба в гр. София, Павлово без посредник (3225) имоти за продажба в гр. София, в.з. Врана - Лозен без посредник (3225) имоти за продажба в гр. София, Суходол без посредник (3225) имоти за продажба в гр. София, Кубратово без посредник (3225) имоти за продажба в гр. София, Борово без посредник (3225) имоти за продажба в гр. София, Драгалевци без посредник (3225) имоти за продажба в гр. София, Белите брези без посредник (3225) имоти за продажба в гр. София, в.з. Драгалевци лифта без посредник (3225) имоти за продажба в гр. София, Илинден без посредник (3225) имоти за продажба в гр. София, Хиподрума без посредник (3225) имоти за продажба в гр. София, Лагера без посредник (3225) имоти за продажба в гр. София, Модерно предградие без посредник (3225) имоти за продажба в гр. София, Гоце Делчев без посредник (3225) имоти за продажба в гр. София, Красна поляна 1 без посредник (3225) имоти за продажба в гр. София, Център без посредник (3225) имоти за продажба в гр. София, Малинова долина без посредник (3225) имоти за продажба в гр. София, Меден рудник - зона Г без посредник (3225)