-0% на пазара

спрямо ≈ 1 155 € /кв.м

141 000 €

1 155 € /кв.м.

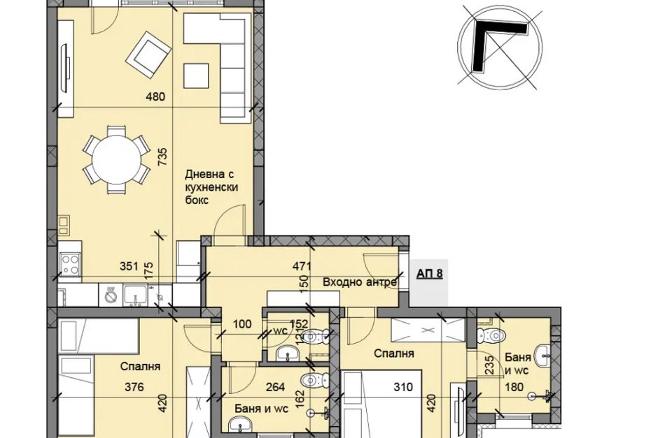
Тристаен апартамент в Пловдив, Беломорски

Продажба Пловдив Беломорски Обновена: 9 Апр 2026
122 м²
Тухла
3 /5 ет.
2026 г.
-0% на пазара (1 155 €/кв.м спрямо 1 155 €/кв.м)

Детайли

Площ
122 м²
Стаи
3
Етаж
3 от 5
Строителство
brick
Год. на строителство
2026 г.

Особености

elevator
access-control
renovated
gated-community

Описание от продавача

С АКТ 14!!! ДИРЕКТНО ОТ ИНВЕСТИТОРА!!! Предлагаме просторен тристаен апартамент N 8 в Секция А(същият апартамент се предлага и в секция Г) 'Южни къщи 18' с жилищна площ 110,73 кв.м., които са разпределни между прекрасна дневна с кухненски бокс, две спални, две бани с тоалетни, отделна тоалетна и две тераси. Към апартамента се продават по избор изба, гараж/паркомясто с отделна цена, полагаемите се общи части от сградата и прилежащата към имотите земя. Комплексът е от затворен и се състои от четири секции. Секция А е с четири жилищни етажа по четири апртамента на етаж. Управлението на комплекса ще се осъществява по начин избран от собствениците, т.е. няма предварително фиксирани такси и ангажименти за бъдещите собственици.
За повече инфромация и огледи се свържете с Мениджър продажби на тел. 0883 90 90 60

Приблизителна локация
Връзка с продавача