-8% на пазара

спрямо ≈ 1 505 € /кв.м

114 900 €

1 618 € /кв.м.

Двустаен апартамент в Тракия, Пловдив с тераса и зелени площи

Продажба Пловдив Тракия Обновена: 15 Апр 2026
71 м²
Тухла
2 стаи
2026 г.

Доходност от наем: 5.2% /год. Средна инвестиционна оценка

Обяви за този имот (1)

114 900 €
1
1 Яну 0001  ·  15 Апр 2026
-8% на пазара (1 618 €/кв.м спрямо 1 505 €/кв.м)
Потенциална годишна доходност: 5.2% (база: ~501 €/мес)
Инвестиционен клас: Средна

Коментар от imotesa

AI обобщение

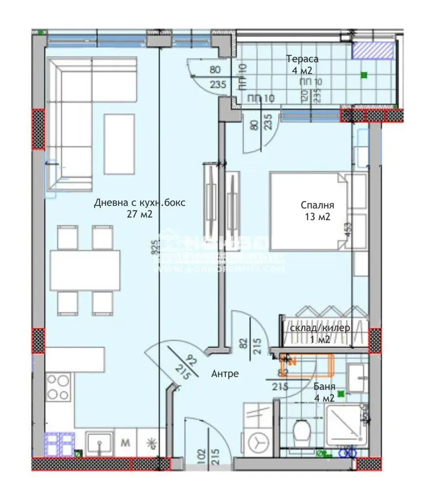
Двустаен апартамент в град Пловдив, квартал Тракия, част от нов жилищен комплекс.

Разпределението включва дневна с трапезария и кухненски бокс (27 кв.м.), самостоятелна спалня (13 кв.м.), баня с тоалетна, антре с място за гардероб, килер/перално помещение и тераса, обща за двете стаи.

Сградата е с тухлено строителство от 2026 г., като са използвани материали от висок клас и се предвижда изграждане на видеонаблюдение и контрол на достъпа.

Комплексът е разположен в добре развита инфраструктура с близост до детски градини, училища, паркове и обществения транспорт, с голям вътрешен озеленен двор с детски площадки и фитнес зони.

Имотът е подходящ за хора, търсещи функционално жилище с удобства в централната част на квартал Тракия.

Разпределение

  • дневна с трапезария и кухненски бокс 27кв.м.
  • спалня 13кв.м.

Предимства

функционално разпределение

нова сграда

тераса

зелени площи

Недостатъци

Няма налични данни за недостатъци.

Детайли

Площ
71 м²
Стаи
2
Бани
1
Строителство
brick
Год. на строителство
2026 г.

Описание от продавача

Оферта 67967 - Предлагаме ви възможността да закупите вътрешен двустаен апартамент в един от най-обещаващите проекти за Жилищен комплекс в квартал Тракия, проектиран през последните години. Жилището се състои от дневна с трапезария и кухненски бокс - 27кв.м., самостоятелна спалня 13кв.м., баня с тоалетна, входно антре с място за гардероб, килер/перално помещение и една тераса обща за двете стаи. При проектирането е заложено на функционални жилища с просторни стаи, високо качество на изпълнение с материали от най-висок клас, като обектът се изпълнява от една от наложилите се на пазара строителни компании с безупречен имидж. Комплексът е разположен е в самото сърце на кв. Тракия, който е с най-добре развита инфраструктура, в непосредствена близост до детски градини, училища, паркове, обществен транспорт и бърз и лесен достъп към централната част на града. Комплексът разполага с внушителните 13 700м2 вътрешен озеленен двор, в който има детски площадки, стрийт фитнес и зони за отдих. Паркоместата са обезпечени на 100%, има изградени системи за видеонаблюдение и контрол на достъп. В

Приблизителна локация
Връзка с продавача
имоти за продажба без посредник (11265) имоти под наем без посредник (11265) имоти за продажба (11265) имоти под наем (11265) апартаменти под наем без посредник (6684) апартаменти за продажба (6684) апартаменти за продажба без посредник (6684) апартаменти под наем (6684) имоти за продажба в гр. София, Мусагеница без посредник (3225) имоти за продажба в гр. София, ПЗ Илиянци без посредник (3225) имоти за продажба в гр. София, Свобода без посредник (3225) имоти за продажба в гр. София, Горна баня без посредник (3225) имоти за продажба в гр. София, Изгрев без посредник (3225) имоти за продажба в гр. София, Славовци без посредник (3225) имоти за продажба в гр. София, Света Троица без посредник (3225) имоти за продажба в гр. София, Левски Г без посредник (3225) имоти за продажба в гр. София, Горубляне без посредник (3225) имоти за продажба в гр. София, Овча купел без посредник (3225) имоти за продажба в гр. София, м-т Орехите без посредник (3225) имоти за продажба в гр. София, Люлин 7 без посредник (3225) имоти за продажба в гр. София, Илиянци без посредник (3225) имоти за продажба в гр. София, Младост 1А без посредник (3225) имоти за продажба в гр. София, в.з. Беловодски път без посредник (3225) имоти за продажба в гр. София, Полигона без посредник (3225) имоти за продажба в гр. София, Разсадника без посредник (3225) имоти за продажба в гр. София, Подуяне без посредник (3225) имоти за продажба в гр. София, Красна поляна 3 без посредник (3225) имоти за продажба в гр. София, Младост 2 без посредник (3225) имоти за продажба в гр. София, Надежда 4 без посредник (3225) имоти за продажба в гр. София, в.з. Горна баня без посредник (3225) имоти за продажба в гр. София, Надежда 2 без посредник (3225) имоти за продажба в гр. София, в.з. Врана - Герман без посредник (3225) имоти за продажба в гр. София, НПЗ Хаджи Димитър без посредник (3225) имоти за продажба в гр. София, Павлово без посредник (3225) имоти за продажба в гр. София, в.з. Врана - Лозен без посредник (3225) имоти за продажба в гр. София, Суходол без посредник (3225) имоти за продажба в гр. София, Кубратово без посредник (3225) имоти за продажба в гр. София, Борово без посредник (3225) имоти за продажба в гр. София, Драгалевци без посредник (3225) имоти за продажба в гр. София, Белите брези без посредник (3225) имоти за продажба в гр. София, в.з. Драгалевци лифта без посредник (3225) имоти за продажба в гр. София, Илинден без посредник (3225) имоти за продажба в гр. София, Хиподрума без посредник (3225) имоти за продажба в гр. София, Лагера без посредник (3225) имоти за продажба в гр. София, Модерно предградие без посредник (3225) имоти за продажба в гр. София, Гоце Делчев без посредник (3225) имоти за продажба в гр. София, Красна поляна 1 без посредник (3225) имоти за продажба в гр. София, Център без посредник (3225) имоти за продажба в гр. София, Малинова долина без посредник (3225) имоти за продажба в гр. София, Меден рудник - зона Г без посредник (3225)